| 42212 | 192 SPADER BAY DR
CHELAN, WA 98816 | T 27N R 22EWM S 11 LOT B BA2006-09CH LOT B BA2004-05 4.8000 ACRES |
| 42406 | 552 PORCUPINE LN
CHELAN, WA 98816 | GRANITE RIDGE LOT 27 LOT 111 BLA 2013-003CH; 0.1000 ACRES |
| 42407 | 564 PORCUPINE LN
CHELAN, WA 98816 | GRANITE RIDGE LOT 27, LOT 112 BLA 2013-003CH, 0.1000 ACRES |
| 42408 | 576 PORCUPINE LN
CHELAN, WA 98816 | GRANITE RIDGE LOT 28, LOT 113 BLA 2013-003CH, 0.1300 ACRES |
| 42411 | 168 JACKRABBIT LN
CHELAN, WA 98816 | GRANITE RIDGE LOT 46 LOT 125 BLA 2013-003CH ACRES 0.1000 |
| 42412 | 225 PORCUPINE LN
CHELAN, WA 98816 | GRANITE RIDGE LOT 46, LOT 127 BLA 2013-003CH, 0.1000 ACRES |
| 42413 | 204 PORCUPINE LN
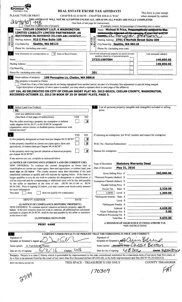
CHELAN, WA 98816 | GRANITE RIDGE LOT 8 OTHERS, LOT 161 SP 2013-002CH; LOT 131 BLA 2013-003CH; 0.2400 ACRES |
| 42415 | 264 PORCUPINE LN
CHELAN, WA 98816 | GRANITE RIDGE LOT 10 LOT 173 SP 2013-003CH; LOT 132 BLA 2013-003CH; 0.1200 ACRES |
| 42425 | 428 PORCUPINE LN
CHELAN, WA 98816 | GRANITE RIDGE LOT 20, LOT 101 BLA 2013-003CH, 0.1000 ACRES |
| 42426 | UNASSIGNED
CHELAN, WA 98816 | GRANITE RIDGE LOT PT 21,24,26,27,36, LOT 129 BLA 2013-003CH, 0.6600 ACRES |
| 42427 | 440 PORCUPINE LN
CHELAN, WA 98816 | GRANITE RIDGE LOT 20, LOT 102 BLA 2013-003CH, 0.1000 ACRES |
| 42428 | 452 PORCUPINE LN
CHELAN, WA 98816 | GRANITE RIDGE LOT 22, LOT 103 BLA 2013-003CH, 0.1000 ACRES |
| 42429 | 464 PORCUPINE LN
CHELAN, WA 98816 | GRANITE RIDGE LOT 22, LOT 104 BLA 2013-003CH, 0.1000 ACRES |
| 42430 | 476 PORCUPINE LN
CHELAN, WA 98816 | GRANITE RIDGE LOT 23, LOT 105 BLA 2013-003CH, 0.1000 ACRES |
| 42431 | 488 PORCUPINE LN
CHELAN, WA 98816 | GRANITE RIDGE LOT 23 LOT 106 BLA13-003CH 0.1200 ACRES |
| 42432 | 504 PORCUPINE LN
CHELAN, WA 98816 | GRANITE RIDGE LOT 24; LOT 107 BLA2013-003CH; 0.1200 ACRES |
| 42433 | 516 PORCUPINE LN
CHELAN, WA 98816 | GRANITE RIDGE LOT 25 L 108 BLA 13-003CH; 0.1000 ACRES |
| 42434 | 528 PORCUPINE LN
CHELAN, WA 98816 | GRANITE RIDGE LOT 26 L 109 BLA 2013-003CH 0.1000 ACRES |
| 42435 | 577 PORCUPINE LN
CHELAN, WA 98816 | GRANITE RIDGE LOT 30, LOT 114 BLA 2013-003CH, 0.1500 ACRES |
| 42436 | 565 PORCUPINE LN
CHELAN, WA 98816 | GRANITE RIDGE LOT 30-31 LOT 115 BLA 2013-003CH; 0.1300 ACRES |
| 42437 | 529 PORCUPINE LN
CHELAN, WA 98816 | GRANITE RIDGE LOT 32, LOT 117 BLA 2013-003CH, 0.1000 ACRES |
| 42438 | 507 PORCUPINE LN
CHELAN, WA 98816 | GRANITE RIDGE LOT 33 LOT 119 BLA 2013-003CH 0.1100 ACRES |
| 42439 | 540 PORCUPINE LN
CHELAN, WA 98816 | GRANITE RIDGE LOT 26 LOT 110 BLA 2013-003CH; 0.1000 ACRES |
| 42440 | 491 PORCUPINE LN
CHELAN, WA 98816 | GRANITE RIDGE LOT 35, LOT 121 BLA 2013-003CH, 0.1100 ACRES |
| 42441 | 459 PORCUPINE LN
CHELAN, WA 98816 | GRANITE RIDGE LOT 36, LOT 122 BLA 2013-003CH, 0.1000 ACRES |
| 42449 | 237 PORCUPINE LN
CHELAN, WA 98816 | GRANITE RIDGE LOT 44-45, LOT 128 BLA 2013-003CH, 0.1000 ACRES |
| 42450 | 278 JACKRABBIT LN
CHELAN, WA 98816 | GRANITE RIDGE LOT 36, LOT 124 BLA 2013-003CH, 0.1000 ACRES |
| 42451 | 290 JACKRABBIT LN
CHELAN, WA 98816 | GRANITE RIDGE LOT 35 L 123 BLA13-003CH; 0.1100 ACRES |
| 42453 | 120 JACKRABBIT LN
CHELAN, WA 98816 | GRANITE RIDGE LOT 32, LOT 118 BLA 2013-003CH, 0.1500 ACRES |
| 42454 | 553 PORCUPINE LN
CHELAN, WA 98816 | GRANITE RIDGE LOT 31, LOT 116 BLA 2013-003CH, 0.1600 ACRES |
| 42456 | UNASSIGNED
CHELAN, WA 98816 | GRANITE RIDGE LOT A BLA 2006-09CH, 6.8500 ACRES |
| 42457 | UNASSIGNED
CHELAN, WA 98816 | GRANITE RIDGE FAMILY 2 2.1600 ACRES |
| 42458 | 203 BIGHORN WAY
CHELAN, WA 98816 | GRANITE RIDGE LOT 2 BLA 2020-01CH LOT B BLA 2018-04CH LOT A BLA 2016-01CH 0.4500 ACRES |
| 42459 | 103 BIGHORN WAY
CHELAN, WA 98816 | GRANITE RIDGE LOT 1 BLA 2020-01CH LOT A BLA 2018-04CH 6.0000 ACRES |
| 42460 | UNASSIGNED
CHELAN, WA 98816 | GRANITE RIDGE RESERVE 2 8.9900 ACRES |
| 42461 | UNASSIGNED
CHELAN, WA 98816 | GRANITE RIDGE REMAINING AC FR:PLAT LOOKOUT PH3 L3 BLA 2020-01CH LC BLA 18-04 LB BLA 16-01 7.4100 ACRES |
| 64782 | 138 PORCUPINE LN
CHELAN, WA 98816 | GRANITE RIDGE LOT PT 1,2,3,4,29,34; LOT 154 SP 2013-001CH; LOT 130 BLA 2013-003CH, 0.2300 ACRES |
| 64783 | 150 PORCUPINE LN
CHELAN, WA 98816 | GRANITE RIDGE LOT PT 1,2,3,4,29,34, LOT 155 SP 2013-001CH; L 130 BLA 2013-003CH; 0.1800 ACRES |
| 64784 | UNASSIGNED
CHELAN, WA 98816 | GRANITE RIDGE LOT PT 1,2,3,4,29,34, TRACT A SP 2013-001CH, L 130 BLA 2013-003CH, 0.0400 ACRES |
| 64785 | 162 PORCUPINE LN
CHELAN, WA 98816 | GRANITE RIDGE LOT PT 1-4;29;34 LOT 156 SP 2013-001CH; LOT 130 BLA 2013-003CH; 0.1900 ACRES |
| 64786 | 172 PORCUPINE LN
CHELAN, WA 98816 | GRANITE RIDGE LOT PT 1,2,3,4,29,34, LOT 157 SP 2013-001CH; LOT 130 BLA 2013-003CH; 0.1900 ACRES |
| 64787 | 186 PORCUPINE LN
CHELAN, WA 98816 | GRANITE RIDGE LOT PT 1,2,3,4,29,34, LOT 158 SP 2013-001CH; LOT 130 BLA 2013-003CH; 0.2000 ACRES |
| 64792 | 216 PORCUPINE LN
CHELAN, WA 98816 | GRANITE RIDGE LOT 8 OTHERS LOT 162 SP 2013-002CH; L 131 BLA 2013-003CH; 0.1800 ACRES |
| 64793 | 228 PORCUPINE LN
CHELAN, WA 98816 | GRANITE RIDGE LOT 8 OTHERS LOT 163 SP 2013-002CH; LOT 131 BLA 2013-003CH; 0.1800 ACRES |
| 64794 | UNASSIGNED
CHELAN, WA 98816 | GRANITE RIDGE LOT 8 OTHERS, TRACT B SP 2013-002CH, L 131 BLA 2013-003CH, 0.2500 ACRES |
| 64796 | 156 JACKRABBIT LN
CHELAN, WA 98816 | GRANITE RIDGE LOT 8 OTHERS, LOT 165 SP 2013-002CH; LOT 131 BLA 2013-003CH; 0.1200 ACRES |
| 64797 | UNASSIGNED
CHELAN, WA 98816 | GRANITE RIDGE LOT 8 OTHERS, TRACT C SP 2013-002CH, L 131 BLA 2013-003CH, 0.0500 ACRES |
| 64798 | 177 PORCUPINE LN
CHELAN, WA 98816 | GRANITE RIDGE LOT 8 OTHERS, LOT 166 SP 2013-002CH; LOT 131 BLA 2013-003CH; 0.1300 ACRES |
| 64799 | 159 PORCUPINE LN
CHELAN, WA 98816 | GRANITE RIDGE LOT 8 OTHERS, LOT 167 SP 2013-002CH, L 131 BLA 2013-003CH, 0.1800 ACRES |
| 64803 | 276 PORCUPINE LN
CHELAN, WA 98816 | GRANITE RIDGE LOT 10, 43 PT 44, LOT 174 SP 2013-003CH, L 132 BLA 2013-003CH, 0.1200 ACRES |
| 64804 | UNASSIGNED
CHELAN, WA 98816 | GRANITE RIDGE LOT 43 PART TRACT E SP 2013-003CH 0.1200 ACRES |
| 64805 | 255 PORCUPINE LN
CHELAN, WA 98816 | GRANITE RIDGE LOT PART 43 & 44 LOT 177 SP 2013-003CH 0.1000 ACRES |
| 64806 | 192 JACKRABBIT LN
CHELAN, WA 98816 | GRANITE RIDGE LOT PART 43 & 44 LOT 178 SP 2013-2003CH 0.1000 ACRES |