Property
Account |
Property ID: | 46865 | Abbreviated Legal Description: | CHELAN FALLS BLOCK 31 LOT 10, 0.1500 ACRES |
Geographic ID: | 272330515492 | Agent Code: | |
Type: | Real | | |
Tax Area: | 34 - 129 F7 CD4 H2 | Land Use Code | 11 |
Open Space: | N | DFL | N |
Historic Property: | N | Remodel Property: | N |
Multi-Family Redevelopment: | N | | |
Township: | 27N | Section: | 30 |
Range: | 23EWM | Legal Acres: | 0.1500 |
Location |
Address: | 380 CHELAN AVE CHELAN FALLS, WA 98817 | Mapsco: | |
Neighborhood: | Cycle 4 riverfront div 2 RES | Map ID: | 4RIVR02R01 |
Neighborhood CD: | 4RIVR02R01 |
Owner |
Name: | ELLIOT MARK W & KASMIRA D | Owner ID: | 116625 |
Mailing Address: | PO BOX 278 MANSON, WA 98831 | % Ownership: | % |
| | Exemptions: | |
Pay Tax Due
Select the appropriate checkbox next to the year to be paid. Multiple years may be selected.
*Convenience Fee not included
Taxes and Assessment Details
Values
(+) Improvement Homesite Value: | + | $0 | |
(+) Improvement Non-Homesite Value: | + | $435,632 | |
(+) Land Homesite Value: | + | $0 | |
(+) Land Non-Homesite Value: | + | $54,000 | |
(+) Curr Use (HS): | + | $0 | $0 |
(+) Curr Use (NHS): | + | $0 | $0 |
| | -------------------------- | |
(=) Market Value: | = | $489,632 | |
(–) Productivity Loss: | – | $0 | |
| | -------------------------- | |
(=) Subtotal: | = | $489,632 | |
(+) Senior Appraised Value: | + | $0 | |
(+) Non-Senior Appraised Value: | + | $489,632 | |
| | -------------------------- | |
(=) Total Appraised Value: | = | $489,632 | |
(–) Senior Exemption Loss: | – | $0 | |
(–) Exemption Loss: | – | $0 | |
| | -------------------------- | |
(=) Taxable Value: | = | $489,632 | |
Taxing Jurisdiction
Owner: | ELLIOT MARK W & KASMIRA D | | |
% Ownership: | 100.0000000000% | | |
Total Value: | N/A | | |
Tax Area: | 34 - 129 F7 CD4 H2 |
110001 | County Road General | N/A | N/A | N/A | N/A | | |
010170 | Chelan County | N/A | N/A | N/A | N/A | | |
155001 | Veteran's Relief | N/A | N/A | N/A | N/A | | |
160001 | Mental Health | N/A | N/A | N/A | N/A | | |
657401 | Cemetery No 4 | N/A | N/A | N/A | N/A | | |
656701 | Fire No 7 General | N/A | N/A | N/A | N/A | | |
654115 | Lake Chelan SD 129 Capital Projects | N/A | N/A | N/A | N/A | | |
652001 | State School Refund | N/A | N/A | N/A | N/A | | |
652003 | State School 2 | N/A | N/A | N/A | N/A | | |
652005 | State School | N/A | N/A | N/A | N/A | | |
652025 | State School 2 Refund | N/A | N/A | N/A | N/A | | |
107001 | Flood Control Zone | N/A | N/A | N/A | N/A | | |
692201 | Hospital No 2 General | N/A | N/A | N/A | N/A | | |
692210 | Hospital No 2 Bond | N/A | N/A | N/A | N/A | | |
692260 | Hospital No 2 EMS | N/A | N/A | N/A | N/A | | |
644001 | Regional Library | N/A | N/A | N/A | N/A | | |
671101 | Port General | N/A | N/A | N/A | N/A | | |
654100 | Lake Chelan SD 129 General | N/A | N/A | N/A | N/A | | |
| Total Tax Rate: | N/A | | | | | |
| | | | Taxes w/Current Exemptions: | N/A | | |
| | | | Taxes w/o Exemptions: | N/A | | |
Improvement / Building
Improvement #1: | RESIDENTIAL | State Code: | 11 | 1456.0 sqft | Value: | $435,632 |
Exterior Wall: | Plywood or Hrdbrd | Heating/Cooling: | Heat Pump | Number of Bathrooms: | 2 | Number of Bedrooms: | 3 |
|
| Type | Description | Class CD | Sub Class CD | Year Built | Area |
| MA | Main | FAIR | 2 STY | 2006 | 1456.0 |
| GAR-BI | Built-In Garage | FAIR | 1 STY | 2006 | 480.0 |
| DECK | Open Wood Deck | FAIR | 1 STY | 2006 | 266.0 |
Sketch
No sketches available for this property. |
Property Image
Land
1 | SV 20K | SITE VALUE $20,000 | 0.1500 | 6400.00 | 0.00 | 0.00 | 1.00 | $54,000 | $0 |
Roll Value History
2025 | N/A | N/A | N/A | N/A | N/A |
2024 | $463,931 | $54,000 | $0 | $517,931 | $517,931 |
2023 | $472,847 | $58,000 | $0 | $530,847 | $530,847 |
2022 | $418,771 | $54,500 | $0 | $473,271 | $473,271 |
2021 | $370,152 | $21,800 | $0 | $391,952 | $391,952 |
2020 | $290,517 | $23,616 | $0 | $314,133 | $314,133 |
2019 | $259,137 | $23,736 | $0 | $282,873 | $282,873 |
2018 | $236,320 | $23,736 | $0 | $260,056 | $260,056 |
2017 | $149,429 | $29,808 | $0 | $179,237 | $179,237 |
2016 | $162,424 | $24,300 | $0 | $186,724 | $186,724 |
2015 | $138,348 | $20,250 | $0 | $158,598 | $158,598 |
2014 | $168,204 | $20,250 | $0 | $188,454 | $188,454 |
2013 | $175,523 | $20,250 | $0 | $195,773 | $195,773 |
2012 | $95,923 | $15,000 | $0 | $110,923 | $110,923 |
2011 | $198,387 | $39,375 | $0 | $237,762 | $237,762 |
2010 | $152,605 | $26,250 | $0 | $178,855 | $178,855 |
2009 | $188,124 | $35,000 | $0 | $223,124 | $223,124 |
2008 | $188,124 | $35,000 | $0 | $223,124 | $223,124 |
2007 | $71,356 | $25,000 | $0 | $96,356 | $96,356 |
2006 | $49,949 | $25,000 | $0 | $74,949 | $74,949 |
Deed and Sales History
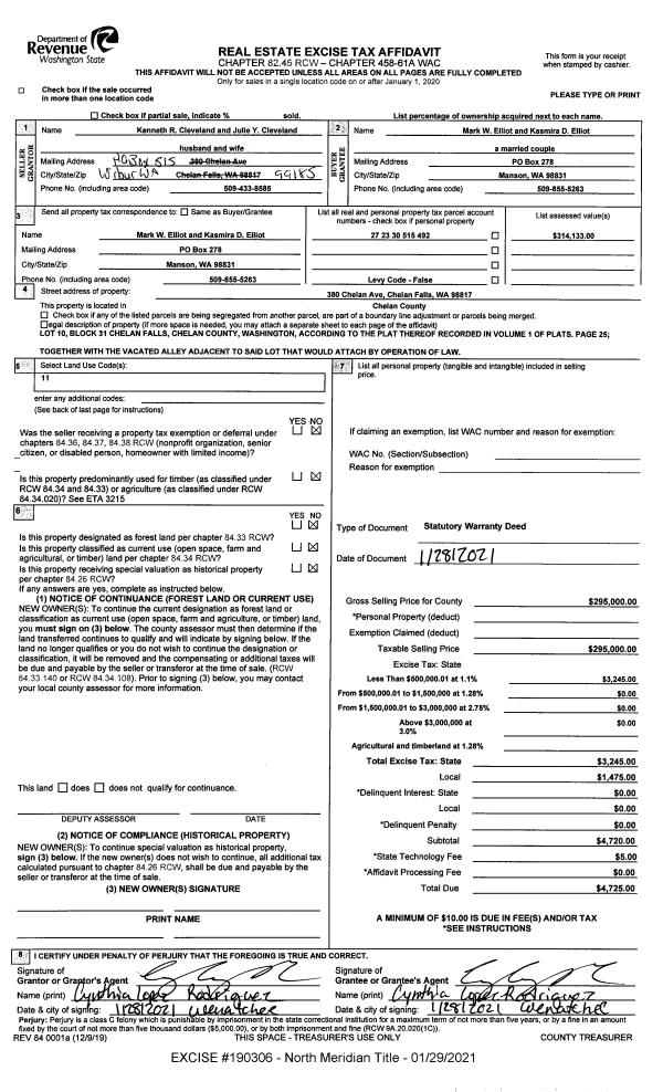
1 | 01/29/2021 | SWD | Statutory Warranty Deed | CLEVELAND KENNETH R & JULIE Y | ELLIOT MARK W & KASMIRA D | | | $295,000.00 | 190306 | 2535505 |
2 | 05/27/2010 | SWD | Statutory Warranty Deed | CHELAN INVESTMENTS LLC | CLEVELAND KENNETH R & JULIE Y | | | $257,500.00 | 149224 | 2324864 |
3 | 03/02/2009 | Q | Quit Claim Deed | KNIGHT KENNETH E & ANN M | CHELAN INVESTMENTS LLC | | | $0.00 | 145184 | 2298269 |
4 | 06/06/2007 | Q | Quit Claim Deed | | KNIGHT KENNETH E & ANN M | | | | 0 | 2257342 |
5 | 06/11/2007 | W | Warranty Deed | | CHELAN CUSTOM HOMES LLC | | | | 0 | 2209010 |
6 | 10/09/1998 | REF | Conversion Code Only | WOODLAND CLIFF | WOODLAND CLIFF | | | | 0 | 2038144 |
7 | 11/21/1995 | REF | Conversion Code Only | WOODLAND | | 1054 | 1943 | | 0 | |
8 | 11/21/1995 | REF | Conversion Code Only | WOODLAND | | 1054 | 1939 | | 0 | |
9 | 11/17/1995 | Q | Quit Claim Deed | | CLIFF LEROY WOODLAND | 1054 | 1936 | | 0 | |
10 | 07/22/1993 | W | Warranty Deed | | CLIFFORD L WOODLAND | 998 | 1916 | | 0 | |
11 | | OT | Conversion Code Only | | ERLENE O BETTENCOURT | 804 | 1738 | | 0 | |
12 | 01/27/2006 | REF | Conversion Code Only | SURVEY | | 47 | 120 | | 0 | |
13 | 06/06/2007 | Q | Quit Claim Deed | | | | | | 13874800 | 2257342 |
14 | 09/12/2005 | W | Warranty Deed | | | | | $20,000.00 | 12990400 | 2209010 |
15 | 09/26/1998 | Q | Quit Claim Deed | | | | | | 9951011 | 2038144 |
16 | 04/02/2003 | O | Other | | | 0 | 0 | $2,500.00 | 11759400 | |
  | |
17 | 06/05/2001 | O | Other | | | 0 | 0 | $5,500.00 | 11001800 | |
  | |
18 | 05/25/2001 | O | Other | | | 0 | 0 | | 10991500 | |
19 | 06/29/1995 | O | Other | | | 0 | 0 | | 8624500 | |
Payout Agreement
No payout information available.. |