Property
Account |
Property ID: | 45800 | Abbreviated Legal Description: | T 27N R 22EWM S 16 LOT 1 SP2005-131;LOT 1 SP 2000-014; .30AC 0.3000 ACRES |
Geographic ID: | 272216420070 | Agent Code: | |
Type: | Real | | |
Tax Area: | 36 - 129 F7 CD4 SD H2 | Land Use Code | 18 |
Open Space: | N | DFL | N |
Historic Property: | N | Remodel Property: | N |
Multi-Family Redevelopment: | N | | |
Township: | 27N | Section: | 16 |
Range: | 22EWM | Legal Acres: | 0.3000 |
Location |
Address: | 3580 US HWY 97A CHELAN, WA 98816 | Mapsco: | |
Neighborhood: | Cycle 4 Chelan water south div 1 RES | Map ID: | 4CWSO01R01 |
Neighborhood CD: | 4CWSO01R01 |
Owner |
Name: | PISCO WALTER | Owner ID: | 82021 |
Mailing Address: | 10301 INTERLAAKEN DR SW LAKEWOOD, WA 98498 | % Ownership: | % |
| | Exemptions: | |
Pay Tax Due
Select the appropriate checkbox next to the year to be paid. Multiple years may be selected.
*Convenience Fee not included
Taxes and Assessment Details
Values
(+) Improvement Homesite Value: | + | $0 | |
(+) Improvement Non-Homesite Value: | + | $1,393,383 | |
(+) Land Homesite Value: | + | $0 | |
(+) Land Non-Homesite Value: | + | $1,699,200 | |
(+) Curr Use (HS): | + | $0 | $0 |
(+) Curr Use (NHS): | + | $0 | $0 |
| | -------------------------- | |
(=) Market Value: | = | $3,092,583 | |
(–) Productivity Loss: | – | $0 | |
| | -------------------------- | |
(=) Subtotal: | = | $3,092,583 | |
(+) Senior Appraised Value: | + | $0 | |
(+) Non-Senior Appraised Value: | + | $3,092,583 | |
| | -------------------------- | |
(=) Total Appraised Value: | = | $3,092,583 | |
(–) Senior Exemption Loss: | – | $0 | |
(–) Exemption Loss: | – | $0 | |
| | -------------------------- | |
(=) Taxable Value: | = | $3,092,583 | |
Taxing Jurisdiction
Owner: | PISCO WALTER | | |
% Ownership: | 100.0000000000% | | |
Total Value: | N/A | | |
Tax Area: | 36 - 129 F7 CD4 SD H2 |
110001 | County Road General | N/A | N/A | N/A | N/A | | |
010170 | Chelan County | N/A | N/A | N/A | N/A | | |
155001 | Veteran's Relief | N/A | N/A | N/A | N/A | | |
160001 | Mental Health | N/A | N/A | N/A | N/A | | |
657401 | Cemetery No 4 | N/A | N/A | N/A | N/A | | |
656701 | Fire No 7 General | N/A | N/A | N/A | N/A | | |
654115 | Lake Chelan SD 129 Capital Projects | N/A | N/A | N/A | N/A | | |
652001 | State School Refund | N/A | N/A | N/A | N/A | | |
652003 | State School 2 | N/A | N/A | N/A | N/A | | |
652005 | State School | N/A | N/A | N/A | N/A | | |
652025 | State School 2 Refund | N/A | N/A | N/A | N/A | | |
107001 | Flood Control Zone | N/A | N/A | N/A | N/A | | |
692201 | Hospital No 2 General | N/A | N/A | N/A | N/A | | |
692210 | Hospital No 2 Bond | N/A | N/A | N/A | N/A | | |
692260 | Hospital No 2 EMS | N/A | N/A | N/A | N/A | | |
644001 | Regional Library | N/A | N/A | N/A | N/A | | |
671101 | Port General | N/A | N/A | N/A | N/A | | |
654100 | Lake Chelan SD 129 General | N/A | N/A | N/A | N/A | | |
| Total Tax Rate: | N/A | | | | | |
| | | | Taxes w/Current Exemptions: | N/A | | |
| | | | Taxes w/o Exemptions: | N/A | | |
Improvement / Building
Improvement #1: | RESIDENTIAL | State Code: | 18 | 2066.0 sqft | Value: | $1,358,280 |
Exterior Wall: | Plywood or Hrdbrd | Fireplace: | Double 2 Story | Heating/Cooling: | Heat Pump | Number of Bathrooms: | 5 | Number of Bedrooms: | 4 |   |   |
|
| Type | Description | Class CD | Sub Class CD | Year Built | Area |
| MA | Main | AVERAGE | 1 STY | 2005 | 2066.0 |
| GAR-ATT | Attached Garage | AVERAGE | 1 STY | 2005 | 1085.0 |
| PP-ST | Open Concrete Slab W/Steps | GOOD | * | 2005 | 63.0 |
| BSMT-PF | BSMT FINISH - PARTITIONED | AVERAGE | 1 STY | 2005 | 1824.0 |
| BS-UFC8 | BSMT AREA 8” CONC | AVERAGE | 1 STY | 2005 | 1824.0 |
| DECK | Open Wood Deck | GOOD | * | 2005 | 327.0 |
| DECK | Open Wood Deck | GOOD | * | 2005 | 150.0 |
Improvement #2: | RESIDENTIAL | State Code: | 11 | 0.0 sqft | Value: | $26,553 |
Improvement #3: | RESIDENTIAL | State Code: | 18 | 0.0 sqft | Value: | $8,550 |
Sketch
Property Image
Land
1 | WFF 12K | WATERFRONT $12,000/FF | 0.3000 | 13068.00 | 80.00 | 120.00 | 1.00 | $1,699,200 | $0 |
Roll Value History
2025 | N/A | N/A | N/A | N/A | N/A |
2024 | $1,408,425 | $1,699,200 | $0 | $3,107,625 | $3,107,625 |
2023 | $979,484 | $1,699,200 | $0 | $2,678,684 | $2,678,684 |
2022 | $3,439,979 | $835,200 | $0 | $4,275,179 | $4,275,179 |
2021 | $1,911,019 | $739,200 | $0 | $2,650,219 | $2,650,219 |
2020 | $1,092,462 | $739,200 | $0 | $1,831,662 | $1,831,662 |
2019 | $1,171,837 | $739,200 | $0 | $1,911,037 | $1,911,037 |
2018 | $1,016,538 | $739,200 | $0 | $1,755,738 | $1,755,738 |
2017 | $703,990 | $643,200 | $0 | $1,347,190 | $1,347,190 |
2016 | $867,929 | $499,200 | $0 | $1,367,129 | $1,367,129 |
2015 | $803,105 | $480,000 | $0 | $1,283,105 | $1,283,105 |
2014 | $621,346 | $508,800 | $0 | $1,130,146 | $1,130,146 |
2013 | $563,884 | $432,000 | $0 | $995,884 | $995,884 |
2012 | $496,926 | $576,000 | $0 | $1,072,926 | $1,072,926 |
2011 | $486,168 | $576,000 | $0 | $1,062,168 | $1,062,168 |
2010 | $537,344 | $672,000 | $0 | $1,209,344 | $1,209,344 |
2009 | $472,091 | $1,032,000 | $0 | $1,504,091 | $1,504,091 |
2008 | $472,091 | $1,032,000 | $0 | $1,504,091 | $1,504,091 |
2007 | $234,708 | $344,000 | $0 | $578,708 | $578,708 |
2006 | $234,708 | $344,000 | $0 | $578,708 | $578,708 |
Deed and Sales History
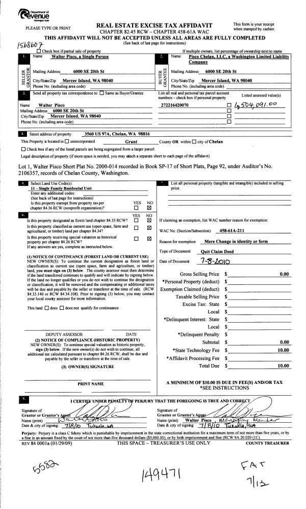
1 | 02/09/2010 | Q | Quit Claim Deed | PISCO CHELAN LLC | PISCO WALTER | | | | 148180 | 2318847 |
2 | 01/08/2007 | Q | Quit Claim Deed | | PISCO CHELAN LLC | | | | 0 | 2246238 |
3 | 01/08/2007 | Q | Quit Claim Deed | | | | | | 13697800 | 2246238 |
4 | 12/10/2001 | REF | Conversion Code Only | SP 2000-014 | | | | | 0 | 2106357 |
5 | 08/27/1999 | W | Warranty Deed | | WALTER J PISCO | | | | 0 | 2059893 |
6 | 02/05/1999 | W | Warranty Deed | | LOFGREN LLC | | | | 0 | 2046353 |
7 | 08/27/1999 | W | Warranty Deed | | | | | $525,000.00 | 10317500 | 2059893 |
8 | 02/05/1999 | W | Warranty Deed | | | | | | 10074100 | 2046353 |
9 | 08/23/1993 | REF | Conversion Code Only | LOFGREN BOYD R | LOFGREN BOYD R | 1001 | 146 | | 0 | |
10 | 07/26/1993 | Q | Quit Claim Deed | | | 1001 | 146 | | 7754400 | |
11 | | OT | Conversion Code Only | | BOYD R LOFGREN | 763 | 840 | | 0 | |
12 | 10/19/2000 | O | Other | | | 0 | 0 | $8,000.00 | 10771900 | |
  | |
13 | 08/07/2000 | O | Other | | | 0 | 0 | $1,000.00 | 10686200 | |
14 | 07/20/2000 | O | Other | | | 0 | 0 | | 10662000 | |
15 | 04/14/2000 | O | Other | | | 0 | 0 | | 10557400 | |
16 | 04/06/2000 | O | Other | | | 0 | 0 | $500.00 | 10547700 | |
17 | 08/27/1999 | O | Other | | | 0 | 0 | | 10317600 | |
18 | 02/23/1993 | O | Other | | | 0 | 0 | $3,500.00 | 7567000 | |
Payout Agreement
1954 | Active | LAKE CHELAN SEWER 98-4 | | 3/25/2009 2:59:07 PM | Annually | 14 | $0 |