Property
Account |
| Property ID: | 45800 | Abbreviated Legal Description: | T 27N R 22EWM S 16 LOT 1 SP2005-131;LOT 1 SP 2000-014; .30AC 0.3000 ACRES |
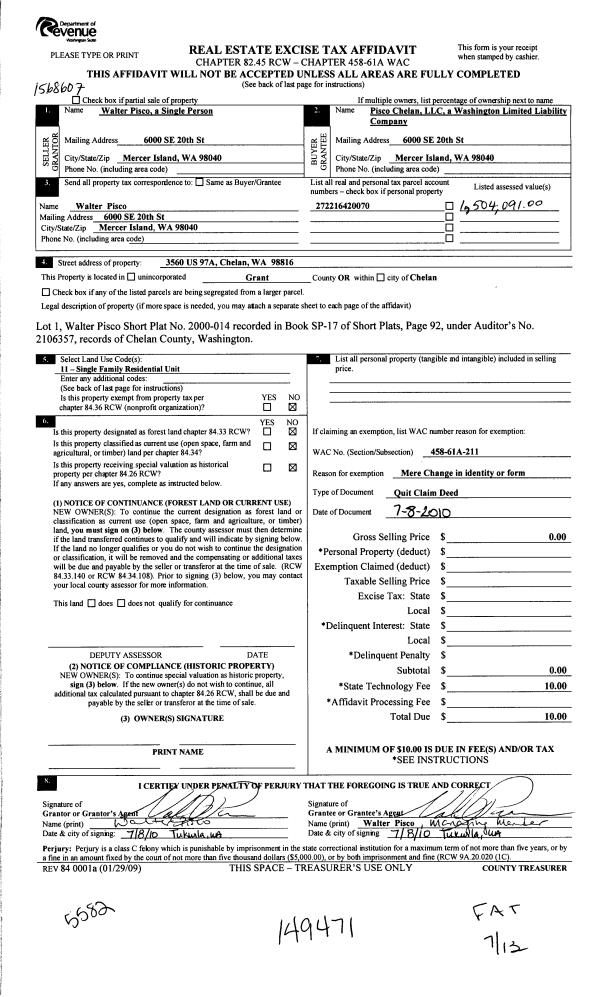
| Geographic ID: | 272216420070 | Agent Code: | |
| Type: | Real | | |
| Tax Area: | 36 - 129 F7 CD4 SD H2 | Land Use Code | 18 |
| Open Space: | N | DFL | N |
| Historic Property: | N | Remodel Property: | N |
| Multi-Family Redevelopment: | N | | |
| Township: | 27N | Section: | 16 |
| Range: | 22EWM | Legal Acres: | 0.3000 |
Location |
| Address: | 3580 US HWY 97A CHELAN, WA 98816 | Mapsco: | |
| Neighborhood: | Cycle 4 Chelan water south div 1 RES | Map ID: | 4CWSO01R01 |
| Neighborhood CD: | 4CWSO01R01 |
Owner |
| Name: | PISCO WALTER | Owner ID: | 82021 |
| Mailing Address: | C/O MELISSA BIRT 24141 E GREYSTONE LN WOODWAY, WA 98020 | % Ownership: | % |
| | | Exemptions: | |
Pay Tax Due
Select the appropriate checkbox next to the year to be paid. Multiple years may be selected.
*Convenience Fee not included
Taxes and Assessment Details
Values
| (+) Improvement Homesite Value: | + | $0 | |
| (+) Improvement Non-Homesite Value: | + | $979,484 | |
| (+) Land Homesite Value: | + | $0 | |
| (+) Land Non-Homesite Value: | + | $1,699,200 | |
| (+) Curr Use (HS): | + | $0 | $0 |
| (+) Curr Use (NHS): | + | $0 | $0 |
| | | -------------------------- | |
| (=) Market Value: | = | $2,678,684 | |
| (–) Productivity Loss: | – | $0 | |
| | | -------------------------- | |
| (=) Subtotal: | = | $2,678,684 | |
| (+) Senior Appraised Value: | + | $0 | |
| (+) Non-Senior Appraised Value: | + | $2,678,684 | |
| | | -------------------------- | |
| (=) Total Appraised Value: | = | $2,678,684 | |
| (–) Senior Exemption Loss: | – | $0 | |
| (–) Exemption Loss: | – | $0 | |
| | | -------------------------- | |
| (=) Taxable Value: | = | $2,678,684 | |
Taxing Jurisdiction
| Owner: | PISCO WALTER | | |
| % Ownership: | 100.0000000000% | | |
| Total Value: | $2,678,684 | | |
| Tax Area: | 36 - 129 F7 CD4 SD H2 |
| 110001 | County Road General | 0.7489089416 | $2,678,684 | $2,678,684 | $2,006.09 | | |
| 010170 | Chelan County | 0.6865492789 | $2,678,684 | $2,678,684 | $1,839.05 | | |
| 155001 | Veteran's Relief | 0.0115152634 | $2,678,684 | $2,678,684 | $30.85 | | |
| 160001 | Mental Health | 0.0163917663 | $2,678,684 | $2,678,684 | $43.91 | | |
| 657401 | Cemetery No 4 | 0.0322407544 | $2,678,684 | $2,678,684 | $86.36 | | |
| 656701 | Fire No 7 General | 0.8365086548 | $2,678,684 | $2,678,684 | $2,240.74 | | |
| 654115 | Lake Chelan SD 129 Capital Projects | 0.0516205489 | $2,678,684 | $2,678,684 | $138.28 | | |
| 652001 | State School Refund | 0.0000053696 | $2,678,684 | $2,678,684 | $0.01 | | |
| 652003 | State School 2 | 0.8383421037 | $2,678,684 | $2,678,684 | $2,245.65 | | |
| 652005 | State School | 1.5621643348 | $2,678,684 | $2,678,684 | $4,184.54 | | |
| 652025 | State School 2 Refund | 0.0000022240 | $2,678,684 | $2,678,684 | $0.01 | | |
| 107001 | Flood Control Zone | 0.0383520505 | $2,678,684 | $2,678,684 | $102.73 | | |
| 692201 | Hospital No 2 General | 0.1418930280 | $2,678,684 | $2,678,684 | $380.09 | | |
| 692210 | Hospital No 2 Bond | 0.1902765315 | $2,678,684 | $2,678,684 | $509.69 | | |
| 692260 | Hospital No 2 EMS | 0.2605041362 | $2,678,684 | $2,678,684 | $697.81 | | |
| 644001 | Regional Library | 0.2646132505 | $2,678,684 | $2,678,684 | $708.82 | | |
| 671101 | Port General | 0.1547833079 | $2,678,684 | $2,678,684 | $414.62 | | |
| 654100 | Lake Chelan SD 129 General | 0.8154102027 | $2,678,684 | $2,678,684 | $2,184.23 | | |
| | Total Tax Rate: | 6.6500817477 | | | | | |
| | | | | Taxes w/Current Exemptions: | $17,813.48 | | |
| | | | | Taxes w/o Exemptions: | $17,813.48 | | |
Improvement / Building
| Improvement #1: | RESIDENTIAL | State Code: | 18 | 2066.0 sqft | Value: | $954,748 |
| Exterior Wall: | Plywood or Hrdbrd | Fireplace: | Double 2 Story | | Heating/Cooling: | Heat Pump | Number of Bathrooms: | 5 | | Number of Bedrooms: | 4 |   |   |
|
| | Type | Description | Class CD | Sub Class CD | Year Built | Area |
| | MA | Main | AVERAGE | 1 STY | 2005 | 2066.0 |
| | GAR-ATT | Attached Garage | AVERAGE | 1 STY | 2005 | 1085.0 |
| | CP-G | Carport/Patio Cover Gable Roof | GOOD | 1 STY | 2005 | 63.0 |
| | BSMT-PF | BSMT FINISH - PARTITIONED | AVERAGE | 1 STY | 2005 | 1824.0 |
| | BS-UFC8 | BSMT AREA 8” CONC | AVERAGE | 1 STY | 2005 | 1824.0 |
| | DECK | Open Wood Deck | GOOD | * | 2005 | 327.0 |
| | DECK | Open Wood Deck | GOOD | * | 2005 | 150.0 |
| Improvement #2: | RESIDENTIAL | State Code: | 11 | 0.0 sqft | Value: | $18,711 |
| Improvement #3: | RESIDENTIAL | State Code: | 18 | 0.0 sqft | Value: | $6,025 |
Sketch
Property Image
Land
| 1 | WFF 12K | WATERFRONT $12,000/FF | 0.3000 | 13068.00 | 80.00 | 120.00 | 1.00 | $1,699,200 | $0 |
Roll Value History
| 2026 | N/A | N/A | N/A | N/A | N/A |
| 2025 | $1,393,383 | $1,699,200 | $0 | $3,092,583 | $3,092,583 |
| 2024 | $1,408,425 | $1,699,200 | $0 | $3,107,625 | $3,107,625 |
| 2023 | $979,484 | $1,699,200 | $0 | $2,678,684 | $2,678,684 |
| 2022 | $3,439,979 | $835,200 | $0 | $4,275,179 | $4,275,179 |
| 2021 | $1,911,019 | $739,200 | $0 | $2,650,219 | $2,650,219 |
| 2020 | $1,092,462 | $739,200 | $0 | $1,831,662 | $1,831,662 |
| 2019 | $1,171,837 | $739,200 | $0 | $1,911,037 | $1,911,037 |
| 2018 | $1,016,538 | $739,200 | $0 | $1,755,738 | $1,755,738 |
| 2017 | $703,990 | $643,200 | $0 | $1,347,190 | $1,347,190 |
| 2016 | $867,929 | $499,200 | $0 | $1,367,129 | $1,367,129 |
| 2015 | $803,105 | $480,000 | $0 | $1,283,105 | $1,283,105 |
| 2014 | $621,346 | $508,800 | $0 | $1,130,146 | $1,130,146 |
| 2013 | $563,884 | $432,000 | $0 | $995,884 | $995,884 |
| 2012 | $496,926 | $576,000 | $0 | $1,072,926 | $1,072,926 |
| 2011 | $486,168 | $576,000 | $0 | $1,062,168 | $1,062,168 |
| 2010 | $537,344 | $672,000 | $0 | $1,209,344 | $1,209,344 |
| 2009 | $472,091 | $1,032,000 | $0 | $1,504,091 | $1,504,091 |
| 2008 | $472,091 | $1,032,000 | $0 | $1,504,091 | $1,504,091 |
| 2007 | $234,708 | $344,000 | $0 | $578,708 | $578,708 |
Deed and Sales History
| 1 | 02/09/2010 | Q | Quit Claim Deed | PISCO CHELAN LLC | PISCO WALTER | | | | 148180 | 2318847 |
| 2 | 01/08/2007 | Q | Quit Claim Deed | | PISCO CHELAN LLC | | | | 0 | 2246238 |
| 3 | 01/08/2007 | Q | Quit Claim Deed | | | | | | 13697800 | 2246238 |
| 4 | 12/10/2001 | REF | Conversion Code Only | SP 2000-014 | | | | | 0 | 2106357 |
| 5 | 08/27/1999 | W | Warranty Deed | | WALTER J PISCO | | | | 0 | 2059893 |
| 6 | 02/05/1999 | W | Warranty Deed | | LOFGREN LLC | | | | 0 | 2046353 |
| 7 | 08/27/1999 | W | Warranty Deed | | | | | $525,000.00 | 10317500 | 2059893 |
| 8 | 02/05/1999 | W | Warranty Deed | | | | | | 10074100 | 2046353 |
| 9 | 08/23/1993 | REF | Conversion Code Only | LOFGREN BOYD R | LOFGREN BOYD R | 1001 | 146 | | 0 | |
| 10 | 07/26/1993 | Q | Quit Claim Deed | | | 1001 | 146 | | 7754400 | |
| 11 | | OT | Conversion Code Only | | BOYD R LOFGREN | 763 | 840 | | 0 | |
| 12 | 10/19/2000 | O | Other | | | 0 | 0 | $8,000.00 | 10771900 | |
|   | |
| 13 | 08/07/2000 | O | Other | | | 0 | 0 | $1,000.00 | 10686200 | |
| 14 | 07/20/2000 | O | Other | | | 0 | 0 | | 10662000 | |
| 15 | 04/14/2000 | O | Other | | | 0 | 0 | | 10557400 | |
| 16 | 04/06/2000 | O | Other | | | 0 | 0 | $500.00 | 10547700 | |
| 17 | 08/27/1999 | O | Other | | | 0 | 0 | | 10317600 | |
| 18 | 02/23/1993 | O | Other | | | 0 | 0 | $3,500.00 | 7567000 | |
Payout Agreement
| 1954 | Active | LAKE CHELAN SEWER 98-4 | | 3/25/2009 2:59:07 PM | Annually | 14 | $0 |