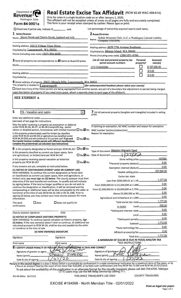
1 | 02/01/2022 | SWD | Statutory Warranty Deed | STRODE STEVEN E & CHELCIE R | KAHLER MOUNTAIN CLUB LLC | | | $107,000.00 | 194998 | 2561540 |
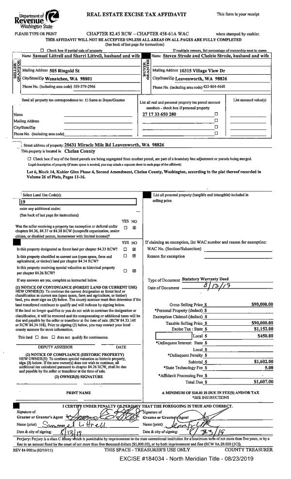
2 | 08/23/2019 | SWD | Statutory Warranty Deed | LITTRELL SAMUEL E & SHERRI L | STRODE STEVEN E & CHELCIE R | | | $90,000.00 | 184034 | 2501304 |
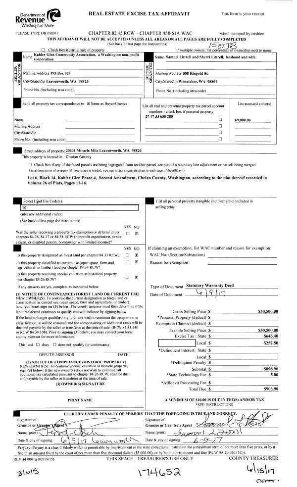
3 | 06/15/2017 | SWD | Statutory Warranty Deed | KAHLER GLEN COMMUNITY ASSOCIATION | LITTRELL SAMUEL E & SHERRI L | | | $50,500.00 | 174652 | 2459264 |
4 | 05/16/2014 | SWD | Statutory Warranty Deed | KAHLER GLEN GOLF SKI RESORT | KAHLER GLEN COMMUNITY ASSOCIATION | | | $1,760,000.00 | 162194 | 2400371 |
  |
39013 | 20879 KAHLER DR
LAKE WENATCHEE, WA 98826 | KAHLER GLENN SUB AMENDENT LOT 2 0.3300 ACRES |
39014 | 20880 KAHLER DR
LAKE WENATCHEE, WA 98826 | KAHLER GLENN SUB AMENDENT LOT 3 0.3700 ACRES |
39015 | 20878 KAHLER DR
LAKE WENATCHEE, WA 98826 | KAHLER GLENN SUB AMENDENT LOT 11 0.3400 ACRES |
39016 | 20876 KAHLER DR
LAKE WENATCHEE, WA 98826 | KAHLER GLENN SUB AMENDENT LOT 16 0.3300 ACRES |
39017 | 20874 KAHLER DR
LAKE WENATCHEE, WA 98826 | KAHLER GLENN SUB AMENDENT LOT 19 0.3500 ACRES |
39019 | 20700 CLUB HOUSE DR
LAKE WENATCHEE, WA 98826 | KAHLER GLEN PHASE 2 COMMERCIAL LOT 4 &PH2 AMDMT &TRACT A,C,D,E PH3 79.3900 ACRES |
39022 | UNASSIGNED
LAKE WENATCHEE, WA 98826 | KAHLER GLEN PHASE 3 RESEVOIR SITE TRACT F 0.6100 ACRES |
39023 | UNASSIGNED
LAKE WENATCHEE, WA 98826 | KAHLER GLEN PHASE 3 ROAD TRACT H 10.6700 ACRES |
39024 | UNASSIGNED
LAKE WENATCHEE, WA 98826 | KAHLER GLEN PHASE 3 PARKING LOT TRACT I 0.1200 ACRES |
39025 | UNASSIGNED
LAKE WENATCHEE, WA 98826 | KAHLER GLEN PHASE 3 TRACT J RD 0.0800 ACRES |
39053 | UNASSIGNED
LAKE WENATCHEE, WA 98826 | KAHLER GLEN PHASE 3 AREA A 0.8200 ACRES |
39054 | UNASSIGNED
LAKE WENATCHEE, WA 98826 | KAHLER GLEN PHASE 3 AREA B 9.6000 ACRES |
39055 | UNASSIGNED
LAKE WENATCHEE, WA 98826 | KAHLER GLEN PHASE 3 AREA C 9.2200 ACRES |
39056 | 20890 KAHLER DR
LAKE WENATCHEE, WA 98826 | KAHLER GLEN PHASE 3 OPEN SPACE AREA W OF TRACT F 86.5000 ACRES |
39094 | 20717 MIRACLE MILE
LAKE WENATCHEE, WA 98826 | KAHLER GLEN PHASE IV BLOCK 23 LOT 4 BA#2005-019 LOT B 0.7600 ACRES |
39095 | 20719 MIRACLE MILE
LAKE WENATCHEE, WA 98826 | KAHLER GLEN PHASE IV BLOCK 23 LOT 5 1.2200 ACRES |
39096 | 20721 MIRACLE MILE
LAKE WENATCHEE, WA 98826 | KAHLER GLEN PHASE IV BLOCK 23 LOT 6 1.3100 ACRES |
39097 | 20723 MIRACLE MILE
LAKE WENATCHEE, WA 98826 | KAHLER GLEN PHASE IV BLOCK 23 LOT 7 1.4400 ACRES |
|
5 | 06/08/2004 | W | Warranty Deed | | KAHLER GLEN GOLF SKI RESORT | | | $2,066,450.00 | 12309219 | 2175257 |
6 | 08/20/1991 | W | Warranty Deed | | KAHLER GLEN | 953 | 2217 | | 0 | |