Property
Account |
| Property ID: | 21070 | Abbreviated Legal Description: | T 23N R 19EWM S 04 LOT 2 SP 2011-073 LOT B BLA 2008-155 LOT 2 SP 3268 SESE 3.2600 ACRES |
| Geographic ID: | 231904440100 | Agent Code: | |
| Type: | Real | | |
| Tax Area: | 60 - 222 F6 | Land Use Code | 11 |
| Open Space: | N | DFL | N |
| Historic Property: | N | Remodel Property: | N |
| Multi-Family Redevelopment: | N | | |
| Township: | 23N | Section: | 04 |
| Range: | 19EWM | Legal Acres: | 3.2600 |
Location |
| Address: | 4626 RANK RD CASHMERE, WA 98815 | Mapsco: | |
| Neighborhood: | Cycle 1 Cashmere south Div 4 Res | Map ID: | 1CSHS04R01 |
| Neighborhood CD: | 1CSHS04R01 |
Owner |
| Name: | BUMGARNER HOWARD S | Owner ID: | 126765 |
| Mailing Address: | 4626 RANK RD CASHMERE, WA 98815 | % Ownership: | % |
| | | Exemptions: | |
Pay Tax Due
Select the appropriate checkbox next to the year to be paid. Multiple years may be selected.
*Convenience Fee not included
Taxes and Assessment Details
Values
| (+) Improvement Homesite Value: | + | $343,743 | |
| (+) Improvement Non-Homesite Value: | + | $38,420 | |
| (+) Land Homesite Value: | + | $204,400 | |
| (+) Land Non-Homesite Value: | + | $41,653 | |
| (+) Curr Use (HS): | + | $0 | $0 |
| (+) Curr Use (NHS): | + | $0 | $0 |
| | | -------------------------- | |
| (=) Market Value: | = | $628,216 | |
| (–) Productivity Loss: | – | $0 | |
| | | -------------------------- | |
| (=) Subtotal: | = | $628,216 | |
| (+) Senior Appraised Value: | + | $0 | |
| (+) Non-Senior Appraised Value: | + | $628,216 | |
| | | -------------------------- | |
| (=) Total Appraised Value: | = | $628,216 | |
| (–) Senior Exemption Loss: | – | $0 | |
| (–) Exemption Loss: | – | $0 | |
| | | -------------------------- | |
| (=) Taxable Value: | = | $628,216 | |
Taxing Jurisdiction
| Owner: | BUMGARNER HOWARD S | | |
| % Ownership: | 100.0000000000% | | |
| Total Value: | $628,216 | | |
| Tax Area: | 60 - 222 F6 |
| 110001 | County Road General | 0.8076331830 | $628,216 | $628,216 | $507.37 | | |
| 010170 | Chelan County | 0.7131947979 | $628,216 | $628,216 | $448.04 | | |
| 155001 | Veteran's Relief | 0.0131417976 | $628,216 | $628,216 | $8.26 | | |
| 160001 | Mental Health | 0.0178579654 | $628,216 | $628,216 | $11.22 | | |
| 656601 | Fire No 6 General | 0.3200866632 | $628,216 | $628,216 | $201.08 | | |
| 644001 | Regional Library | 0.2534738555 | $628,216 | $628,216 | $159.24 | | |
| 671101 | Port of Chelan County | 0.1575963345 | $628,216 | $628,216 | $99.00 | | |
| 654121 | Cashmere SD 222 General | 2.1385468397 | $628,216 | $628,216 | $1,343.47 | | |
| 654130 | Cashmere SD 222 Bond | 0.9942337244 | $628,216 | $628,216 | $624.59 | | |
| 654135 | Cashmere SD 222 Cap Projects | 0.0000000000 | $628,216 | $628,216 | $0.00 | | |
| 652001 | State School Refund | 0.0000948042 | $628,216 | $628,216 | $0.06 | | |
| 652003 | State School 2 | 0.8859835425 | $628,216 | $628,216 | $556.59 | | |
| 652005 | State School | 1.6474423412 | $628,216 | $628,216 | $1,034.95 | | |
| 652025 | State School 2 Refund | 0.0000512608 | $628,216 | $628,216 | $0.03 | | |
| 107001 | Flood Control Zone | 0.0399650208 | $628,216 | $628,216 | $25.11 | | |
| | Total Tax Rate: | 7.9893021307 | | | | | |
| | | | | Taxes w/Current Exemptions: | $5,019.01 | | |
| | | | | Taxes w/o Exemptions: | $5,019.01 | | |
Improvement / Building
| Improvement #1: | RESIDENTIAL | State Code: | 11 | 1742.0 sqft | Value: | $343,743 |
| Exterior Wall: | Metal or Vinyl | Heating/Cooling: | Heat Pump | | Number of Bathrooms: | 3 | Number of Bedrooms: | 3 |
|
| | Type | Description | Class CD | Sub Class CD | Year Built | Area |
| | MA | Main | AVERAGE | 1 STY | 1994 | 1742.0 |
| | GAR-ATT | Attached Garage | AVERAGE | 1 STY | 1994 | 1296.0 |
| | PP-OPEN | Open Concrete Porch | GOOD | * | 1994 | 308.0 |
| | DECK | Open Wood Deck | AVERAGE | * | 1994 | 160.0 |
| Improvement #2: | RESIDENTIAL | State Code: | 11 | 0.0 sqft | Value: | $38,420 |
Sketch
| No sketches available for this property. |
Property Image
Land
| 1 | RES 300 | RESIDUAL $300/A | 1.2600 | 54885.60 | 0.00 | 0.00 | 1.00 | $773 | $0 |
| 2 | RES 20K | RESIDUAL $20,000/A | 1.0000 | 43560.00 | 0.00 | 0.00 | 1.00 | $40,880 | $0 |
| 3 | SV 100K | SITE VALUE $100,000 | 1.0000 | 43560.00 | 0.00 | 0.00 | 1.00 | $204,400 | $0 |
Roll Value History
| 2026 | N/A | N/A | N/A | N/A | N/A |
| 2025 | $413,192 | $253,083 | $0 | $666,275 | $666,275 |
| 2024 | $382,163 | $246,053 | $0 | $628,216 | $628,216 |
| 2023 | $390,646 | $246,053 | $0 | $636,699 | $636,699 |
| 2022 | $305,542 | $299,982 | $0 | $605,524 | $605,524 |
| 2021 | $196,841 | $299,982 | $0 | $496,823 | $496,823 |
| 2020 | $316,595 | $205,003 | $0 | $521,598 | $521,598 |
| 2019 | $297,950 | $139,638 | $0 | $437,588 | $437,588 |
| 2018 | $302,952 | $128,275 | $0 | $431,227 | $431,227 |
| 2017 | $255,526 | $133,620 | $0 | $389,146 | $389,146 |
| 2016 | $161,996 | $120,378 | $0 | $282,374 | $127,998 |
| 2015 | $163,799 | $120,378 | $0 | $284,177 | $127,998 |
| 2014 | $158,662 | $120,378 | $0 | $279,040 | $185,947 |
| 2013 | $160,389 | $120,378 | $0 | $280,767 | $86,606 |
| 2012 | $169,088 | $120,378 | $0 | $289,466 | $86,606 |
| 2011 | $198,018 | $155,940 | $0 | $353,958 | $151,098 |
| 2010 | $198,018 | $155,940 | $0 | $353,958 | $151,098 |
| 2009 | $198,018 | $172,540 | $0 | $370,558 | $167,698 |
| 2008 | $154,499 | $60,620 | $0 | $215,119 | $215,119 |
| 2007 | $125,569 | $79,574 | $0 | $205,143 | $173,490 |
Deed and Sales History
| 1 | 03/27/2024 | AFF | Affidavit | BUMGARNER HOWARD S & KAY J | BUMGARNER HOWARD S | | | | 0 | 2592484 |
| 2 | 06/02/2017 | PR | Personal Representatives Deed | MILNE CONSTANCE M | BUMGARNER HOWARD S & KAY J | | | $439,200.00 | 174504 | 2458548 |
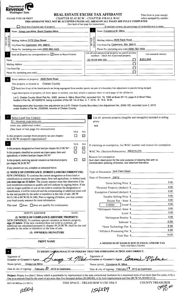
| 3 | 02/17/2012 | Q | Quit Claim Deed | MILNE GREGG L & BRENT C PR ESTATE OF JAMES MILNE | MILNE CONSTANCE M | | | | 154289 | 2356441 |
| 4 | 06/02/2010 | SWD | Statutory Warranty Deed | | MILNE CONSTANCE M | | | $4,349.00 | 149116 | 2324251 |
|   | |
| 5 | 06/02/2010 | SWD | Statutory Warranty Deed | MILNE COSTANCE M ETAL | WHITE JOSEPH T & CONSTANCE R | | | $50,000.00 | 149117 | 2324250 |
|   | |
| 6 | 05/19/1999 | O | Other | CHELAN CO | MILNE JAMES | | | | 0 | 2053387 |
| 7 | 01/21/1999 | Q | Quit Claim Deed | CASHMERE HGTS | MILNE ALLEN | | | | 0 | 2045162 |
| 8 | 04/08/1996 | WFD | Warranty Fulfillment Deed | KENNEDY DOROTHY | KENNEDY ALBERT | 1062 | 2158 | | 0 | |
| 9 | 11/13/1995 | SWD | Statutory Warranty Deed | MILNE JAMES ALL | WHITE JOSEPH T | 1054 | 1082 | | 0 | |
| 10 | 11/13/1995 | O | Other | MILNE JAMES A | WHITE JOSEPH T | 1054 | 1077 | | 0 | |
| 11 | 09/12/1995 | Q | Quit Claim Deed | BIXLER FERN G E | MILNE JAMES A | 1050 | 2014 | | 0 | |
| 12 | 12/23/1993 | Q | Quit Claim Deed | MILNE, JAMES A | | 1010 | 960 | | 0 | |
| 13 | 12/23/1993 | Q | Quit Claim Deed | KENNEDY A KIM | MILNE JAMES ALL | 1010 | 960 | | 0 | |
| 14 | 08/04/1989 | AMND REC | Amended Real Estate Contract | KENNEDY DOROTHY | KENNEDY ALBERT | 914 | 1190 | | 0 | |
| 15 | 09/21/1965 | SWD | Statutory Warranty Deed | | MILNE CONSTANCE M | 673 | 1052 | | 0 | |
| 16 | 04/19/1957 | Q | Quit Claim Deed | ALBERT A KENNED | Y | 567 | 11 | | 0 | |
| 17 | 01/21/1999 | Q | Quit Claim Deed | | | | | | 10060200 | 2045164 |
| 18 | 01/21/1999 | Q | Quit Claim Deed | | | | | | 10060300 | 2045163 |
| 19 | 01/21/1999 | Q | Quit Claim Deed | | | | | | 10060400 | 2045162 |
Payout Agreement
| No payout information available.. |