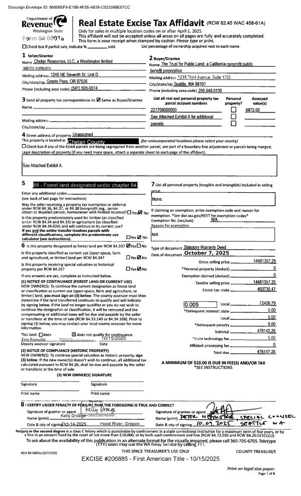
| 14082 | UNASSIGNED
PESHASTIN, WA 98847 | T 22N R 17EWM S 09 ALL 640.0000 ACRES |
| 14087 | UNASSIGNED
PESHASTIN, WA 98847 | T 22N R 17EWM S 13 PT SESW SWSE SESE LESS PIT SITE LOT A CE 2021-209 L2 CE 2010-005 141.6400 ACRES |
| 14092 | UNASSIGNED
PESHASTIN, WA 98847 | T 22N R 17EWM S 15 ALL 640.0000 ACRES |
| 14094 | UNASSIGNED
PESHASTIN, WA 98847 | T 22N R 18EWM S 05 ALL 807.4800 ACRES |
| 14097 | UNASSIGNED
PESHASTIN, WA 98847 | T 22N R 18EWM S 07 N2 303.5800 ACRES |
| 14099 | UNASSIGNED
PESHASTIN, WA 98847 | T 22N R 18EWM S 09 ALL 640.0000 ACRES |
| 14101 | UNASSIGNED
PESHASTIN, WA 98847 | T 22N R 18EWM S 11 ALL 640.0000 ACRES |
| 14110 | UNASSIGNED
PESHASTIN, WA 98847 | T 22N R 18EWM S 19 S2 305.4100 ACRES |
| 18961 | UNASSIGNED
PESHASTIN, WA 98847 | T 22N R 17EWM S 01 PT E1/2 & PT SW LOT 1 CE 2012-118 467.5300 ACRES |
| 19027 | UNASSIGNED
PESHASTIN, WA 98847 | T 22N R 17EWM S 21 ALL 640.0000 ACRES |
| 19029 | UNASSIGNED
PESHASTIN, WA 98847 | T 22N R 17EWM S 23 ALL 640.0000 ACRES |
| 19031 | UNASSIGNED
PESHASTIN, WA 98847 | T 22N R 17EWM S 25 ALL 640.0000 ACRES |
| 19033 | UNASSIGNED
PESHASTIN, WA 98847 | T 22N R 17EWM S 27 ALL 640.0000 ACRES |
| 19036 | 5572 OLD BLEWETT PASS HWY
PESHASTIN, WA 98847 | T 22N R 17EWM S 35 LESS PT W2SESW 450.0000 ACRES |
| 19090 | UNASSIGNED
PESHASTIN, WA 98847 | T 22N R 18EWM S 03 ALL 815.8900 ACRES |
| 19221 | UNASSIGNED
PESHASTIN, WA 98847 | T 22N R 18EWM S 29 ALL LESS E2E2 480.0000 ACRES |
| 19387 | UNASSIGNED
CASHMERE, WA 98815 | T 22N R 19EWM S 03 ALL 643.8600 ACRES |
| 19389 | UNASSIGNED
CASHMERE, WA 98815 | T 22N R 19EWM S 04 SE 170.1700 ACRES |
| 20386 | UNASSIGNED
PESHASTIN, WA 98847 | T 23N R 18EWM S 04 SW W2NW 234.9300 ACRES |
| 20388 | UNASSIGNED
PESHASTIN, WA 98847 | T 23N R 18EWM S 05 GOVT LOT 5-14 SE 510.5600 ACRES |
| 20436 | UNASSIGNED
PESHASTIN, WA 98847 | T 23N R 18EWM S 07 PT LOT D BLA 2002-080 ADMIN SEG TCA 99.1000 ACRES |
| 20458 | UNASSIGNED
PESHASTIN, WA 98847 | T 23N R 18EWM S 08 N2NE SENE 120.0000 ACRES |
| 20461 | UNASSIGNED
PESHASTIN, WA 98847 | T 23N R 18EWM S 08 NWSW S2SW 120.0000 ACRES |
| 20462 | UNASSIGNED
PESHASTIN, WA 98847 | T 23N R 18EWM S 09 ALL 624.0000 ACRES |
| 20463 | UNASSIGNED
CASHMERE, WA 98815 | T 23N R 18EWM S 10 E2NW N2NE 160.0000 ACRES |
| 20464 | UNASSIGNED
CASHMERE, WA 98815 | T 23N R 18EWM S 10 S2NE SW4 W2SE N2NESE 400.0000 ACRES |
| 20493 | UNASSIGNED
CASHMERE, WA 98815 | T 23N R 18EWM S 11 NESW SWSW SESW 120.0000 ACRES |
| 20550 | UNASSIGNED
CASHMERE, WA 98815 | T 23N R 18EWM S 14 NENW SWNW NWSW 120.0000 ACRES |
| 20551 | UNASSIGNED
CASHMERE, WA 98815 | T 23N R 18EWM S 14 NWNW 40.0000 ACRES |
| 20553 | UNASSIGNED
CASHMERE, WA 98815 | T 23N R 18EWM S 14 NESE 40.0000 ACRES |
| 20556 | UNASSIGNED
CASHMERE, WA 98815 | T 23N R 18EWM S 14 S2SE 80.0000 ACRES |
| 20558 | UNASSIGNED
CASHMERE, WA 98815 | T 23N R 18EWM S 15 S1/2N1/2 N1/2S1/2 320.0000 ACRES |
| 20559 | UNASSIGNED
CASHMERE, WA 98815 | T 23N R 18EWM S 15 S1/2S1/2 160.0000 ACRES |
| 20562 | UNASSIGNED
PESHASTIN, WA 98847 | T 23N R 18EWM S 17 LOT B BLA 2017-172 531.7000 ACRES |
| 20681 | UNASSIGNED
CASHMERE, WA 98815 | T 23N R 18EWM S 23 E2E2W2 480.0000 ACRES |
| 20698 | UNASSIGNED
CASHMERE, WA 98815 | T 23N R 18EWM S 26 E2W2 160.0000 ACRES |
| 20699 | UNASSIGNED
CASHMERE, WA 98815 | T 23N R 18EWM S 26 E1/2 320.0000 ACRES |
| 20711 | UNASSIGNED
PESHASTIN, WA 98847 | T 23N R 18EWM S 31 ALL FRACT 668.7200 ACRES |
| 20714 | UNASSIGNED
PESHASTIN, WA 98847 | T 23N R 18EWM S 33 S1/2 320.0000 ACRES |
| 20715 | UNASSIGNED
PESHASTIN, WA 98847 | T 23N R 18EWM S 34 ALL 640.0000 ACRES |
| 20716 | UNASSIGNED
CASHMERE, WA 98815 | T 23N R 18EWM S 35 NES1/2 E1/2NW 560.0000 ACRES |
| 32555 | UNASSIGNED
LEAVENWORTH, WA 98826 | T 25N R 17EWM S 13 ALL FRACT 692.7200 ACRES |
| 32566 | UNASSIGNED
LEAVENWORTH, WA 98826 | T 25N R 17EWM S 23 ALL 640.0000 ACRES |
| 32610 | UNASSIGNED
LEAVENWORTH, WA 98826 | T 25N R 18EWM S 02 ALL 644.7900 ACRES |
| 32611 | UNASSIGNED
LEAVENWORTH, WA 98826 | T 25N R 18EWM S 03 ALL 644.4300 ACRES |
| 32612 | UNASSIGNED
LEAVENWORTH, WA 98826 | T 25N R 18EWM S 04 ALL 644.8800 ACRES |
| 32715 | UNASSIGNED
LEAVENWORTH, WA 98826 | T 25N R 18EWM S 10 ALL 640.0000 ACRES |
| 32716 | UNASSIGNED
LEAVENWORTH, WA 98826 | T 25N R 18EWM S 11 ALL 640.0000 ACRES |
| 32723 | UNASSIGNED
LEAVENWORTH, WA 98826 | T 25N R 18EWM S 15 ALL FRACT 640.0000 ACRES |
| 32753 | UNASSIGNED
LEAVENWORTH, WA 98826 | T 25N R 18EWM S 18 N2SW 111.1100 ACRES |
| 32853 | UNASSIGNED
LEAVENWORTH, WA 98826 | T 25N R 18EWM S 21 NENWSE & N1/2 NWSW EXCEPT E2SW 500.0000 ACRES |
| 33151 | UNASSIGNED
ENTIAT, WA 98822 | T 25N R 19EWM S 03 ALL FRACT 643.5300 ACRES |
| 33157 | UNASSIGNED
ENTIAT, WA 98822 | T 25N R 19EWM S 09 ALL 640.0000 ACRES |
| 33159 | UNASSIGNED
ENTIAT, WA 98822 | T 25N R 19EWM S 11 ALL 640.0000 ACRES |
| 33161 | UNASSIGNED
ENTIAT, WA 98822 | T 25N R 19EWM S 13 ALL 640.0000 ACRES |
| 33163 | UNASSIGNED
ENTIAT, WA 98822 | T 25N R 19EWM S 15 ALL 640.0000 ACRES |
| 33167 | UNASSIGNED
LEAVENWORTH, WA 98826 | T 25N R 19EWM S 19 ALL FRACT 644.5400 ACRES |
| 33171 | UNASSIGNED
ENTIAT, WA 98822 | T 25N R 19EWM S 23 ALL 640.0000 ACRES |
| 33173 | UNASSIGNED
ENTIAT, WA 98822 | T 25N R 19EWM S 25 ALL 640.0000 ACRES |
| 34479 | UNASSIGNED
LAKE WENATCHEE, WA 98826 | T 26N R 15EWM S 09 ALL 578.8200 ACRES |
| 34867 | UNASSIGNED
LAKE WENATCHEE, WA 98826 | T 26N R 16EWM S 13 ALL 623.5100 ACRES |
| 34869 | UNASSIGNED
LAKE WENATCHEE, WA 98826 | T 26N R 16EWM S 14 S2S2 160.2000 ACRES |
| 34870 | UNASSIGNED
LAKE WENATCHEE, WA 98826 | T 26N R 16EWM S 15 ALL 640.0000 ACRES |
| 34880 | UNASSIGNED
LAKE WENATCHEE, WA 98826 | T 26N R 16EWM S 22 ALL 640.0000 ACRES |
| 34881 | UNASSIGNED
LAKE WENATCHEE, WA 98826 | T 26N R 16EWM S 23 ALL 640.0000 ACRES |
| 34882 | UNASSIGNED
LAKE WENATCHEE, WA 98826 | T 26N R 16EWM S 24 ALL 628.6400 ACRES |
| 34884 | UNASSIGNED
LAKE WENATCHEE, WA 98826 | T 26N R 16EWM S 25 ALL EXCEPT E2SWSW 614.5000 ACRES |
| 34886 | UNASSIGNED
LAKE WENATCHEE, WA 98826 | T 26N R 16EWM S 26 N2 320.0000 ACRES |
| 34888 | UNASSIGNED
LAKE WENATCHEE, WA 98826 | T 26N R 16EWM S 27 ALL EXCEPT PART S1/2 &W1/2NWNW 376.9000 ACRES |
| 36906 | UNASSIGNED
LEAVENWORTH, WA 98826 | T 26N R 18EWM S 35 ALL SEC 35 598.2600 ACRES |
| 36951 | UNASSIGNED
LEAVENWORTH, WA 98826 | T 26N R 19EWM S 19 ALL FRACT 644.7300 ACRES |
| 36953 | UNASSIGNED
LEAVENWORTH, WA 98826 | T 26N R 19EWM S 29 ALL 640.0000 ACRES |
| 62051 | UNASSIGNED
PESHASTIN, WA 98847 | T 23N R 18EWM S 07 PT LOT D BLA 2002-080 ADMIN SEG TCA 77.7700 ACRES |
| 64321 | UNASSIGNED
PESHASTIN, WA 98847 | T 22N R 17EWM S 01 SWNW,LOT 2 CE 2012-118 20.3000 ACRES |