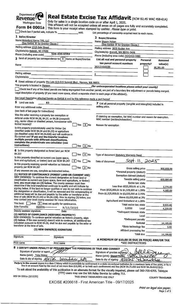
| 46559 | 71 SR 150
CHELAN, WA 98816 | T 27N R 23EWM S 18 NE1/4 NWSESE 3.9100 ACRES |
| 48475 | UNASSIGNED
MANSON, WA 98831 | T 28N R 21EWM S 25 LOT 4 CE 2009-009 12.4000 ACRES |
| 48776 | UNASSIGNED
MANSON, WA 98831 | HIGHLINE NO 4 LOT 184, 8.5300 ACRES |
| 50364 | 299 GREAT HORNED OWL LN
MANSON, WA 98831 | T 28N R 22EWM S 19 LOT A BLA 2012-156 LOT 2 CE 2009-031 119.0000 ACRES |
| 50369 | UNASSIGNED
MANSON, WA 98831 | T 28N R 22EWM S 19 NENW 6.9000 ACRES |
| 50370 | 413 DEAD END LN
MANSON, WA 98831 | T 28N R 22EWM S 19 LOT A CE 2006-036; GOV LOT 3; 23.0000 ACRES |
| 50375 | UNASSIGNED
MANSON, WA 98831 | T 28N R 22EWM S 20 SWNE P SE & P NW LOT 2 CE 2023-414 LOT B BLA 2023-310 165.2300 ACRES |
| 50381 | UNASSIGNED
MANSON, WA 98831 | T 28N R 22EWM S 20 SESESE PARCEL F 2.6100 ACRES |
| 50571 | 302 CROOKED MILE LN
CHELAN, WA 98816 | T 28N R 22EWM S 27 SWSW SE SW P W1/2 SW 99.1000 ACRES |
| 50598 | UNASSIGNED
CHELAN, WA 98816 | T 28N R 22EWM S 28 SWNW 11.8200 ACRES |
| 50599 | UNASSIGNED
CHELAN, WA 98816 | T 28N R 22EWM S 28 SWNW 4.6600 ACRES |
| 50621 | UNASSIGNED
MANSON, WA 98831 | T 28N R 22EWM S 29 PT OF E1/2 OF NE1/4 56.0900 ACRES |
| 50622 | 1565 KLATE RD
MANSON, WA 98831 | T 28N R 22EWM S 29 PORTION OF NENWSESW 158.1900 ACRES |
| 50623 | UNASSIGNED
MANSON, WA 98831 | T 28N R 22EWM S 29 NESW 8.0000 ACRES |
| 50647 | UNASSIGNED
MANSON, WA 98831 | HIGHLINE NO 2 LOT 333 L 19-22-33-34-35 HI-LINE 2,22 106.7700 ACRES |
| 50653 | 822 SEVEN STAR LN
MANSON, WA 98831 | T 28N R 22EWM S 30 SE SEC 19 NW SEC 29 PT LA BLA 2023-310 ADMIN SEG PT L2 CE 22-448 390.5900 ACRES |
| 50660 | UNASSIGNED
MANSON, WA 98831 | T 28N R 22EWM S 30 GOV L 2-3 13.7500 ACRES |
| 50744 | 19 APPLE EYE LN
MANSON, WA 98831 | LOW LINE NO 1 LOT 80 PART 8.8800 ACRES |
| 50875 | 309 CRIMSON LN
MANSON, WA 98831 | HIGHLINE NO 1 LOT 4, 71.3100 ACRES |
| 62423 | IVAN MORSE RD
MANSON, WA 98831 | T 28N R 21EWM S 25 LOT 1 CE 2022-449 LOT 3 CE 2009-009 LB CE 08-019 2988 2.9000 ACRES |
| 62424 | UNASSIGNED
MANSON, WA 98831 | T 28N R 21EWM S 25 LOT 2 CE 2009-009 LB CE 08-019 LB BLA 07-045 L3 SP 2988B L2 CE 06 -055 L2 SP 2988 10.0000 ACRES |
| 63209 | UNASSIGNED
MANSON, WA 98831 | T 28N R 21EWM S 24 LOT 2 CE 2022-447 LOT B BLA 2019-026 LOT 1 CE 2009-031 80.7000 ACRES |
| 63210 | UNASSIGNED
MANSON, WA 98831 | T 28N R 22EWM S 20 LOT C BLA 2012-156 LOT 3 CE 2009-031 102.4800 ACRES |
| 67712 | UNASSIGNED
MANSON, WA 98831 | T 28N R 21EWM S 24 PTN E OF RD NESE 2.5500 ACRES |
| 68487 | UNASSIGNED
MANSON, WA 98831 | T 28N R 21EWM S 27 PART NENW 0.4500 ACRES |
| 69640 | UNASSIGNED
MANSON, WA 98831 | HIGHLINE NO 5 LOT 513 LOT E BLA 2023-270 2.5000 ACRES |
| 69641 | UNASSIGNED
MANSON, WA 98831 | HIGHLINE NO 5 LOT 514 LOT D BLA 2023-270 2.5000 ACRES |
| 69642 | UNASSIGNED
MANSON, WA 98831 | HIGHLINE NO 5 LOT 515 LOT C BLA 2023-270 2.5000 ACRES |
| 69644 | UNASSIGNED
MANSON, WA 98831 | HIGHLINE NO 5 LOT 518 LOT A BLA 2023-270 LOT B BLA 2022-474 13.6500 ACRES |
| 69673 | UNASSIGNED
MANSON, WA 98831 | HIGHLINE NO 4 LOT 177 P/T STRIP W OF LOT 177 LOT E BLA 2024-308 LOT C BLA 2022-486 5.8200 ACRES |
| 69674 | CHELAN PL
MANSON, WA 98831 | HIGHLINE NO 4 PART LOT 55 N OF ROAD 0.8800 ACRES |
| 69675 | UNASSIGNED
MANSON, WA 98831 | WILLOW POINT BEACH BLOCK 2 LOT 4 LOT A BLA 2024-308 0.6000 ACRES |
| 69676 | UNASSIGNED
MANSON, WA 98831 | WILLOW POINT BEACH BLOCK 2 LOT 5 LOT B BLA 2024-308 0.9400 ACRES |
| 69677 | UNASSIGNED
MANSON, WA 98831 | WILLOW POINT BEACH BLOCK 2 LOT 6 LOT C BLA 2024-308 0.7900 ACRES |
| 69678 | UNASSIGNED
MANSON, WA 98831 | T 28N R 21EWM S 27 PT SESW & PT SEC 34 NE LOT D BLA 2024-308 94.1900 ACRES |