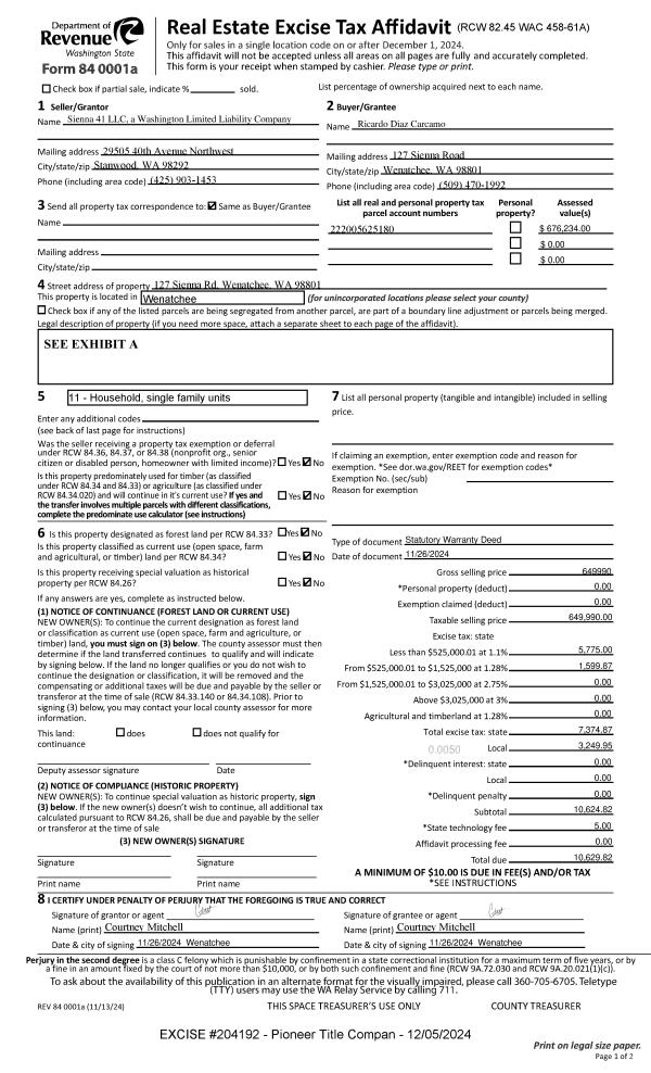
1 | 12/05/2024 | SWD | Statutory Warranty Deed | SIENNA 41 LLC | DIAZ CARCAMO RICARDO | | | $649,990.00 | 204192 | 2601989 |
2 | 01/07/2021 | SWD | Statutory Warranty Deed | MC KITTRICK PLACE LLC | SIENNA 41 LLC | | | $2,860,000.00 | 190060 | 2533807 |
  |
68489 | 239 SIENNA RD
WENATCHEE, WA 98801 | SIENNA HEIGHTS PHASE 1 LOT 1 0.1500 ACRES |
68490 | 235 SIENNA RD
WENATCHEE, WA 98801 | SIENNA HEIGHTS PHASE 1 LOT 2 0.1200 ACRES |
68491 | 231 SIENNA RD
WENATCHEE, WA 98801 | SIENNA HEIGHTS PHASE 1 LOT 3 0.1300 ACRES |
68492 | 227 SIENNA RD
WENATCHEE, WA 98801 | SIENNA HEIGHTS PHASE 1 LOT 4 0.1300 ACRES |
68493 | 223 SIENNA RD
WENATCHEE, WA 98801 | SIENNA HEIGHTS PHASE 1 LOT 5 0.1300 ACRES |
68494 | 219 SIENNA RD
WENATCHEE, WA 98801 | SIENNA HEIGHTS PHASE 1 LOT 6 0.1300 ACRES |
68495 | 215 SIENNA RD
WENATCHEE, WA 98801 | SIENNA HEIGHTS PHASE 1 LOT 7 0.1400 ACRES |
68496 | 211 SIENNA RD
WENATCHEE, WA 98801 | SIENNA HEIGHTS PHASE 1 LOT 8 0.1600 ACRES |
68497 | 207 SIENNA RD
WENATCHEE, WA 98801 | SIENNA HEIGHTS PHASE 1 LOT 9 0.1500 ACRES |
68498 | 203 SIENNA RD
WENATCHEE, WA 98801 | SIENNA HEIGHTS PHASE 1 LOT 10 0.1500 ACRES |
68499 | 155 SIENNA RD
WENATCHEE, WA 98801 | SIENNA HEIGHTS PHASE 1 LOT 11 0.1500 ACRES |
68500 | 151 SIENNA RD
WENATCHEE, WA 98801 | SIENNA HEIGHTS PHASE 1 LOT 12 0.1500 ACRES |
68501 | 147 SIENNA RD
WENATCHEE, WA 98801 | SIENNA HEIGHTS PHASE 1 LOT 13 0.1400 ACRES |
68502 | 143 SIENNA RD
WENATCHEE, WA 98801 | SIENNA HEIGHTS PHASE 1 LOT 14 0.1400 ACRES |
68503 | 139 SIENNA RD
WENATCHEE, WA 98801 | SIENNA HEIGHTS PHASE 1 LOT 15 0.1400 ACRES |
68504 | 135 SIENNA RD
WENATCHEE, WA 98801 | SIENNA HEIGHTS PHASE 1 LOT 16 0.1400 ACRES |
68505 | 131 SIENNA RD
WENATCHEE, WA 98801 | SIENNA HEIGHTS PHASE 1 LOT 17 0.1400 ACRES |
68507 | 123 SIENNA RD
WENATCHEE, WA 98801 | SIENNA HEIGHTS PHASE 1 LOT 19 0.1400 ACRES |
68508 | 119 SIENNA RD
WENATCHEE, WA 98801 | SIENNA HEIGHTS PHASE 1 LOT 20 0.1400 ACRES |
68509 | 240 SIENNA RD
WENATCHEE, WA 98801 | SIENNA HEIGHTS PHASE 1 LOT 21 0.1700 ACRES |
68510 | 236 SIENNA RD
WENATCHEE, WA 98801 | SIENNA HEIGHTS PHASE 1 LOT 22 0.1500 ACRES |
|
3 | 08/05/2016 | SWD | Statutory Warranty Deed | SEYSTER ALVIN J & JOLLY A | MC KITTRICK PLACE LLC | | | $525,000.00 | 0 | 2441650 |
4 | 02/14/1978 | SWD | Statutory Warranty Deed | | SEYSTER ALVIN J & JOLLY A | 751 | 806 | | 0 | |