Property
Account |
| Property ID: | 68442 | Abbreviated Legal Description: | T 23N R 19EWM S 03 LOT 4 SP 2020-02CA LB BLA 2005-129 TOGETHER W/QUIET TITLE L2 BLA 2005-125 2.8600 ACRES |
| Geographic ID: | 231903320130 | Agent Code: | |
| Type: | Real | | |
| Tax Area: | 100 - CA 222 | Land Use Code | 69 |
| Open Space: | N | DFL | N |
| Historic Property: | N | Remodel Property: | N |
| Multi-Family Redevelopment: | N | | |
| Township: | 23N | Section: | 03 |
| Range: | 19EWM | Legal Acres: | 2.8600 |
Location |
| Address: | 120 WHITEFISH DR CASHMERE, WA 98815 | Mapsco: | |
| Neighborhood: | Cycle 1 Cashmere city Div 1 Com | Map ID: | 1CSHC01C01 |
| Neighborhood CD: | 1CSHC01C01 |
Owner |
| Name: | RIVER'S EDGE REAL ESTATE LLC | Owner ID: | 118484 |
| Mailing Address: | 1840 N WENATCHEE AVE WENATCHEE, WA 98801 | % Ownership: | % |
| | | Exemptions: | |
Pay Tax Due
There is currently No Amount Due on this property.
Taxes and Assessment Details
Values
| (+) Improvement Homesite Value: | + | $0 | |
| (+) Improvement Non-Homesite Value: | + | $3,443,197 | |
| (+) Land Homesite Value: | + | $0 | |
| (+) Land Non-Homesite Value: | + | $249,163 | |
| (+) Curr Use (HS): | + | $0 | $0 |
| (+) Curr Use (NHS): | + | $0 | $0 |
| | | -------------------------- | |
| (=) Market Value: | = | $3,692,360 | |
| (–) Productivity Loss: | – | $0 | |
| | | -------------------------- | |
| (=) Subtotal: | = | $3,692,360 | |
| (+) Senior Appraised Value: | + | $0 | |
| (+) Non-Senior Appraised Value: | + | $3,692,360 | |
| | | -------------------------- | |
| (=) Total Appraised Value: | = | $3,692,360 | |
| (–) Senior Exemption Loss: | – | $0 | |
| (–) Exemption Loss: | – | $0 | |
| | | -------------------------- | |
| (=) Taxable Value: | = | $3,692,360 | |
Taxing Jurisdiction
| Owner: | RIVER'S EDGE REAL ESTATE LLC | | |
| % Ownership: | 100.0000000000% | | |
| Total Value: | $3,692,360 | | |
| Tax Area: | 100 - CA 222 |
| 693001 | Cashmere General | 1.5452711706 | $3,692,360 | $3,692,360 | $5,705.70 | | |
| 010170 | Chelan County | 0.7131947979 | $3,692,360 | $3,692,360 | $2,633.37 | | |
| 155001 | Veteran's Relief | 0.0131417976 | $3,692,360 | $3,692,360 | $48.52 | | |
| 160001 | Mental Health | 0.0178579654 | $3,692,360 | $3,692,360 | $65.94 | | |
| 644001 | Regional Library | 0.2534738555 | $3,692,360 | $3,692,360 | $935.92 | | |
| 671101 | Port of Chelan County | 0.1575963345 | $3,692,360 | $3,692,360 | $581.90 | | |
| 652025 | State School 2 Refund | 0.0000512608 | $3,692,360 | $3,692,360 | $0.19 | | |
| 107001 | Flood Control Zone | 0.0399650208 | $3,692,360 | $3,692,360 | $147.57 | | |
| 654121 | Cashmere SD 222 General | 2.1385468397 | $3,692,360 | $3,692,360 | $7,896.28 | | |
| 654130 | Cashmere SD 222 Bond | 0.9942337244 | $3,692,360 | $3,692,360 | $3,671.07 | | |
| 654135 | Cashmere SD 222 Cap Projects | 0.0000000000 | $3,692,360 | $3,692,360 | $0.00 | | |
| 652001 | State School Refund | 0.0000948042 | $3,692,360 | $3,692,360 | $0.35 | | |
| 652003 | State School 2 | 0.8859835425 | $3,692,360 | $3,692,360 | $3,271.37 | | |
| 652005 | State School | 1.6474423412 | $3,692,360 | $3,692,360 | $6,082.95 | | |
| | Total Tax Rate: | 8.4068534551 | | | | | |
| | | | | Taxes w/Current Exemptions: | $31,041.13 | | |
| | | | | Taxes w/o Exemptions: | $31,041.13 | | |
Improvement / Building
| Improvement #1: | COMMERCIAL | State Code: | 69 | 10800.0 sqft | Value: | $683,397 |
| Improvement #2: | COMMERCIAL | State Code: | 69 | 15300.0 sqft | Value: | $958,001 |
| Improvement #3: | COMMERCIAL | State Code: | 69 | 7200.0 sqft | Value: | $475,572 |
| Improvement #4: | COMMERCIAL | State Code: | 69 | 7200.0 sqft | Value: | $475,572 |
| Improvement #5: | COMMERCIAL | State Code: | 69 | 7200.0 sqft | Value: | $475,572 |
| Improvement #6: | COMMERCIAL | State Code: | 69 | 5400.0 sqft | Value: | $375,083 |
Sketch
Property Image
Land
| 1 | COM LAND | COMMERCIAL LAND | 2.8600 | 124581.60 | 0.00 | 0.00 | 1.00 | $249,163 | $0 |
Roll Value History
| 2026 | N/A | N/A | N/A | N/A | N/A |
| 2025 | $4,208,166 | $249,163 | $0 | $4,457,329 | $4,457,329 |
| 2024 | $3,443,197 | $249,163 | $0 | $3,692,360 | $3,692,360 |
| 2023 | $1,389,753 | $249,163 | $0 | $1,638,916 | $1,638,916 |
| 2022 | $19,040 | $22,880 | $0 | $41,920 | $41,920 |
| 2021 | $19,040 | $22,880 | $0 | $41,920 | $41,920 |
| 2020 | $0 | $22,880 | $0 | $22,880 | $22,880 |
Deed and Sales History
| 1 | 06/25/2021 | Q | Quit Claim Deed | THORPE BRIAN D | RIVER'S EDGE REAL ESTATE LLC | | | $0.00 | 192282 | 2547122 |
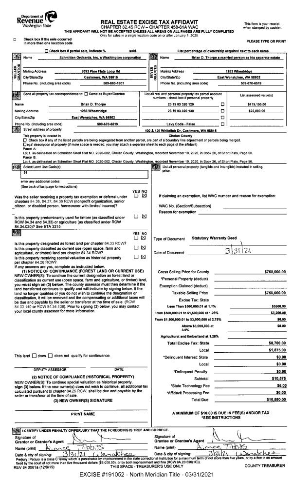
| 2 | 03/31/2021 | SWD | Statutory Warranty Deed | SCHMITTEN ORCHARDS INC | THORPE BRIAN D | | | $750,000.00 | 191052 | 2540463 |
|   | |
| 3 | 03/26/2021 | Q | Quit Claim Deed | SCHMITTEN RAYMOND C | SCHMITTEN ORCHARDS INC | | | $0.00 | 190977 | 2539962 |
| 4 | 03/21/2019 | J | Judgement | PABTISTINE JUDGE | SCHMITTEN RAYMOND C | | | | 0 | 2493596 |
| 5 | 11/18/2005 | SWD | Statutory Warranty Deed | TREE TOP INC | SCHMITTEN RAYMOND C | | | | 0 | 2214593 |
| 6 | 11/18/2005 | W | Warranty Deed | | | | | | 0 | 2214593 |
| 7 | 11/17/2005 | O | Other | BLA 2005-125CA | | | | | 0 | 2214509 |
| 8 | 11/15/2005 | O | Other | BLA 2005-129CA | | | | | 0 | 2214322 |
| 9 | 12/05/1990 | EASEMENT | Easement | CITY OF CASHMER | TREE TOP INC | 941 | 831 | | 0 | |
| 10 | 12/27/1990 | O | Other | SURVEY | BK 26 PG 39 | 0 | 0 | | 0 | |
| 11 | 01/15/1981 | SWD | Statutory Warranty Deed | KIRBY FLOYD M | TREE TOP INC | 783 | 377 | | 0 | |
Payout Agreement
| No payout information available.. |