Property
Account |
| Property ID: | 68440 | Abbreviated Legal Description: | T 23N R 19EWM S 03 LOT 1 SP 2020-02CA LB BLA 2005-129CA TOGETHER W/QUIET TITLE L2 BLA 2005-125 3.7000 ACRES |
| Geographic ID: | 231903320120 | Agent Code: | |
| Type: | Real | | |
| Tax Area: | 100 - CA 222 | Land Use Code | 81 |
| Open Space: | N | DFL | N |
| Historic Property: | N | Remodel Property: | N |
| Multi-Family Redevelopment: | N | | |
| Township: | 23N | Section: | 03 |
| Range: | 19EWM | Legal Acres: | 3.7000 |
Location |
| Address: | 100 WHITEFISH DR CASHMERE, WA 98815 | Mapsco: | |
| Neighborhood: | Cycle 1 Cashmere city Div 1 Res | Map ID: | 1CSHC01R01 |
| Neighborhood CD: | 1CSHC01R01 |
Owner |
| Name: | RIVER'S EDGE REAL ESTATE LLC | Owner ID: | 118484 |
| Mailing Address: | 1840 N WENATCHEE AVE WENATCHEE, WA 98801 | % Ownership: | % |
| | | Exemptions: | |
Pay Tax Due
There is currently No Amount Due on this property.
Taxes and Assessment Details
Values
| (+) Improvement Homesite Value: | + | $0 | |
| (+) Improvement Non-Homesite Value: | + | $80,373 | |
| (+) Land Homesite Value: | + | $0 | |
| (+) Land Non-Homesite Value: | + | $211,104 | |
| (+) Curr Use (HS): | + | $0 | $0 |
| (+) Curr Use (NHS): | + | $0 | $0 |
| | | -------------------------- | |
| (=) Market Value: | = | $291,477 | |
| (–) Productivity Loss: | – | $0 | |
| | | -------------------------- | |
| (=) Subtotal: | = | $291,477 | |
| (+) Senior Appraised Value: | + | $0 | |
| (+) Non-Senior Appraised Value: | + | $291,477 | |
| | | -------------------------- | |
| (=) Total Appraised Value: | = | $291,477 | |
| (–) Senior Exemption Loss: | – | $0 | |
| (–) Exemption Loss: | – | $0 | |
| | | -------------------------- | |
| (=) Taxable Value: | = | $291,477 | |
Taxing Jurisdiction
| Owner: | RIVER'S EDGE REAL ESTATE LLC | | |
| % Ownership: | 100.0000000000% | | |
| Total Value: | N/A | | |
| Tax Area: | 100 - CA 222 |
| 693001 | Cashmere General | N/A | N/A | N/A | N/A | | |
| 010170 | Chelan County | N/A | N/A | N/A | N/A | | |
| 155001 | Veteran's Relief | N/A | N/A | N/A | N/A | | |
| 160001 | Mental Health | N/A | N/A | N/A | N/A | | |
| 644001 | Regional Library | N/A | N/A | N/A | N/A | | |
| 671101 | Port General | N/A | N/A | N/A | N/A | | |
| 652025 | State School 2 Refund | N/A | N/A | N/A | N/A | | |
| 107001 | Flood Control Zone | N/A | N/A | N/A | N/A | | |
| 654121 | Cashmere SD 222 General | N/A | N/A | N/A | N/A | | |
| 654130 | Cashmere SD 222 Bond | N/A | N/A | N/A | N/A | | |
| 654135 | Cashmere SD 222 Cap Projects | N/A | N/A | N/A | N/A | | |
| 652001 | State School Refund | N/A | N/A | N/A | N/A | | |
| 652003 | State School 2 | N/A | N/A | N/A | N/A | | |
| 652005 | State School | N/A | N/A | N/A | N/A | | |
| | Total Tax Rate: | N/A | | | | | |
| | | | | Taxes w/Current Exemptions: | N/A | | |
| | | | | Taxes w/o Exemptions: | N/A | | |
Improvement / Building
| Improvement #1: | RESIDENTIAL | State Code: | 11 | 1522.0 sqft | Value: | $67,775 |
| Exterior Wall: | Plywood or Hrdbrd | Heating/Cooling: | Baseboard Panel | | Number of Bathrooms: | 1 | Number of Bedrooms: | 2 |
|
| Improvement #2: | RESIDENTIAL | State Code: | 11 | 0.0 sqft | Value: | $4,080 |
| Improvement #3: | RESIDENTIAL | State Code: | 11 | 0.0 sqft | Value: | $1,529 |
| Improvement #4: | RESIDENTIAL | State Code: | 11 | 0.0 sqft | Value: | $6,399 |
| | Type | Description | Class CD | Sub Class CD | Year Built | Area |
| | CP-G | Carport/Patio Cover Gable Roof | AVERAGE | 1 STY | 1977 | 784.0 |
| Improvement #5: | RESIDENTIAL | State Code: | 11 | 0.0 sqft | Value: | $590 |
| | Type | Description | Class CD | Sub Class CD | Year Built | Area |
| | CP-G | Carport/Patio Cover Gable Roof | FAIR | 1 STY | 1977 | 162.0 |
Sketch
| No sketches available for this property. |
Property Image
Land
| 1 | SV 125K | SITE VALUE $125,000 | 1.0000 | 43560.00 | 0.00 | 0.00 | 1.00 | $180,000 | $0 |
| 2 | ORCH 8K | ORCHARD $8000/A | 2.7000 | 117612.00 | 0.00 | 0.00 | 1.00 | $31,104 | $0 |
Roll Value History
| 2026 | N/A | N/A | N/A | N/A | N/A |
| 2025 | $83,498 | $211,104 | $0 | $294,602 | $294,602 |
| 2024 | $93,175 | $146,600 | $0 | $239,775 | $239,775 |
| 2023 | $95,306 | $146,600 | $0 | $241,906 | $241,906 |
| 2022 | $83,518 | $146,600 | $0 | $230,118 | $230,118 |
| 2021 | $87,499 | $146,600 | $0 | $234,099 | $234,099 |
| 2020 | $89,556 | $29,600 | $0 | $119,156 | $119,156 |
Deed and Sales History
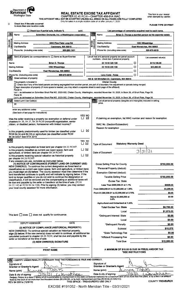
| 1 | 06/25/2021 | Q | Quit Claim Deed | THORPE BRIAN D | RIVER'S EDGE REAL ESTATE LLC | | | $0.00 | 192282 | 2547122 |
| 2 | 03/31/2021 | SWD | Statutory Warranty Deed | SCHMITTEN ORCHARDS INC | THORPE BRIAN D | | | $750,000.00 | 191052 | 2540463 |
|   | |
| 3 | 03/26/2021 | Q | Quit Claim Deed | SCHMITTEN RAYMOND C | SCHMITTEN ORCHARDS INC | | | $0.00 | 190977 | 2539962 |
| 4 | 03/21/2019 | J | Judgement | PABTISTINE JUDGE | SCHMITTEN RAYMOND C | | | | 0 | 2493596 |
| 5 | 11/18/2005 | SWD | Statutory Warranty Deed | TREE TOP INC | SCHMITTEN RAYMOND C | | | | 0 | 2214593 |
| 6 | 11/17/2005 | O | Other | BLA 2005-125CA | | | | | 0 | 2214509 |
| 7 | 11/15/2005 | O | Other | BLA 2005-129CA | | | | | 0 | 2214322 |
| 8 | 12/05/1990 | EASEMENT | Easement | CITY OF CASHMER | TREE TOP INC | 941 | 831 | | 0 | |
| 9 | 01/15/1981 | SWD | Statutory Warranty Deed | KIRBY FLOYD M | TREE TOP INC | 783 | 377 | | 0 | |
| 10 | 11/18/2005 | W | Warranty Deed | | | | | | 0 | 2214593 |
| 11 | 12/27/1990 | O | Other | SURVEY | BK 26 PG 39 | 0 | 0 | | 0 | |
Payout Agreement
| No payout information available.. |