Property
Account |
| Property ID: | 67551 | Abbreviated Legal Description: | LAVENDER COURT LOT 10 0.3600 ACRES |
| Geographic ID: | 232020860410 | Agent Code: | |
| Type: | Real | | |
| Tax Area: | 74 - 246 F1 CD3 WVFD | Land Use Code | 11 |
| Open Space: | N | DFL | N |
| Historic Property: | N | Remodel Property: | N |
| Multi-Family Redevelopment: | N | | |
| Township: | | Section: | |
| Range: | | Legal Acres: | 0.3600 |
Location |
| Address: | 118 STARLIGHT AVE WENATCHEE, WA 98801 | Mapsco: | |
| Neighborhood: | Cycle 2 Sunnyslope mid div 1 RES | Map ID: | 2SSLM01R01 |
| Neighborhood CD: | 2SSLM01R01 |
Owner |
| Name: | BIEBESHEIMER DAVID & BRENDA | Owner ID: | 114121 |
| Mailing Address: | 118 STARLIGHT AVE WENATCHEE, WA 98801 | % Ownership: | % |
| | | Exemptions: | |
Pay Tax Due
Select the appropriate checkbox next to the year to be paid. Multiple years may be selected.
*Convenience Fee not included
Taxes and Assessment Details
Values
| (+) Improvement Homesite Value: | + | N/A | |
| (+) Improvement Non-Homesite Value: | + | N/A | |
| (+) Land Homesite Value: | + | N/A | |
| (+) Land Non-Homesite Value: | + | N/A | Ag / Timber Use Value |
| (+) Curr Use (HS): | + | N/A | N/A |
| (+) Curr Use (NHS): | + | N/A | N/A |
| | | -------------------------- | |
| (=) Market Value: | = | N/A | |
| (–) Productivity Loss: | – | N/A | |
| | | -------------------------- | |
| (=) Subtotal: | = | N/A | |
| (+) Senior Appraised Value: | + | N/A | |
| (+) Non-Senior Appraised Value: | + | N/A | |
| | | -------------------------- | |
| (=) Total Appraised Value: | = | N/A | |
| (–) Senior Exemption Loss: | – | N/A | |
| (–) Exemption Loss: | – | N/A | |
| | | -------------------------- | |
| (=) Taxable Value: | = | N/A | |
Taxing Jurisdiction
| Owner: | BIEBESHEIMER DAVID & BRENDA | | |
| % Ownership: | 100.0000000000% | | |
| Total Value: | N/A | | |
| Tax Area: | 74 - 246 F1 CD3 WVFD |
| 110001 | County Road General | N/A | N/A | N/A | N/A | | |
| 010170 | Chelan County | N/A | N/A | N/A | N/A | | |
| 155001 | Veteran's Relief | N/A | N/A | N/A | N/A | | |
| 160001 | Mental Health | N/A | N/A | N/A | N/A | | |
| 657301 | Cemetery No 3 | N/A | N/A | N/A | N/A | | |
| 656101 | Fire No 1 General | N/A | N/A | N/A | N/A | | |
| 652003 | State School 2 | N/A | N/A | N/A | N/A | | |
| 652005 | State School | N/A | N/A | N/A | N/A | | |
| 652025 | State School 2 Refund | N/A | N/A | N/A | N/A | | |
| 107001 | Flood Control Zone | N/A | N/A | N/A | N/A | | |
| 656201 | Wenatchee Valley Fire Department | N/A | N/A | N/A | N/A | | |
| 656110 | Fire No 1 Bond | N/A | N/A | N/A | N/A | | |
| 644001 | Regional Library | N/A | N/A | N/A | N/A | | |
| 671101 | Port General | N/A | N/A | N/A | N/A | | |
| 654201 | Wenatchee SD 246 General | N/A | N/A | N/A | N/A | | |
| 654210 | Wenatchee SD 246 Bond | N/A | N/A | N/A | N/A | | |
| 652001 | State School Refund | N/A | N/A | N/A | N/A | | |
| | Total Tax Rate: | N/A | | | | | |
| | | | | Taxes w/Current Exemptions: | N/A | | |
| | | | | Taxes w/o Exemptions: | N/A | | |
Improvement / Building
| Improvement #1: | RESIDENTIAL | State Code: | 11 | 1964.0 sqft | Value: | N/A |
| Exterior Wall: | Plywood or Hrdbrd | Fireplace: | Single 1 Story | | Heating/Cooling: | Heat Pump | Number of Bathrooms: | 3 | | Number of Bedrooms: | 3 |   |   |
|
| | Type | Description | Class CD | Sub Class CD | Year Built | Area |
| | MA | Main | AVERAGE | 1 STY | 2020 | 1964.0 |
| | GAR-ATT | Attached Garage | AVERAGE | 1 STY | 2020 | 852.0 |
| | PP-OPEN | Open Concrete Porch | AVERAGE | * | 2020 | 308.0 |
| | PP-OPEN | Open Concrete Porch | AVERAGE | * | 2020 | 425.0 |
Sketch
Property Image
Land
| 1 | SV 100K | SITE VALUE $100,000 | 0.3600 | 15681.60 | 0.00 | 0.00 | 1.00 | N/A | N/A |
Roll Value History
| 2026 | N/A | N/A | N/A | N/A | N/A |
| 2025 | $471,794 | $149,100 | $0 | $620,894 | $620,894 |
| 2024 | $492,565 | $145,860 | $0 | $638,425 | $638,425 |
| 2023 | $502,378 | $149,160 | $0 | $651,538 | $651,538 |
| 2022 | $555,770 | $134,640 | $0 | $690,410 | $690,410 |
| 2021 | $390,820 | $113,520 | $0 | $504,340 | $504,340 |
| 2020 | $383,842 | $113,970 | $0 | $497,812 | $497,812 |
| 2019 | $0 | $113,970 | $0 | $113,970 | $113,970 |
| 2018 | $0 | $129,950 | $0 | $129,950 | $129,950 |
Deed and Sales History
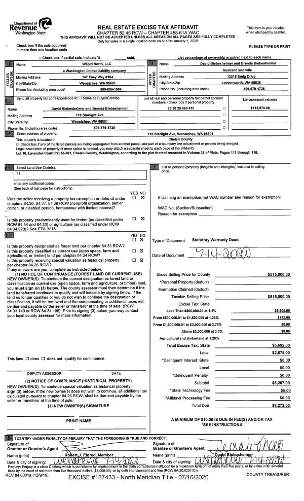
| 1 | 07/16/2020 | SWD | Statutory Warranty Deed | WAPITI NORTH LLC | BIEBESHEIMER DAVID & BRENDA | | | $515,000.00 | 187433 | 2519971 |
| 2 | 11/16/2018 | SWD | Statutory Warranty Deed | D & T CAMPBELL INVESTMENTS LLC | WAPITI NORTH LLC | | | $1,265,000.00 | 181141 | 2488053 |
|   | |
| 3 | 07/27/2016 | SWD | Statutory Warranty Deed | HARRIS R C | D & T CAMPBELL INVESTMENTS LLC | | | $406,000.00 | 0 | 2441047 |
| 4 | 10/14/1986 | WFD | Warranty Fulfillment Deed | | HARRIS R C | 866 | 27 | | 0 | |
Payout Agreement
| No payout information available.. |