Property
Account |
Property ID: | 67412 | Abbreviated Legal Description: | T 22N R 20EWM S 28 LOT 3 SP 2017-173 LOT 4 SP 2007-105 LOT 4 SP 1997-62 38.8200 ACRES |
Geographic ID: | 222028200002 | Agent Code: | |
Type: | Real | | |
Tax Area: | 66 - 246 F1 WVFD | Land Use Code | 11 |
Open Space: | N | DFL | N |
Historic Property: | N | Remodel Property: | N |
Multi-Family Redevelopment: | N | | |
Township: | 22N | Section: | 28 |
Range: | 20EWM | Legal Acres: | 9.7600 |
Location |
Address: | 1453 PITCHER CANYON RD WENATCHEE, WA 98801 | Mapsco: | |
Neighborhood: | Cycle 1 Squilchuck_upper Mission Creek Div 1 Res | Map ID: | 1SQKM01R01 |
Neighborhood CD: | 1SQKM01R01 |
Owner |
Name: | SCHILLING JASON W | Owner ID: | 109773 |
Mailing Address: | 1453 PITCHER CANYON RD WENATCHEE, WA 98801 | % Ownership: | % |
| | Exemptions: | |
Pay Tax Due
Select the appropriate checkbox next to the year to be paid. Multiple years may be selected.
*Convenience Fee not included
Taxes and Assessment Details
Values
(+) Improvement Homesite Value: | + | $0 | |
(+) Improvement Non-Homesite Value: | + | $0 | |
(+) Land Homesite Value: | + | $0 | |
(+) Land Non-Homesite Value: | + | $162,704 | |
(+) Curr Use (HS): | + | $0 | $0 |
(+) Curr Use (NHS): | + | $0 | $0 |
| | -------------------------- | |
(=) Market Value: | = | $162,704 | |
(–) Productivity Loss: | – | $0 | |
| | -------------------------- | |
(=) Subtotal: | = | $162,704 | |
(+) Senior Appraised Value: | + | $0 | |
(+) Non-Senior Appraised Value: | + | $162,704 | |
| | -------------------------- | |
(=) Total Appraised Value: | = | $162,704 | |
(–) Senior Exemption Loss: | – | $0 | |
(–) Exemption Loss: | – | $0 | |
| | -------------------------- | |
(=) Taxable Value: | = | $162,704 | |
Taxing Jurisdiction
Owner: | SCHILLING JASON W | | |
% Ownership: | 100.0000000000% | | |
Total Value: | $162,704 | | |
Tax Area: | 66 - 246 F1 WVFD |
110001 | County Road General | 0.7994434437 | $162,704 | $162,704 | $130.07 | | |
010170 | Chelan County | 0.7334053198 | $162,704 | $162,704 | $119.33 | | |
155001 | Veteran's Relief | 0.0086008201 | $162,704 | $162,704 | $1.40 | | |
160001 | Mental Health | 0.0189723974 | $162,704 | $162,704 | $3.09 | | |
656101 | Fire No 1 General | 0.0000000000 | $162,704 | $162,704 | $0.00 | | |
656110 | Fire No 1 Bond | 0.0000000000 | $162,704 | $162,704 | $0.00 | | |
652005 | State School | 1.6674243773 | $162,704 | $162,704 | $271.30 | | |
652025 | State School 2 Refund | 0.0000148770 | $162,704 | $162,704 | $0.00 | | |
107001 | Flood Control Zone | 0.0408306198 | $162,704 | $162,704 | $6.64 | | |
656201 | Wenatchee Valley Fire Department | 1.5000000000 | $162,704 | $162,704 | $244.06 | | |
644001 | Regional Library | 0.2864488554 | $162,704 | $162,704 | $46.61 | | |
671101 | Port General | 0.1756188309 | $162,704 | $162,704 | $28.57 | | |
654201 | Wenatchee SD 246 General | 1.7001724839 | $162,704 | $162,704 | $276.62 | | |
654210 | Wenatchee SD 246 Bond | 0.8546844869 | $162,704 | $162,704 | $139.06 | | |
652001 | State School Refund | 0.0000273969 | $162,704 | $162,704 | $0.00 | | |
652003 | State School 2 | 0.8917891157 | $162,704 | $162,704 | $145.10 | | |
| Total Tax Rate: | 8.6774330248 | | | | | |
| | | | Taxes w/Current Exemptions: | $1,411.85 | | |
| | | | Taxes w/o Exemptions: | $1,411.85 | | |
Improvement / Building
Sketch
No sketches available for this property. |
Property Image
Land
1 | SV 75K | SITE VALUE $75,000 | 1.0000 | 43560.00 | 0.00 | 0.00 | 1.00 | $145,688 | $0 |
2 | RES 1000 | RESIDUAL $1000/A | 8.7600 | 381585.60 | 0.00 | 0.00 | 1.00 | $17,016 | $0 |
Roll Value History
2025 | N/A | N/A | N/A | N/A | N/A |
2024 | $566,669 | $215,473 | $0 | $782,142 | $782,142 |
2023 | $408,952 | $219,870 | $0 | $628,822 | $628,822 |
2022 | $0 | $162,704 | $0 | $162,704 | $162,704 |
2021 | $0 | $154,337 | $0 | $154,337 | $154,337 |
2020 | $0 | $94,531 | $0 | $94,531 | $94,531 |
2019 | $0 | $94,531 | $0 | $94,531 | $94,531 |
2018 | $0 | $85,937 | $0 | $85,937 | $85,937 |
Deed and Sales History
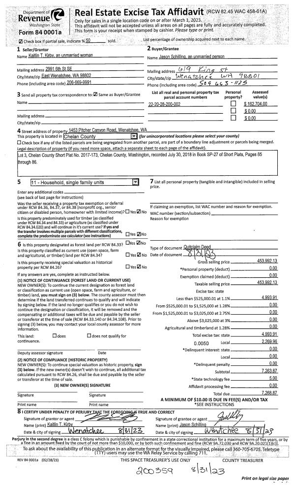
1 | 08/31/2023 | Q | Quit Claim Deed | KIRBY KAITLIN T & SCHILLING JASON | SCHILLING JASON W | | | $453,992.00 | 200359 | 2585713 |
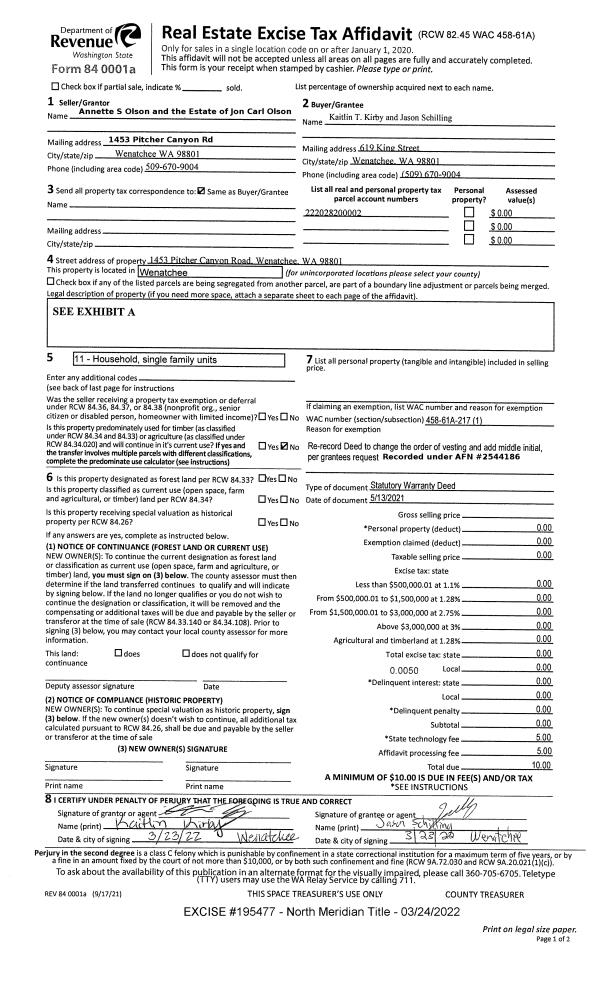
2 | 03/24/2022 | CORR DEED | Correction Deed | SCHILLING JASON & KIRBY KAITLIN | KIRBY KAITLIN T & SCHILLING JASON | | | $0.00 | 195477 | 2564472 |
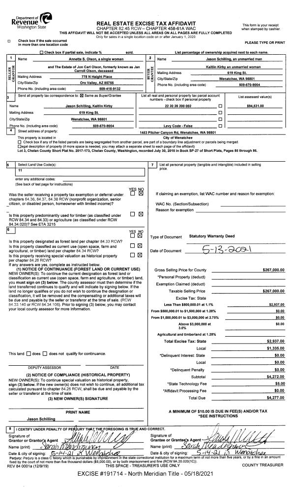
3 | 05/18/2021 | SWD | Statutory Warranty Deed | OLSON JAN & ANNETTE S | SCHILLING JASON & KIRBY KAITLIN | | | $267,000.00 | 191714 | 2544186 |
4 | 12/14/2020 | J | Judgement | | | | | | 0 | 2531938 |
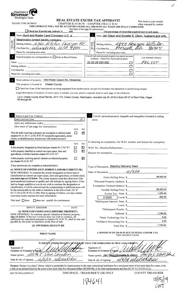
5 | 10/15/2019 | SWD | Statutory Warranty Deed | HURD AND ROETER LAND COMPANY LLC | OLSON JAN & ANNETTE S | | | $98,000.00 | 184641 | 2504339 |
6 | 09/06/2005 | O | Other | | ANN S HYDE ETAL | | | | 0 | 2172881 |
7 | 01/07/2005 | Q | Quit Claim Deed | HYDE ANN ETAL | PITCHER CANYON | | | | 0 | 2190971 |
8 | 01/07/2005 | Q | Quit Claim Deed | | PITCHER CANYON LAND CO LLC | | | | 0 | 2190971 |
9 | 01/07/2005 | Q | Quit Claim Deed | HYDE ANN ETAL | PITCHER CANYON | | | | 0 | 2190970 |
10 | 05/13/2004 | Q | Quit Claim Deed | HYDE ANN | HYDE ANN ETAL | | | | 0 | 2173399 |
11 | 05/06/2004 | Q | Quit Claim Deed | HYDE ANN | HYDE ANN ETAL | | | | 0 | 2172882 |
12 | 04/24/2003 | O | Other | SEARS THOMAS | SEARS LYLE | | | | 0 | 2141896 |
13 | 03/28/2003 | PR | Personal Representatives Deed | HYDE ANN | SEARS LYLE | | | | 0 | 2139550 |
14 | 06/08/2001 | Q | Quit Claim Deed | TOM SEARS | SQUILCHUCK MILL | | | | 0 | 2094722 |
15 | 02/24/1999 | O | Other | SP 1997-062 | | | | | 0 | 2047674 |
16 | 12/04/1991 | Q | Quit Claim Deed | | LYLE SEARS | 959 | 1098 | | 0 | |
17 | 01/15/1948 | W | Warranty Deed | | IVAN J COMPTON ESTATE | 434 | 141 | | 0 | |
Payout Agreement
No payout information available.. |