Property
Account |
| Property ID: | 66591 | Abbreviated Legal Description: | ACTON ADDITION TO LEAVENWORTH LOT 6 0.1400 ACRES |
| Geographic ID: | 241702671060 | Agent Code: | |
| Type: | Real | | |
| Tax Area: | 606 - LV 228 H1 PK2 MD2 F3 | Land Use Code | 11 |
| Open Space: | N | DFL | N |
| Historic Property: | N | Remodel Property: | N |
| Multi-Family Redevelopment: | N | | |
| Township: | 24N | Section: | 02 |
| Range: | 17EWM | Legal Acres: | 0.1400 |
Location |
| Address: | 217 NORDIC CIR LEAVENWORTH, WA 98826 | Mapsco: | |
| Neighborhood: | Cycle 3 Leavenworth city div 2 RES | Map ID: | 3LVWC02R01 |
| Neighborhood CD: | 3LVWC02R01 |
Owner |
| Name: | JENNESKENS TED & GINA | Owner ID: | 63366 |
| Mailing Address: | 12320 W EMIG DR LEAVENWORTH, WA 98826 | % Ownership: | % |
| | | Exemptions: | |
Pay Tax Due
Select the appropriate checkbox next to the year to be paid. Multiple years may be selected.
*Convenience Fee not included
Taxes and Assessment Details
Values
| (+) Improvement Homesite Value: | + | N/A | |
| (+) Improvement Non-Homesite Value: | + | N/A | |
| (+) Land Homesite Value: | + | N/A | |
| (+) Land Non-Homesite Value: | + | N/A | Ag / Timber Use Value |
| (+) Curr Use (HS): | + | N/A | N/A |
| (+) Curr Use (NHS): | + | N/A | N/A |
| | | -------------------------- | |
| (=) Market Value: | = | N/A | |
| (–) Productivity Loss: | – | N/A | |
| | | -------------------------- | |
| (=) Subtotal: | = | N/A | |
| (+) Senior Appraised Value: | + | N/A | |
| (+) Non-Senior Appraised Value: | + | N/A | |
| | | -------------------------- | |
| (=) Total Appraised Value: | = | N/A | |
| (–) Senior Exemption Loss: | – | N/A | |
| (–) Exemption Loss: | – | N/A | |
| | | -------------------------- | |
| (=) Taxable Value: | = | N/A | |
Taxing Jurisdiction
| Owner: | JENNESKENS TED & GINA | | |
| % Ownership: | 100.0000000000% | | |
| Total Value: | N/A | | |
| Tax Area: | 606 - LV 228 H1 PK2 MD2 F3 |
| 010170 | Chelan County | N/A | N/A | N/A | N/A | | |
| 155001 | Veteran's Relief | N/A | N/A | N/A | N/A | | |
| 160001 | Mental Health | N/A | N/A | N/A | N/A | | |
| 656301 | Fire No 3 General | N/A | N/A | N/A | N/A | | |
| 692101 | Hospital No 1 General | N/A | N/A | N/A | N/A | | |
| 692110 | Hospital No 1 Bond | N/A | N/A | N/A | N/A | | |
| 107001 | Flood Control Zone | N/A | N/A | N/A | N/A | | |
| 654175 | Cascade SD 228 Cap Projects | N/A | N/A | N/A | N/A | | |
| 652001 | State School Refund | N/A | N/A | N/A | N/A | | |
| 652003 | State School 2 | N/A | N/A | N/A | N/A | | |
| 652005 | State School | N/A | N/A | N/A | N/A | | |
| 652025 | State School 2 Refund | N/A | N/A | N/A | N/A | | |
| 677001 | Upper Valley Park & Rec General | N/A | N/A | N/A | N/A | | |
| 693030 | Leavenworth Bond | N/A | N/A | N/A | N/A | | |
| 693031 | Leavenworth General | N/A | N/A | N/A | N/A | | |
| 644001 | Regional Library | N/A | N/A | N/A | N/A | | |
| 671101 | Port General | N/A | N/A | N/A | N/A | | |
| 654161 | Cascade SD 228 General | N/A | N/A | N/A | N/A | | |
| 654170 | Cascade SD 228 Bond | N/A | N/A | N/A | N/A | | |
| | Total Tax Rate: | N/A | | | | | |
| | | | | Taxes w/Current Exemptions: | N/A | | |
| | | | | Taxes w/o Exemptions: | N/A | | |
Improvement / Building
Sketch
| No sketches available for this property. |
Property Image
Land
| 1 | SV 100K | SITE VALUE $100,000 | 0.1400 | 6098.40 | 0.00 | 0.00 | 1.00 | N/A | N/A |
Roll Value History
| 2026 | N/A | N/A | N/A | N/A | N/A |
| 2025 | $0 | $282,000 | $0 | $282,000 | $282,000 |
| 2024 | $0 | $282,000 | $0 | $282,000 | $282,000 |
| 2023 | $0 | $314,000 | $0 | $314,000 | $314,000 |
| 2022 | $0 | $214,320 | $0 | $214,320 | $214,320 |
| 2021 | $0 | $150,000 | $0 | $150,000 | $150,000 |
| 2020 | $0 | $138,430 | $0 | $138,430 | $138,430 |
| 2019 | $0 | $142,790 | $0 | $142,790 | $142,790 |
| 2018 | $0 | $116,630 | $0 | $116,630 | $116,630 |
| 2017 | $0 | $100,000 | $0 | $100,000 | $100,000 |
Deed and Sales History
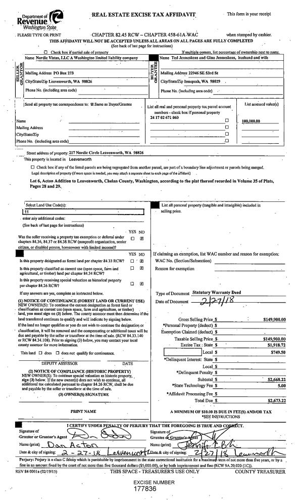
| 1 | 02/28/2018 | SWD | Statutory Warranty Deed | NORDIC VISTAS LLC | JENNESKENS TED & GINA | | | $149,900.00 | 177836 | 2473708 |
| 2 | 03/20/2015 | Q | Quit Claim Deed | | NORDIC VISTAS LLC | | | $0.00 | 165185 | 2415119 |
| 3 | 08/01/2003 | W | Warranty Deed | | ACTON DAN & LORNA | | | | 0 | 2150873 |
| 4 | 02/19/2009 | CORR DEED | Correction Deed | | ACTON DAN & LORNA | | | | 145100 | 2297665 |
| 5 | 08/01/2003 | CORR DEED | Correction Deed | BUCHANAN FRANCI | RUSHTON LARRY | | | | 0 | 2150861* |
| 6 | 11/04/2003 | W | Warranty Deed | | ACTON DAN & LORNA | | | | 0 | 2121105 |
| 7 | | W | Warranty Deed | | FRANCIS E BUCHANAN | 534 | 550 | | 0 | |
| 8 | 05/11/2005 | O | Other | SURVEY | | 456 | 118 | | 0 | |
| 9 | 08/01/2003 | W | Warranty Deed | | | | | $95,000.00 | 11921500 | 2150873 |
|   | |
| 10 | 08/01/2003 | W | Warranty Deed | | | | | | 11920400 | 2150861 |
| 11 | 07/19/2002 | SWD | Statutory Warranty Deed | | RUSHTON LARRY&MARYANNE | | | $50,000.00 | 11459400 | 2121105 |
|   | |
Payout Agreement
| No payout information available.. |