Property
Account |
Property ID: | 66589 | Abbreviated Legal Description: | ACTON ADDITION TO LEAVENWORTH LOT 4 0.1400 ACRES |
Geographic ID: | 241702671040 | Agent Code: | |
Type: | Real | | |
Tax Area: | 606 - LV 228 H1 PK2 MD2 F3 | Land Use Code | 11 |
Open Space: | N | DFL | N |
Historic Property: | N | Remodel Property: | N |
Multi-Family Redevelopment: | N | | |
Township: | 24N | Section: | 02 |
Range: | 17EWM | Legal Acres: | 0.1400 |
Location |
Address: | 213 NORDIC CIR LEAVENWORTH, WA 98826 | Mapsco: | |
Neighborhood: | Cycle 3 Leavenworth city div 2 RES | Map ID: | 3LVWC02R01 |
Neighborhood CD: | 3LVWC02R01 |
Owner |
Name: | NESSELQUIST KRYSTN S | Owner ID: | 111316 |
Mailing Address: | C/O PR ESTATE OF KIM NESSELQUIST 213 NORDIC CIR LEAVENWORTH, WA 98826 | % Ownership: | % |
| | Exemptions: | |
Pay Tax Due
Select the appropriate checkbox next to the year to be paid. Multiple years may be selected.
*Convenience Fee not included
Taxes and Assessment Details
Values
(+) Improvement Homesite Value: | + | $0 | |
(+) Improvement Non-Homesite Value: | + | $440,347 | |
(+) Land Homesite Value: | + | $0 | |
(+) Land Non-Homesite Value: | + | $282,000 | |
(+) Curr Use (HS): | + | $0 | $0 |
(+) Curr Use (NHS): | + | $0 | $0 |
| | -------------------------- | |
(=) Market Value: | = | $722,347 | |
(–) Productivity Loss: | – | $0 | |
| | -------------------------- | |
(=) Subtotal: | = | $722,347 | |
(+) Senior Appraised Value: | + | $0 | |
(+) Non-Senior Appraised Value: | + | $722,347 | |
| | -------------------------- | |
(=) Total Appraised Value: | = | $722,347 | |
(–) Senior Exemption Loss: | – | $0 | |
(–) Exemption Loss: | – | $0 | |
| | -------------------------- | |
(=) Taxable Value: | = | $722,347 | |
Taxing Jurisdiction
Owner: | NESSELQUIST KRYSTN S | | |
% Ownership: | 100.0000000000% | | |
Total Value: | N/A | | |
Tax Area: | 606 - LV 228 H1 PK2 MD2 F3 |
010170 | Chelan County | N/A | N/A | N/A | N/A | | |
155001 | Veteran's Relief | N/A | N/A | N/A | N/A | | |
160001 | Mental Health | N/A | N/A | N/A | N/A | | |
656301 | Fire No 3 General | N/A | N/A | N/A | N/A | | |
692101 | Hospital No 1 General | N/A | N/A | N/A | N/A | | |
692110 | Hospital No 1 Bond | N/A | N/A | N/A | N/A | | |
677001 | Upper Valley Park & Rec General | N/A | N/A | N/A | N/A | | |
107001 | Flood Control Zone | N/A | N/A | N/A | N/A | | |
654170 | Cascade SD 228 Bond | N/A | N/A | N/A | N/A | | |
654175 | Cascade SD 228 Cap Projects | N/A | N/A | N/A | N/A | | |
652001 | State School Refund | N/A | N/A | N/A | N/A | | |
652003 | State School 2 | N/A | N/A | N/A | N/A | | |
652005 | State School | N/A | N/A | N/A | N/A | | |
652025 | State School 2 Refund | N/A | N/A | N/A | N/A | | |
692150 | Hospital No 1 EMS | N/A | N/A | N/A | N/A | | |
693030 | Leavenworth Bond | N/A | N/A | N/A | N/A | | |
693031 | Leavenworth General | N/A | N/A | N/A | N/A | | |
644001 | Regional Library | N/A | N/A | N/A | N/A | | |
671101 | Port General | N/A | N/A | N/A | N/A | | |
654161 | Cascade SD 228 General | N/A | N/A | N/A | N/A | | |
| Total Tax Rate: | N/A | | | | | |
| | | | Taxes w/Current Exemptions: | N/A | | |
| | | | Taxes w/o Exemptions: | N/A | | |
Improvement / Building
Improvement #1: | RESIDENTIAL | State Code: | 11 | 2102.0 sqft | Value: | $440,347 |
Exterior Wall: | Plywood or Hrdbrd | Fireplace: | Single 1 Story | Heating/Cooling: | Heat Pump | Number of Bathrooms: | 2.5 | Number of Bedrooms: | 3 |   |   |
|
| Type | Description | Class CD | Sub Class CD | Year Built | Area |
| MA | Main | AVERAGE | 1.5 ST FIN | 2022 | 2102.0 |
| GAR-BI | Built-In Garage | AVERAGE | 1.5 ST FIN | 2022 | 480.0 |
Sketch
Property Image
Land
1 | SV 100K | SITE VALUE $100,000 | 0.1400 | 6098.40 | 0.00 | 0.00 | 1.00 | $282,000 | $0 |
Roll Value History
2025 | N/A | N/A | N/A | N/A | N/A |
2024 | $517,301 | $282,000 | $0 | $799,301 | $799,301 |
2023 | $442,224 | $314,000 | $0 | $756,224 | $756,224 |
2022 | $453,277 | $214,320 | $0 | $667,597 | $667,597 |
2021 | $0 | $150,000 | $0 | $150,000 | $150,000 |
2020 | $0 | $138,430 | $0 | $138,430 | $138,430 |
2019 | $0 | $142,790 | $0 | $142,790 | $142,790 |
2018 | $0 | $116,630 | $0 | $116,630 | $116,630 |
2017 | $0 | $100,000 | $0 | $100,000 | $100,000 |
Deed and Sales History
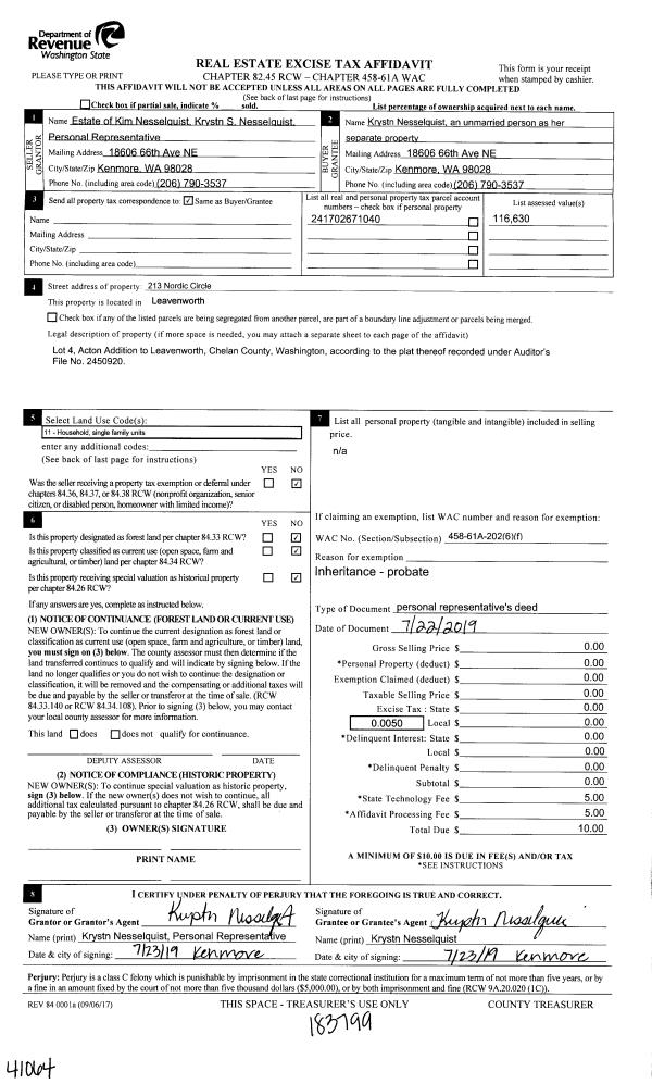
1 | 08/02/2019 | PR | Personal Representatives Deed | NESSELQUIST KRYSTN & KIM | NESSELQUIST KRYSTN S | | | $0.00 | 183799 | 2500150 |
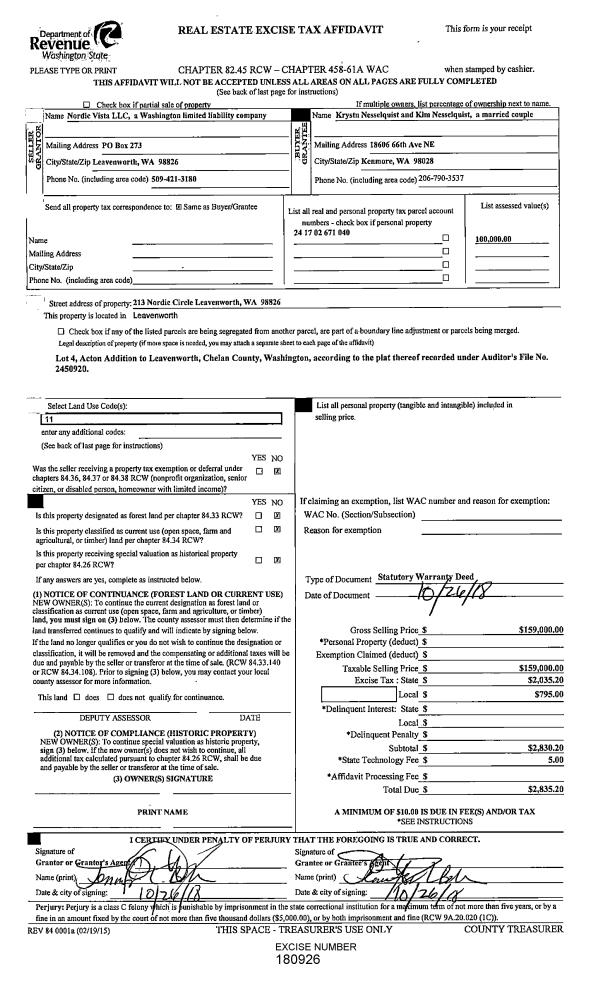
2 | 10/26/2018 | SWD | Statutory Warranty Deed | NORDIC VISTAS LLC | NESSELQUIST KRYSTN & KIM | | | $159,000.00 | 180926 | 2487082 |
3 | 03/20/2015 | Q | Quit Claim Deed | | NORDIC VISTAS LLC | | | $0.00 | 165185 | 2415119 |
4 | 08/01/2003 | W | Warranty Deed | | ACTON DAN & LORNA | | | | 0 | 2150873 |
5 | 02/19/2009 | CORR DEED | Correction Deed | | ACTON DAN & LORNA | | | | 145100 | 2297665 |
6 | 08/01/2003 | CORR DEED | Correction Deed | BUCHANAN FRANCI | RUSHTON LARRY | | | | 0 | 2150861* |
7 | 11/04/2003 | W | Warranty Deed | | ACTON DAN & LORNA | | | | 0 | 2121105 |
8 | | W | Warranty Deed | | FRANCIS E BUCHANAN | 534 | 550 | | 0 | |
9 | 05/11/2005 | O | Other | SURVEY | | 456 | 118 | | 0 | |
10 | 08/01/2003 | W | Warranty Deed | | | | | $95,000.00 | 11921500 | 2150873 |
  | |
11 | 08/01/2003 | W | Warranty Deed | | | | | | 11920400 | 2150861 |
12 | 07/19/2002 | SWD | Statutory Warranty Deed | | RUSHTON LARRY&MARYANNE | | | $50,000.00 | 11459400 | 2121105 |
  | |
Payout Agreement
No payout information available.. |