Property
Account |
Property ID: | 66378 | Abbreviated Legal Description: | CHELAN BUTTE ORCHARDS BLOCK 7 LOT 2 LOT B BLA 2019-009 PT S OF RR 1.0400 ACRES |
Geographic ID: | 262210515175 | Agent Code: | |
Type: | Real | | |
Tax Area: | 38 - 129 F8 CD4 H2 | Land Use Code | 18 |
Open Space: | N | DFL | N |
Historic Property: | N | Remodel Property: | N |
Multi-Family Redevelopment: | N | | |
Township: | 26N | Section: | 10 |
Range: | 22EWM | Legal Acres: | 1.0400 |
Location |
Address: | 3711 STAYMAN FLATS RD CHELAN, WA 98816 | Mapsco: | |
Neighborhood: | Cycle 4 riverfront div 1 RES | Map ID: | 4RIVR01R01 |
Neighborhood CD: | 4RIVR01R01 |
Owner |
Name: | LOHOLT MICHAEL & RAMANI ARATHI | Owner ID: | 116145 |
Mailing Address: | 9725 SE 43RD ST MERCER ISLAND, WA 98040 | % Ownership: | % |
| | Exemptions: | |
Pay Tax Due
Select the appropriate checkbox next to the year to be paid. Multiple years may be selected.
*Convenience Fee not included
Taxes and Assessment Details
Values
(+) Improvement Homesite Value: | + | $0 | |
(+) Improvement Non-Homesite Value: | + | $611,891 | |
(+) Land Homesite Value: | + | $0 | |
(+) Land Non-Homesite Value: | + | $350,560 | |
(+) Curr Use (HS): | + | $0 | $0 |
(+) Curr Use (NHS): | + | $0 | $0 |
| | -------------------------- | |
(=) Market Value: | = | $962,451 | |
(–) Productivity Loss: | – | $0 | |
| | -------------------------- | |
(=) Subtotal: | = | $962,451 | |
(+) Senior Appraised Value: | + | $0 | |
(+) Non-Senior Appraised Value: | + | $962,451 | |
| | -------------------------- | |
(=) Total Appraised Value: | = | $962,451 | |
(–) Senior Exemption Loss: | – | $0 | |
(–) Exemption Loss: | – | $0 | |
| | -------------------------- | |
(=) Taxable Value: | = | $962,451 | |
Taxing Jurisdiction
Owner: | LOHOLT MICHAEL & RAMANI ARATHI | | |
% Ownership: | 100.0000000000% | | |
Total Value: | N/A | | |
Tax Area: | 38 - 129 F8 CD4 H2 |
110001 | County Road General | N/A | N/A | N/A | N/A | | |
010170 | Chelan County | N/A | N/A | N/A | N/A | | |
155001 | Veteran's Relief | N/A | N/A | N/A | N/A | | |
160001 | Mental Health | N/A | N/A | N/A | N/A | | |
657401 | Cemetery No 4 | N/A | N/A | N/A | N/A | | |
656801 | Fire No 8 General | N/A | N/A | N/A | N/A | | |
107001 | Flood Control Zone | N/A | N/A | N/A | N/A | | |
654100 | Lake Chelan SD 129 General | N/A | N/A | N/A | N/A | | |
654115 | Lake Chelan SD 129 Capital Projects | N/A | N/A | N/A | N/A | | |
652001 | State School Refund | N/A | N/A | N/A | N/A | | |
652003 | State School 2 | N/A | N/A | N/A | N/A | | |
652005 | State School | N/A | N/A | N/A | N/A | | |
652025 | State School 2 Refund | N/A | N/A | N/A | N/A | | |
656810 | Fire No 8 Bond | N/A | N/A | N/A | N/A | | |
692201 | Hospital No 2 General | N/A | N/A | N/A | N/A | | |
692210 | Hospital No 2 Bond | N/A | N/A | N/A | N/A | | |
692260 | Hospital No 2 EMS | N/A | N/A | N/A | N/A | | |
644001 | Regional Library | N/A | N/A | N/A | N/A | | |
671101 | Port General | N/A | N/A | N/A | N/A | | |
| Total Tax Rate: | N/A | | | | | |
| | | | Taxes w/Current Exemptions: | N/A | | |
| | | | Taxes w/o Exemptions: | N/A | | |
Improvement / Building
Improvement #1: | RESIDENTIAL | State Code: | 11 | 1680.0 sqft | Value: | $611,891 |
Exterior Wall: | Plywood or Hrdbrd | Heating/Cooling: | Baseboard Panel | Number of Bathrooms: | 1.5 | Number of Bedrooms: | 1 |
|
| Type | Description | Class CD | Sub Class CD | Year Built | Area |
| CP-S | Carport/Patio Cover Shed Roof | AVERAGE | 1 STY | 2014 | 288.0 |
| MA | Main | FAIR | 1 STY | 2014 | 1680.0 |
Sketch
Property Image
Land
1 | SV 250K | SITE VALUE $250,000 | 1.0000 | 43560.00 | 0.00 | 0.00 | 1.00 | $350,000 | $0 |
2 | RES 10K | RESIDUAL $10,000/A | 0.0400 | 1742.40 | 0.00 | 0.00 | 1.00 | $560 | $0 |
Roll Value History
2025 | N/A | N/A | N/A | N/A | N/A |
2024 | $506,287 | $350,560 | $0 | $856,847 | $856,847 |
2023 | $256,306 | $350,560 | $0 | $606,866 | $606,866 |
2022 | $217,655 | $350,560 | $0 | $568,215 | $568,215 |
2021 | $148,856 | $297,976 | $0 | $446,832 | $446,832 |
2020 | $154,262 | $117,688 | $0 | $271,950 | $271,950 |
2019 | $51,257 | $127,704 | $0 | $178,961 | $178,961 |
2018 | $51,295 | $129,234 | $0 | $180,529 | $180,529 |
Deed and Sales History
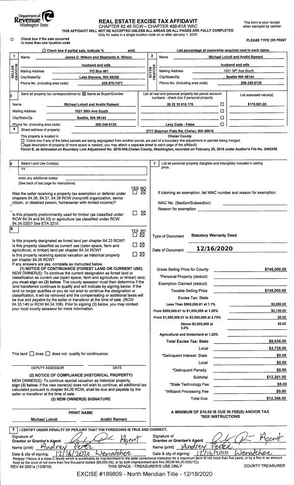
1 | 12/18/2020 | SWD | Statutory Warranty Deed | WILSON JAMES D & STEPHANIE A | LOHOLT MICHAEL & RAMANI ARATHI | | | $745,000.00 | 189809 | 2532365 |
2 | 04/09/2019 | SWD | Statutory Warranty Deed | SIEGEL BRYCE & SHIRLEY | WILSON JAMES D & STEPHANIE A | | | $435,000.00 | 182500 | 2494256 |
3 | 02/01/2007 | Q | Quit Claim Deed | | SIEGEL BRYCE & SHIRLEY | | | | 0 | 2247878 |
4 | 08/28/2003 | W | Warranty Deed | | ED SCHAPLOW ETAL | | | | 0 | 2153572 |
5 | 12/31/2002 | F | Foreclosure Deed | | CHIEF WENATCHEE | | | | 0 | 2132574 |
6 | 08/25/2003 | REF | Conversion Code Only | SURVEY | | 44 | 61 | | 0 | |
7 | 02/01/2007 | Q | Quit Claim Deed | | | | | | 13722900 | 2247878 |
8 | 08/29/2003 | W | Warranty Deed | | | | | $220,000.00 | 11956802 | 2153572 |
  | |
Payout Agreement
No payout information available.. |