| 1 | 03/29/2024 | SWD | Statutory Warranty Deed | WARTENBERGH PAUL F & MARIA I TRUSTEES | FIROR JERRY H & J PAULETTE | | | $677,500.00 | 202035 | 2592629 |
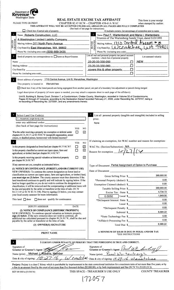
| 2 | 10/27/2016 | PART ASSIG | Partial Assignment Of Option To Purchase | ROBERTS CONSTRUCTION LLC | WARTENBERGH PAUL F & MARIA I TRUSTEES | | | $399,900.00 | 172057 | 2446699 |
| 3 | 10/27/2016 | SWD | Statutory Warranty Deed | STONEY COURT CONDO HOMEOWNERS ASSOCIATION | WARTENBERGH PAUL F & MARIA I TRUSTEES | | | $30,000.00 | 0 | 2446698 |
| 4 | 03/25/2016 | PART ASSIG | Partial Assignment Of Option To Purchase | | BECKER LYLA F | | | $399,900.00 | 169406 | *2434326 |
|   | |
| 5 | 02/13/2014 | Q | Quit Claim Deed | | STONEY COURT CONDO HOMEOWNERS ASSOCIATION | | | $0.00 | 161636 | 2397906 |
| 6 | 03/25/2016 | SWD | Statutory Warranty Deed | | BECKER LYLA F | | | $30,000.00 | 169405 | *2434325 |
|   | |
| 7 | 06/29/2005 | SWD | Statutory Warranty Deed | | TAL-HA ENTERPRISES LLC | | | | 0 | 2203066 |
| 8 | 06/29/2005 | SWD | Statutory Warranty Deed | | | | | $525,000.00 | 12871900 | 2203066 |
|   | |
| 9 | 02/28/2008 | SWD | Statutory Warranty Deed | | | | | $329,900.00 | 14185200 | 2276162 |
|   | |
| 10 | 02/22/2008 | WD | Warranty Deed | | | | | $329,900.00 | 141851 | 2276161 |
|   | |
| 11 | 02/20/2008 | O | Other | STONEY COURT BSP #2077-05 | | | | | 0 | 2275706 |
| 12 | 04/03/1996 | Q | Quit Claim Deed | CHELAN COUNTY | CITY OF WENATCH | 1062 | 1550 | | 0 | |
| 13 | 12/29/1995 | SWD | Statutory Warranty Deed | | PROPERTIES D&D | 1057 | 144 | | 0 | |
| 14 | 12/29/1995 | SWD | Statutory Warranty Deed | | | 1057 | 144 | $334,900.00 | 8846700 | |
|   | |
| 15 | 01/12/1995 | SWD | Statutory Warranty Deed | GASPAR GEORGE B | CHELAN COUNTY | 1036 | 743 | | 0 | |
| 16 | 01/12/1995 | SWD | Statutory Warranty Deed | | | 1036 | 743 | | 8435300 | |
| 17 | 01/10/1995 | SP WD | Special Warranty Deed | | GEORGE B GASPER ETAL | 1036 | 325 | | 0 | |
| 18 | 02/01/1982 | SP WD | Special Warranty Deed | GASPAR CLARENCE | GASPAR RAYMOND | 794 | 206 | | 0 | |
| 19 | 06/09/1975 | Q | Quit Claim Deed | | RAYMOND S GASPAR | 727 | 104 | | 0 | |
| 20 | 06/09/1975 | Q | Quit Claim Deed | | RAYMOND GASPAR ETAL | 727 | 104 | | 0 | |