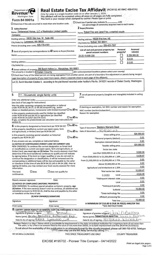
Property
	
		Account | 
	
		| Property ID: | 65646 | Abbreviated Legal Description: | BURCH MOUNTAIN ESTATES II LOT 23 0.5600 ACRES | 
	
		| Geographic ID: | 232016695230 | Agent Code: |  | 
	
		| Type: | Real |   |   | 
	
		| Tax Area: | 74 - 246 F1 CD3 WVFD | Land Use Code | 11 | 
	
		| Open Space: | N | DFL | N | 
	
		| Historic Property: | N | Remodel Property: | N | 
	
		| Multi-Family Redevelopment: | N |   |   | 
	
		| Township: |  | Section: |  | 
	
		| Range: |  | Legal Acres: | 0.5600 | 
	
		Location | 
	
		| Address: | 260 BURCH HOLLOW LN    WENATCHEE, WA 98801 | Mapsco: |  | 
	
		| Neighborhood: | Cycle 2 Sunnyslope upper div 1 RES | Map ID: | 2SSLU01R01 | 
	
		| Neighborhood CD: | 2SSLU01R01 | 
	
		Owner | 
	
		| Name: | FREY ROBERT & JANET | Owner ID: | 121477 | 
	
		| Mailing Address: | 260 BURCH HOLLOW LN   WENATCHEE, WA 98801 | % Ownership: | % | 
	
		|   |   | Exemptions: |  | 
	
 
			
Pay Tax Due
 
There is currently No Amount Due on this property.
    
 
			
Taxes and Assessment Details
 
			
Values
 
	
		| (+) Improvement Homesite Value: | + | $0 |   | 
	
		| (+) Improvement Non-Homesite Value: | + | $591,753 |   | 
	
		| (+) Land Homesite Value: | + | $0 |   | 
	
		| (+) Land Non-Homesite Value: | + | $250,272 |   | 
	
		| (+) Curr Use (HS): | + | $0 | $0 | 
	
		| (+) Curr Use (NHS): | + | $0 | $0 | 
	
		|   |   | -------------------------- |   | 
	
		| (=) Market Value: | = | $842,025 |   | 
	
		| (–) Productivity Loss: | – | $0 |   | 
	
		|   |   | -------------------------- |   | 
	
		| (=) Subtotal: | = | $842,025 |   | 
	
		| (+) Senior Appraised Value: | + | $0 |   | 
	
		| (+) Non-Senior Appraised Value: | + | $842,025 |   | 
	
		|   |   | -------------------------- |   | 
	
		| (=) Total Appraised Value: | = | $842,025 |   | 
	
		| (–) Senior Exemption Loss: | – | $0 |   | 
	
		| (–) Exemption Loss: | – | $0 |   | 
	
		|   |   | -------------------------- |   | 
	
		| (=) Taxable Value: | = | $842,025 |   | 
	
 
			
			
Taxing Jurisdiction
 
	
		| Owner: | FREY ROBERT & JANET |   |   | 
	
		| % Ownership: | 100.0000000000% |   |   | 
	
		| Total Value: | N/A |   |   | 
	
		| Tax Area: | 74 - 246 F1 CD3 WVFD | 
	
	
		| 110001 | County Road General | N/A | N/A | N/A | N/A |   |   | 
	
		| 010170 | Chelan County | N/A | N/A | N/A | N/A |   |   | 
	
		| 155001 | Veteran's Relief | N/A | N/A | N/A | N/A |   |   | 
	
		| 160001 | Mental Health | N/A | N/A | N/A | N/A |   |   | 
	
		| 657301 | Cemetery No 3 | N/A | N/A | N/A | N/A |   |   | 
	
		| 656101 | Fire No 1 General | N/A | N/A | N/A | N/A |   |   | 
	
		| 652003 | State School 2 | N/A | N/A | N/A | N/A |   |   | 
	
		| 652005 | State School | N/A | N/A | N/A | N/A |   |   | 
	
		| 652025 | State School 2 Refund | N/A | N/A | N/A | N/A |   |   | 
	
		| 107001 | Flood Control Zone | N/A | N/A | N/A | N/A |   |   | 
	
		| 656201 | Wenatchee Valley Fire Department | N/A | N/A | N/A | N/A |   |   | 
	
		| 656110 | Fire No 1 Bond | N/A | N/A | N/A | N/A |   |   | 
	
		| 644001 | Regional Library | N/A | N/A | N/A | N/A |   |   | 
	
		| 671101 | Port General | N/A | N/A | N/A | N/A |   |   | 
	
		| 654201 | Wenatchee SD 246 General | N/A | N/A | N/A | N/A |   |   | 
	
		| 654210 | Wenatchee SD 246 Bond | N/A | N/A | N/A | N/A |   |   | 
	
		| 652001 | State School Refund | N/A | N/A | N/A | N/A |   |   | 
	
		|   | Total Tax Rate: | N/A |   |  |  |   |   | 
	
		|   |  |  |   | Taxes w/Current Exemptions: | N/A |   |   | 
	
		|   |  |  |   | Taxes w/o Exemptions: | N/A |   |   | 
	
 
			
Improvement / Building
	
		| Improvement #1: | RESIDENTIAL | State Code: | 11 | 1900.0 sqft | Value: | $591,753 | 
	
		| Exterior Wall: | Plywood or Hrdbrd | Heating/Cooling: | Heat Pump |  | Number of Bathrooms: | 3 | Number of Bedrooms: | 4 |  
  | 
	
	
		|   | Type | Description | Class CD | Sub Class CD | Year Built | Area | 
	
		|   | MA | Main | AVERAGE | 1 STY | 2021 | 1900.0 | 
	
		|   | GAR-ATT | Attached Garage | AVERAGE | 1 STY | 2021 | 618.0 | 
	
		|   | BS-UFC8 | BSMT AREA 8” CONC | AVERAGE | * | 2021 | 1013.0 | 
	
		|   | BSMT-PF | BSMT FINISH - PARTITIONED | AVERAGE | * | 2021 | 1013.0 | 
	
		|   | DECK | Open Wood Deck | GOOD | * | 2021 | 272.0 | 
	
		|   | PP-OPEN | Open Concrete Porch | GOOD | * | 2021 | 272.0 | 
	
		|   | DECK | Open Wood Deck | GOOD | * | 2021 | 100.0 | 
	
 
			
			
Sketch
 
			
Property Image
 
			
Land
 
	
		| 1 | SV 110K | SITE VALUE $110,000 | 0.5600 | 24393.60 | 0.00 | 0.00 | 1.00 | $250,272 | $0 | 
	
 
			
Roll Value History
 
	
		| 2026 | N/A | N/A | N/A | N/A | N/A | 
	
		| 2025 | $588,365 | $250,272 | $0 | $838,637 | $838,637 | 
	
		| 2024 | $594,371 | $212,256 | $0 | $806,627 | $806,627 | 
	
		| 2023 | $604,984 | $211,827 | $0 | $816,811 | $816,811 | 
	
		| 2022 | $467,481 | $211,827 | $0 | $679,308 | $679,308 | 
	
		| 2021 | $129,992 | $126,973 | $0 | $256,965 | $256,965 | 
	
		| 2020 | $0 | $128,029 | $0 | $128,029 | $128,029 | 
	
		| 2019 | $0 | $121,231 | $0 | $121,231 | $121,231 | 
	
		| 2018 | $0 | $121,231 | $0 | $121,231 | $121,231 | 
	
		| 2017 | $0 | $142,758 | $0 | $142,758 | $142,758 | 
	
		| 2016 | $0 | $147,290 | $0 | $147,290 | $147,290 | 
	
		| 2015 | $0 | $113,300 | $0 | $113,300 | $113,300 | 
	
 
			
Deed and Sales History
	
		| 1 | 04/14/2022 | SWD | Statutory Warranty Deed | TIMBERWOOD HOMES LLC | FREY ROBERT & JANET |  |  | $924,990.00 | 195702 | 2565525 | 
	
		| 2 | 09/23/2020 | SWD | Statutory Warranty Deed | EVANS DEVELOPMENT CO LLC | TIMBERWOOD HOMES LLC |  |  | $992,000.00 | 188516 | 2525346 | 
	
		|   |  | 
	
		| 3 | 08/17/2004 | W | Warranty Deed |  | EVANS DEVELOPMENT CO LLC |  |  |  | 0 | 2181045 | 
	
		| 4 | 08/31/2004 | O | Other |  |  BARBARA L PITTMAN |  |  |  | 0 | 2165230 | 
	
		| 5 | 01/30/2004 | O | Other |  |  PATRICIA B MUNCH ETAL |  |  |  | 0 | 2165228 | 
	
		| 6 | 08/17/2004 | W | Warranty Deed |  |  |  |  | $80,000.00 | 0 | 2181045 | 
	
		| 7 |  | OT | Conversion Code Only |  |  GRACE E BARNETT | 0 | 0 |  | 0 |  | 
	
 
			
			
Payout Agreement
	
		| No payout information available.. |