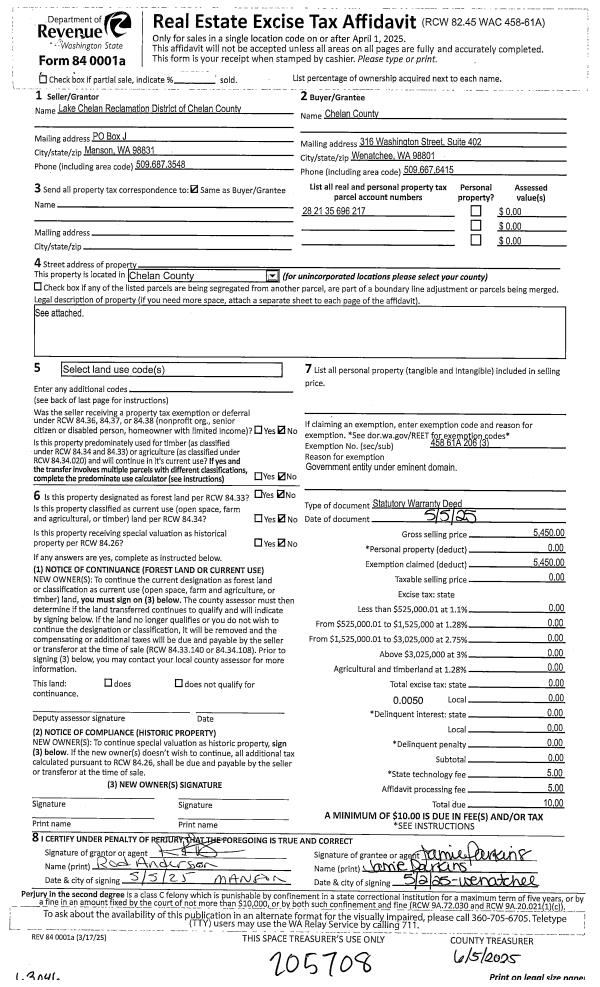
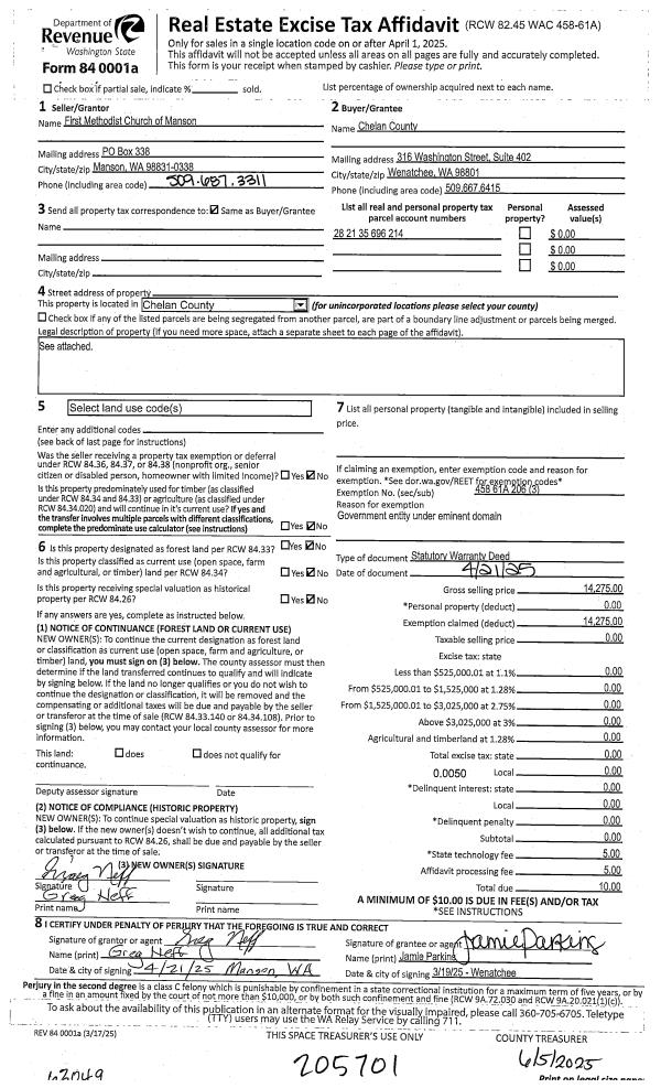
Property
Account |
| Property ID: | 65636 | Abbreviated Legal Description: | BURCH MOUNTAIN ESTATES II LOT 13 0.6100 ACRES |
| Geographic ID: | 232016695130 | Agent Code: | |
| Type: | Real | | |
| Tax Area: | 74 - 246 F1 CD3 WVFD | Land Use Code | 11 |
| Open Space: | N | DFL | N |
| Historic Property: | N | Remodel Property: | N |
| Multi-Family Redevelopment: | N | | |
| Township: | | Section: | |
| Range: | | Legal Acres: | 0.6100 |
Location |
| Address: | 295 BURCH HOLLOW LN WENATCHEE, WA 98801 | Mapsco: | |
| Neighborhood: | Cycle 2 Sunnyslope upper div 1 RES | Map ID: | 2SSLU01R01 |
| Neighborhood CD: | 2SSLU01R01 |
Owner |
| Name: | KELLOGG DANIEL A & AUDREY | Owner ID: | 121922 |
| Mailing Address: | 295 BURCH HOLLOW LN WENATCHEE, WA 98801 | % Ownership: | % |
| | | Exemptions: | |
Pay Tax Due
Select the appropriate checkbox next to the year to be paid. Multiple years may be selected.
*Convenience Fee not included
Taxes and Assessment Details
Values
| (+) Improvement Homesite Value: | + | N/A | |
| (+) Improvement Non-Homesite Value: | + | N/A | |
| (+) Land Homesite Value: | + | N/A | |
| (+) Land Non-Homesite Value: | + | N/A | Ag / Timber Use Value |
| (+) Curr Use (HS): | + | N/A | N/A |
| (+) Curr Use (NHS): | + | N/A | N/A |
| | | -------------------------- | |
| (=) Market Value: | = | N/A | |
| (–) Productivity Loss: | – | N/A | |
| | | -------------------------- | |
| (=) Subtotal: | = | N/A | |
| (+) Senior Appraised Value: | + | N/A | |
| (+) Non-Senior Appraised Value: | + | N/A | |
| | | -------------------------- | |
| (=) Total Appraised Value: | = | N/A | |
| (–) Senior Exemption Loss: | – | N/A | |
| (–) Exemption Loss: | – | N/A | |
| | | -------------------------- | |
| (=) Taxable Value: | = | N/A | |
Taxing Jurisdiction
| Owner: | KELLOGG DANIEL A & AUDREY | | |
| % Ownership: | 100.0000000000% | | |
| Total Value: | N/A | | |
| Tax Area: | 74 - 246 F1 CD3 WVFD |
| 110001 | County Road General | N/A | N/A | N/A | N/A | | |
| 010170 | Chelan County | N/A | N/A | N/A | N/A | | |
| 155001 | Veteran's Relief | N/A | N/A | N/A | N/A | | |
| 160001 | Mental Health | N/A | N/A | N/A | N/A | | |
| 657301 | Cemetery No 3 | N/A | N/A | N/A | N/A | | |
| 656101 | Fire No 1 General | N/A | N/A | N/A | N/A | | |
| 652003 | State School 2 | N/A | N/A | N/A | N/A | | |
| 652005 | State School | N/A | N/A | N/A | N/A | | |
| 652025 | State School 2 Refund | N/A | N/A | N/A | N/A | | |
| 107001 | Flood Control Zone | N/A | N/A | N/A | N/A | | |
| 656201 | Wenatchee Valley Fire Department | N/A | N/A | N/A | N/A | | |
| 656110 | Fire No 1 Bond | N/A | N/A | N/A | N/A | | |
| 644001 | Regional Library | N/A | N/A | N/A | N/A | | |
| 671101 | Port General | N/A | N/A | N/A | N/A | | |
| 654201 | Wenatchee SD 246 General | N/A | N/A | N/A | N/A | | |
| 654210 | Wenatchee SD 246 Bond | N/A | N/A | N/A | N/A | | |
| 652001 | State School Refund | N/A | N/A | N/A | N/A | | |
| | Total Tax Rate: | N/A | | | | | |
| | | | | Taxes w/Current Exemptions: | N/A | | |
| | | | | Taxes w/o Exemptions: | N/A | | |
Improvement / Building
| Improvement #1: | RESIDENTIAL | State Code: | 11 | 3282.5 sqft | Value: | N/A |
| Exterior Wall: | Plywood or Hrdbrd | Fireplace: | Single 1 Story | | Heating/Cooling: | Heat Pump | Number of Bathrooms: | 2.5 | | Number of Bedrooms: | 3 |   |   |
|
| | Type | Description | Class CD | Sub Class CD | Year Built | Area |
| | MA | Main | GOOD | 1 STY | 2022 | 3282.5 |
| | GAR-ATT | Attached Garage | GOOD | 1 STY | 2022 | 846.0 |
| | BS-UFC8 | BSMT AREA 8” CONC | GOOD | * | 2022 | 759.5 |
| | BSMT-PF | BSMT FINISH - PARTITIONED | GOOD | * | 2022 | 759.5 |
| | DECK | Open Wood Deck | GOOD | * | 2022 | 225.0 |
| | PP-OPEN | Open Concrete Porch | GOOD | * | 2022 | 181.0 |
| | PP-OPEN | Open Concrete Porch | GOOD | * | 2022 | 1145.0 |
| Improvement #2: | RESIDENTIAL | State Code: | 11 | 0.0 sqft | Value: | N/A |
Sketch
Property Image
Land
| 1 | SV 90K | SITE VALUE $90,000 | 0.6100 | 26571.60 | 0.00 | 0.00 | 1.00 | N/A | N/A |
Roll Value History
| 2026 | N/A | N/A | N/A | N/A | N/A |
| 2025 | $924,875 | $204,768 | $0 | $1,129,643 | $1,129,643 |
| 2024 | $924,875 | $173,664 | $0 | $1,098,539 | $1,098,539 |
| 2023 | $941,391 | $173,313 | $0 | $1,114,704 | $1,114,704 |
| 2022 | $0 | $173,313 | $0 | $173,313 | $173,313 |
| 2021 | $0 | $103,887 | $0 | $103,887 | $103,887 |
| 2020 | $0 | $104,751 | $0 | $104,751 | $104,751 |
| 2019 | $0 | $99,189 | $0 | $99,189 | $99,189 |
| 2018 | $0 | $99,189 | $0 | $99,189 | $99,189 |
| 2017 | $0 | $116,802 | $0 | $116,802 | $116,802 |
| 2016 | $0 | $120,510 | $0 | $120,510 | $120,510 |
| 2015 | $0 | $92,700 | $0 | $92,700 | $92,700 |
Deed and Sales History
| 1 | 05/26/2022 | SWD | Statutory Warranty Deed | TIMBERWOOD HOMES LLC | KELLOGG DANIEL A & AUDREY | | | $1,099,990.00 | 196181 | 2567809 |
| 2 | 09/23/2020 | SWD | Statutory Warranty Deed | EVANS DEVELOPMENT CO LLC | TIMBERWOOD HOMES LLC | | | $992,000.00 | 188516 | 2525346 |
|   | |
| 3 | 08/17/2004 | W | Warranty Deed | | EVANS DEVELOPMENT CO LLC | | | | 0 | 2181045 |
| 4 | 08/31/2004 | O | Other | | BARBARA L PITTMAN | | | | 0 | 2165230 |
| 5 | 01/30/2004 | O | Other | | PATRICIA B MUNCH ETAL | | | | 0 | 2165228 |
| 6 | 08/17/2004 | W | Warranty Deed | | | | | $80,000.00 | 0 | 2181045 |
| 7 | | OT | Conversion Code Only | | GRACE E BARNETT | 0 | 0 | | 0 | |
Payout Agreement
| No payout information available.. |