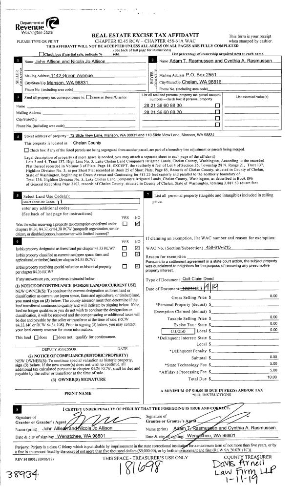
| 1 | 01/29/2019 | Q | Quit Claim Deed | ALLISON JOHN & NICOLA | RASMUSSEN ADAM T & CYNTHIA A | | | | 0 | 2490539 |
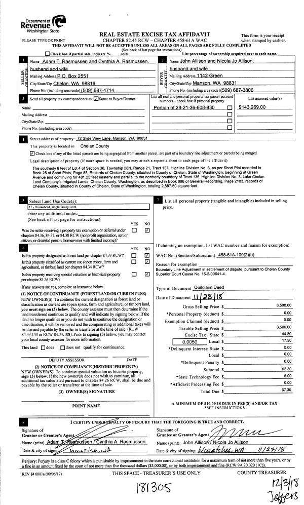
| 2 | 12/05/2018 | Q | Quit Claim Deed | RASMUSSEN ADAM T & CYNTHIA A | ALLISON JOHN ETAL | | | $3,500.00 | 0 | 2488781 |
| 3 | 11/08/2013 | WD | Warranty Deed | | RASMUSSEN ADAM T & CYNTHIA A | | | $92,000.00 | 160612 | 2392623 |
|   | |
| 4 | 07/15/2005 | WD | Warranty Deed | | RASMUSSEN ADAM & CYNTHIA ETAL | | | | 0 | 2204355 |
| 5 | 01/16/2004 | WFD | Warranty Fulfillment Deed | | RASMUSSEN ADAM & CYNTHIA ETAL | | | | 0 | 2165252 |
| 6 | 01/16/2004 | WFD | Warranty Fulfillment Deed | | OROVILLE ET AL PEEBLES | | | | 0 | 2165252 |
| 7 | 02/24/1989 | C | Real Estate Contract | PEEBLES ORVILLE | PEEBLES HEROLD | 906 | 1724 | | 0 | |
| 8 | 05/20/1965 | SWD | Statutory Warranty Deed | | O M PEEBLES | 671 | 1259 | | 0 | |
| 9 | 07/15/2005 | WD | Warranty Deed | | | | | $250,000.00 | 12900900 | 2204355 |
|   | |