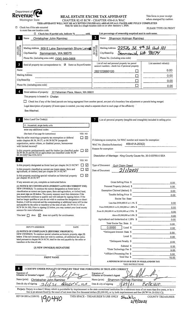
Property
Account |
| Property ID: | 65588 | Abbreviated Legal Description: | CHERRY MEADOWS DIVISION 1 BLOCK 2 LOT 14 0.1700 ACRES |
| Geographic ID: | 222015510314 | Agent Code: | |
| Type: | Real | | |
| Tax Area: | 802 - W 246 F1 WB WVFD | Land Use Code | 11 |
| Open Space: | N | DFL | N |
| Historic Property: | N | Remodel Property: | N |
| Multi-Family Redevelopment: | N | | |
| Township: | | Section: | |
| Range: | | Legal Acres: | 0.1700 |
Location |
| Address: | 651 CRAIG AVE WENATCHEE, WA 98801 | Mapsco: | |
| Neighborhood: | Cycle 1 Wenatchee Div 1 Res | Map ID: | 1WEN101R01 |
| Neighborhood CD: | 1WEN101R01 |
Owner |
| Name: | BARROW JILLIAN R & BRIAN D MC FADDEN | Owner ID: | 105621 |
| Mailing Address: | 651 CRAIG AVE WENATCHEE, WA 98801 | % Ownership: | % |
| | | Exemptions: | |
Pay Tax Due
Select the appropriate checkbox next to the year to be paid. Multiple years may be selected.
*Convenience Fee not included
Taxes and Assessment Details
Values
| (+) Improvement Homesite Value: | + | N/A | |
| (+) Improvement Non-Homesite Value: | + | N/A | |
| (+) Land Homesite Value: | + | N/A | |
| (+) Land Non-Homesite Value: | + | N/A | Ag / Timber Use Value |
| (+) Curr Use (HS): | + | N/A | N/A |
| (+) Curr Use (NHS): | + | N/A | N/A |
| | | -------------------------- | |
| (=) Market Value: | = | N/A | |
| (–) Productivity Loss: | – | N/A | |
| | | -------------------------- | |
| (=) Subtotal: | = | N/A | |
| (+) Senior Appraised Value: | + | N/A | |
| (+) Non-Senior Appraised Value: | + | N/A | |
| | | -------------------------- | |
| (=) Total Appraised Value: | = | N/A | |
| (–) Senior Exemption Loss: | – | N/A | |
| (–) Exemption Loss: | – | N/A | |
| | | -------------------------- | |
| (=) Taxable Value: | = | N/A | |
Taxing Jurisdiction
| Owner: | BARROW JILLIAN R & BRIAN D MC FADDEN | | |
| % Ownership: | 100.0000000000% | | |
| Total Value: | N/A | | |
| Tax Area: | 802 - W 246 F1 WB WVFD |
| 010170 | Chelan County | N/A | N/A | N/A | N/A | | |
| 155001 | Veteran's Relief | N/A | N/A | N/A | N/A | | |
| 160001 | Mental Health | N/A | N/A | N/A | N/A | | |
| 656101 | Fire No 1 General | N/A | N/A | N/A | N/A | | |
| 656110 | Fire No 1 Bond | N/A | N/A | N/A | N/A | | |
| 644001 | Regional Library | N/A | N/A | N/A | N/A | | |
| 652025 | State School 2 Refund | N/A | N/A | N/A | N/A | | |
| 693041 | Wenatchee General | N/A | N/A | N/A | N/A | | |
| 107001 | Flood Control Zone | N/A | N/A | N/A | N/A | | |
| 656201 | Wenatchee Valley Fire Department | N/A | N/A | N/A | N/A | | |
| 671101 | Port General | N/A | N/A | N/A | N/A | | |
| 654201 | Wenatchee SD 246 General | N/A | N/A | N/A | N/A | | |
| 654210 | Wenatchee SD 246 Bond | N/A | N/A | N/A | N/A | | |
| 652001 | State School Refund | N/A | N/A | N/A | N/A | | |
| 652003 | State School 2 | N/A | N/A | N/A | N/A | | |
| 652005 | State School | N/A | N/A | N/A | N/A | | |
| | Total Tax Rate: | N/A | | | | | |
| | | | | Taxes w/Current Exemptions: | N/A | | |
| | | | | Taxes w/o Exemptions: | N/A | | |
Improvement / Building
| Improvement #1: | RESIDENTIAL | State Code: | 11 | 1983.0 sqft | Value: | N/A |
| Exterior Wall: | Plywood or Hrdbrd | Fireplace: | Single 1 Story | | Heating/Cooling: | Heat Pump | Number of Bathrooms: | 2 | | Number of Bedrooms: | 3 |   |   |
|
| | Type | Description | Class CD | Sub Class CD | Year Built | Area |
| | MA | Main | AVERAGE | 1 STY | 2016 | 1983.0 |
| | GAR-ATT | Attached Garage | AVERAGE | 1 STY | 2016 | 668.0 |
| | PP-OPEN | Open Concrete Porch | AVERAGE | * | 2016 | 102.0 |
| | PP-OPEN | Open Concrete Porch | AVERAGE | * | 2016 | 102.0 |
| | PP-ST | Open Concrete Slab W/Steps | AVERAGE | * | 2016 | 170.0 |
| | PP-ST | Open Concrete Slab W/Steps | AVERAGE | * | 2016 | 130.0 |
Sketch
Property Image
Land
| 1 | SV 120K | SITE VALUE $120,000 | 0.1700 | 7405.20 | 0.00 | 0.00 | 1.00 | N/A | N/A |
Roll Value History
| 2026 | N/A | N/A | N/A | N/A | N/A |
| 2025 | $434,832 | $128,400 | $0 | $563,232 | $563,232 |
| 2024 | $442,596 | $128,400 | $0 | $570,996 | $570,996 |
| 2023 | $461,982 | $104,580 | $0 | $566,562 | $566,562 |
| 2022 | $359,193 | $122,633 | $0 | $481,826 | $481,826 |
| 2021 | $328,533 | $93,998 | $0 | $422,531 | $422,531 |
| 2020 | $300,011 | $74,700 | $0 | $374,711 | $374,711 |
| 2019 | $292,885 | $84,038 | $0 | $376,923 | $376,923 |
| 2018 | $249,918 | $84,600 | $0 | $334,518 | $334,518 |
| 2017 | $211,253 | $84,600 | $0 | $295,853 | $295,853 |
| 2016 | $166,341 | $75,000 | $0 | $241,341 | $241,341 |
| 2015 | $0 | $60,000 | $0 | $60,000 | $60,000 |
Deed and Sales History
| 1 | 10/31/2017 | SWD | Statutory Warranty Deed | SHEEHEY SHEILA L | BARROW JILLIAN R & BRIAN D MC FADDEN | | | $355,000.00 | 176602 | 2467890 |
| 2 | 09/19/2016 | SWD | Statutory Warranty Deed | SAGE HOMES LLC | SHEEHEY SHEILA L | | | $360,915.00 | 171575 | 2444278 |
| 3 | 03/17/2016 | SWD | Statutory Warranty Deed | CHERRY MEADOWS LLC | SAGE HOMES LLC | | | $510,000.00 | 169335 | 2434010 |
|   | |
| 4 | 03/13/2015 | SWD | Statutory Warranty Deed | CRAIG MICHAEL W & PATRICK L | CHERRY MEADOWS LLC | | | $750,000.00 | 0 | 2414807 |
| 5 | 12/28/2012 | Q | Quit Claim Deed | CRAIG CLETA MAE | CRAIG MICHAEL W & PATRICK L | | | | 0 | 2374173 |
| 6 | 05/09/2011 | CPA | Community Property Agreement | CRAIG ELMER | CRAIG CLETA MAE | | | | 0 | 2342689 |
| 7 | 05/09/2011 | CPA | Community Property Agreement | CRAIG ELMER D | CRAIG CLETA MAE | | | | 0 | 2342689 |
| 8 | 12/23/1999 | WD | Warranty Deed | ROBERT CAMP | ELMER CRAIG | | | | 0 | 2066950 |
| 9 | 12/16/1999 | O | Other | BLA 1999-119 | | | | | 0 | 2066561 |
| 10 | 06/29/1965 | SWD | Statutory Warranty Deed | | CRAIG ELMER | 672 | 351 | | 0 | |
| 11 | 10/26/2010 | DC | Death Certificate | | CRAIG ELMER D | | | | 0 | |
| 12 | 12/23/1999 | WD | Warranty Deed | | | | | $105,000.00 | 0 | 2066950 |
Payout Agreement
| No payout information available.. |