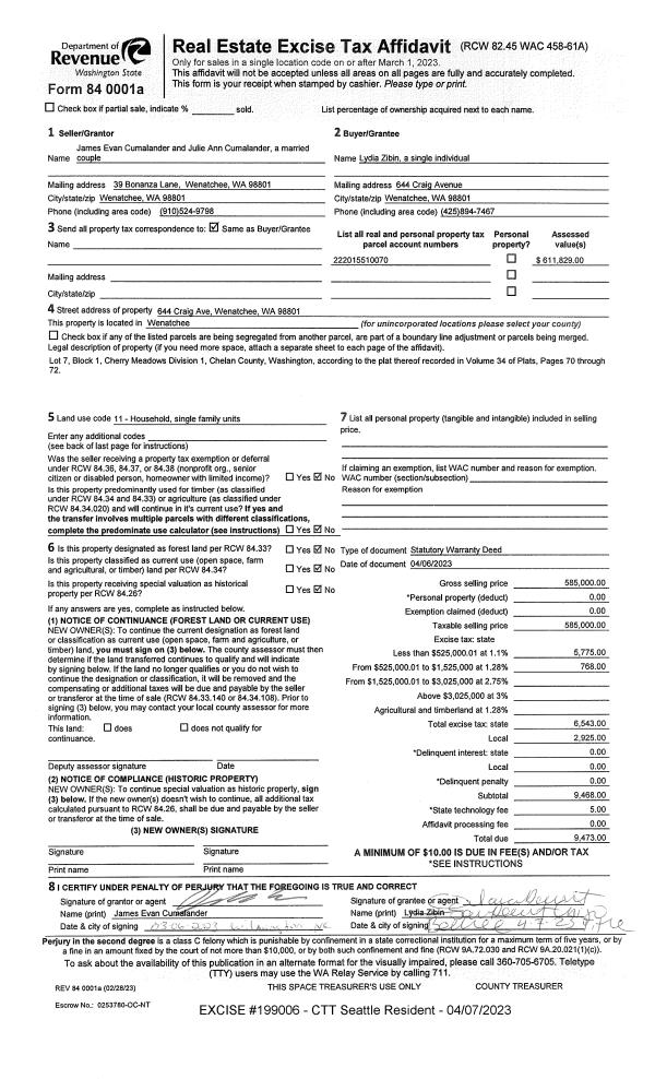
| 1 | 04/07/2023 | SWD | Statutory Warranty Deed | CUMALANDER JAMES E & JULIE A | ZIBIN LYDIA | | | $585,000.00 | 199006 | 2580157 |
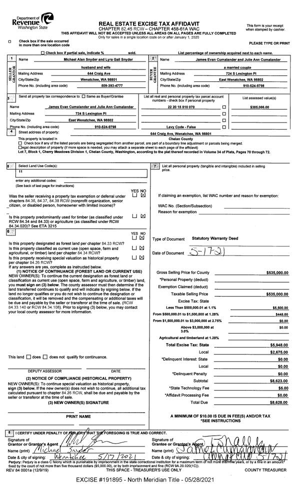
| 2 | 05/28/2021 | SWD | Statutory Warranty Deed | SNYDER MICHAEL A & LYRA G | CUMALANDER JAMES E & JULIE A | | | $535,000.00 | 191895 | 2545124 |
| 3 | 08/17/2016 | SWD | Statutory Warranty Deed | SAGE HOMES LLC | SNYDER MICHAEL A & LYRA G | | | $330,000.00 | 171155 | 2442299 |
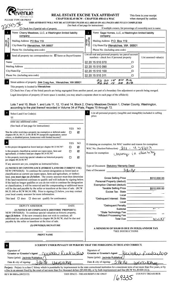
| 4 | 03/17/2016 | SWD | Statutory Warranty Deed | CHERRY MEADOWS LLC | SAGE HOMES LLC | | | $510,000.00 | 169335 | 2434010 |
|   | |
| 5 | 03/13/2015 | SWD | Statutory Warranty Deed | CRAIG MICHAEL W & PATRICK L | CHERRY MEADOWS LLC | | | $750,000.00 | 0 | 2414807 |
| 6 | 12/28/2012 | Q | Quit Claim Deed | CRAIG CLETA MAE | CRAIG MICHAEL W & PATRICK L | | | | 0 | 2374173 |
| 7 | 05/09/2011 | CPA | Community Property Agreement | CRAIG ELMER | CRAIG CLETA MAE | | | | 0 | 2342689 |
| 8 | 05/09/2011 | CPA | Community Property Agreement | CRAIG ELMER D | CRAIG CLETA MAE | | | | 0 | 2342689 |
| 9 | 10/26/2010 | DC | Death Certificate | | CRAIG ELMER D | | | | 0 | |
| 10 | 12/23/1999 | WD | Warranty Deed | ROBERT CAMP | ELMER CRAIG | | | | 0 | 2066950 |
| 11 | 12/16/1999 | O | Other | BLA 1999-119 | | | | | 0 | 2066561 |
| 12 | 12/23/1999 | WD | Warranty Deed | | | | | $105,000.00 | 0 | 2066950 |
| 13 | 06/29/1965 | SWD | Statutory Warranty Deed | | CRAIG ELMER | 672 | 351 | | 0 | |