Property
Account |
| Property ID: | 65380 | Abbreviated Legal Description: | T 27N R 19EWM S 14 SESW; PT OF SEC 14 E OF RD LOT F BLA 2024-317 LF CE 2015-185 2.0000 ACRES |
| Geographic ID: | 271914340050 | Agent Code: | |
| Type: | Real | | |
| Tax Area: | 20 - 127 F8 CD1 | Land Use Code | 11 |
| Open Space: | N | DFL | N |
| Historic Property: | N | Remodel Property: | N |
| Multi-Family Redevelopment: | N | | |
| Township: | 27N | Section: | 14 |
| Range: | 19EWM | Legal Acres: | 2.0000 |
Location |
| Address: | 14216 ENTIAT RIVER RD ENTIAT, WA 98822 | Mapsco: | |
| Neighborhood: | Cycle 2 Entiat River north div 1 RES | Map ID: | 2ERVN01R01 |
| Neighborhood CD: | 2ERVN01R01 |
Owner |
| Name: | HOFSTETTER TRAVIS E & TINA L | Owner ID: | 107085 |
| Mailing Address: | PO BOX 260 ARDENVOIR, WA 98811 | % Ownership: | % |
| | | Exemptions: | |
Pay Tax Due
Select the appropriate checkbox next to the year to be paid. Multiple years may be selected.
*Convenience Fee not included
Taxes and Assessment Details
Values
| (+) Improvement Homesite Value: | + | N/A | |
| (+) Improvement Non-Homesite Value: | + | N/A | |
| (+) Land Homesite Value: | + | N/A | |
| (+) Land Non-Homesite Value: | + | N/A | Ag / Timber Use Value |
| (+) Curr Use (HS): | + | N/A | N/A |
| (+) Curr Use (NHS): | + | N/A | N/A |
| | | -------------------------- | |
| (=) Market Value: | = | N/A | |
| (–) Productivity Loss: | – | N/A | |
| | | -------------------------- | |
| (=) Subtotal: | = | N/A | |
| (+) Senior Appraised Value: | + | N/A | |
| (+) Non-Senior Appraised Value: | + | N/A | |
| | | -------------------------- | |
| (=) Total Appraised Value: | = | N/A | |
| (–) Senior Exemption Loss: | – | N/A | |
| (–) Exemption Loss: | – | N/A | |
| | | -------------------------- | |
| (=) Taxable Value: | = | N/A | |
Taxing Jurisdiction
| Owner: | HOFSTETTER TRAVIS E & TINA L | | |
| % Ownership: | 100.0000000000% | | |
| Total Value: | N/A | | |
| Tax Area: | 20 - 127 F8 CD1 |
| 110001 | County Road General | N/A | N/A | N/A | N/A | | |
| 010170 | Chelan County | N/A | N/A | N/A | N/A | | |
| 155001 | Veteran's Relief | N/A | N/A | N/A | N/A | | |
| 160001 | Mental Health | N/A | N/A | N/A | N/A | | |
| 657101 | Cemetery No 1 | N/A | N/A | N/A | N/A | | |
| 656801 | Fire No 8 General | N/A | N/A | N/A | N/A | | |
| 652003 | State School 2 | N/A | N/A | N/A | N/A | | |
| 652005 | State School | N/A | N/A | N/A | N/A | | |
| 652025 | State School 2 Refund | N/A | N/A | N/A | N/A | | |
| 107001 | Flood Control Zone | N/A | N/A | N/A | N/A | | |
| 656810 | Fire No 8 Bond | N/A | N/A | N/A | N/A | | |
| 644001 | Regional Library | N/A | N/A | N/A | N/A | | |
| 671101 | Port General | N/A | N/A | N/A | N/A | | |
| 654081 | Entiat SD 127 General | N/A | N/A | N/A | N/A | | |
| 654090 | Entiat SD 127 Bond | N/A | N/A | N/A | N/A | | |
| 652001 | State School Refund | N/A | N/A | N/A | N/A | | |
| | Total Tax Rate: | N/A | | | | | |
| | | | | Taxes w/Current Exemptions: | N/A | | |
| | | | | Taxes w/o Exemptions: | N/A | | |
Improvement / Building
Sketch
| No sketches available for this property. |
Property Image
Land
| 1 | RES 7.5K | RESIDUAL $7500/A | 1.0000 | 43560.00 | 0.00 | 0.00 | 1.00 | N/A | N/A |
| 2 | SV 50K | SITE VALUE $50,000 | 1.0000 | 43560.00 | 0.00 | 0.00 | 1.00 | N/A | N/A |
Roll Value History
| 2026 | N/A | N/A | N/A | N/A | N/A |
| 2025 | $0 | $128,225 | $0 | $128,225 | $128,225 |
| 2024 | $0 | $81,650 | $0 | $81,650 | $81,650 |
| 2023 | $0 | $76,680 | $0 | $76,680 | $76,680 |
| 2022 | $0 | $76,680 | $0 | $76,680 | $76,680 |
| 2021 | $0 | $49,140 | $0 | $49,140 | $49,140 |
| 2020 | $0 | $49,140 | $0 | $49,140 | $49,140 |
| 2019 | $0 | $49,140 | $0 | $49,140 | $49,140 |
| 2018 | $0 | $61,020 | $0 | $61,020 | $61,020 |
| 2017 | $0 | $58,860 | $0 | $58,860 | $58,860 |
| 2016 | $0 | $50,760 | $0 | $50,760 | $50,760 |
| 2015 | $0 | $42,089 | $0 | $42,089 | $42,089 |
| 2014 | $0 | $42,089 | $0 | $42,089 | $42,089 |
Deed and Sales History
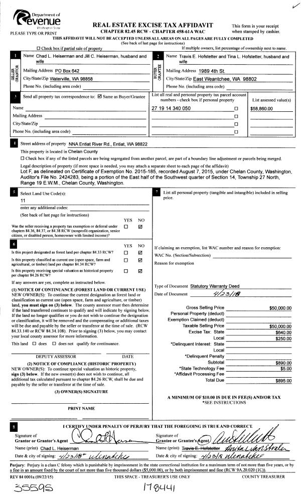
| 1 | 04/24/2018 | SWD | Statutory Warranty Deed | HEISERMAN CHAD L & JILL C | HOFSTETTER TRAVIS E & TINA L | | | $50,000.00 | 178441 | 2476541 |
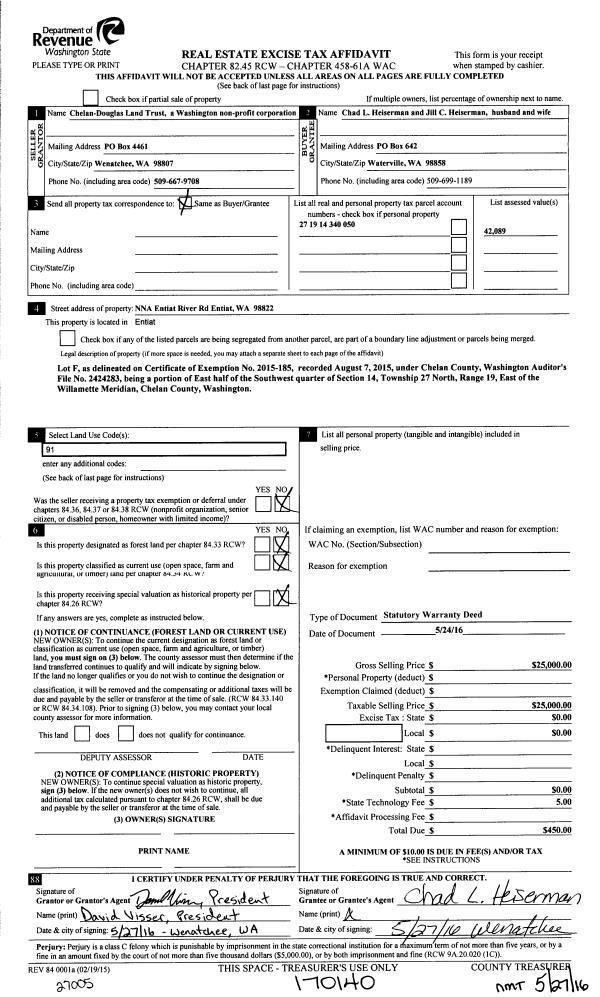
| 2 | 05/27/2016 | SWD | Statutory Warranty Deed | CHELAN-DOUGLAS LAND TRUST | HEISERMAN CHAD L & JILL C | | | $25,000.00 | 170140 | 2437603 |
| 3 | 07/31/2014 | SWD | Statutory Warranty Deed | | CHELAN-DOUGLAS LAND TRUST | | | $535,000.00 | 162986 | 2404039 |
|   | |
| 4 | 08/15/2011 | DC | Death Certificate | | | | | | 0 | UNRECORDED |
| 5 | 08/15/2011 | AFF | Affidavit | | BREDA DANIEL R | | | | 0 | UNRECORDED |
| 6 | 04/30/2012 | PR | Personal Representatives Deed | | BREDA KATHERINE BREMER | | | $0.00 | 154911 | 2359968 |
| 7 | 09/19/2005 | CPA | Community Property Agreement | BREMER GUSTAVUS | BREMER ELVA | | | | 0 | 2209547 |
| 8 | 09/09/2005 | CPA | Community Property Agreement | BREMER GUSTAVUS | BREMER ELVA | | | | 0 | 2208874 |
| 9 | 08/06/1991 | J | Judgement | USA ET AL | HARLOW ROBERT C | 953 | 400 | | 0 | |
| 10 | 03/31/1988 | O | Other | BREMER G A | CASCADE INVESTM | 891 | 439 | | 0 | |
| 11 | 03/31/1988 | J | Judgement | CASCADE INVESTM | BREMER G A | 891 | 435 | | 0 | |
| 12 | 07/26/1950 | Q | Quit Claim Deed | | BREMER ELVA M | 466 | 185 | | 0 | |
| 13 | 05/10/2012 | MH TITLE | Mobile Home Title | | BREDA KATHERINE BREMER | | | | 155021 | |
| 14 | 01/15/1988 | J | Judgement | US DIST COURT | #C86069AAM | 0 | 0 | | 0 | |
| 15 | 01/31/1973 | O | Other | CHEL CO SUP CRT | CAUSE #26814 | 0 | 0 | | 0 | |
Payout Agreement
| No payout information available.. |