Property
Account |
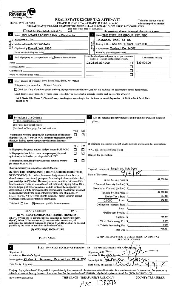
| Property ID: | 65232 | Abbreviated Legal Description: | SASKA HILLS PHASE 3 LOT 9 0.2700 ACRES |
| Geographic ID: | 252108837090 | Agent Code: | |
| Type: | Real | | |
| Tax Area: | 410 - E 127 F8 CD1 | Land Use Code | 11 |
| Open Space: | N | DFL | N |
| Historic Property: | N | Remodel Property: | N |
| Multi-Family Redevelopment: | N | | |
| Township: | 25N | Section: | 11 |
| Range: | 21EWM | Legal Acres: | 0.2700 |
Location |
| Address: | 9977 SASKA WAY ENTIAT, WA 98822 | Mapsco: | |
| Neighborhood: | Cycle 2 Entiat City div 1 RES | Map ID: | 2ENTC01R01 |
| Neighborhood CD: | 2ENTC01R01 |
Owner |
| Name: | THE ENTRUST GROUP INC FBO MICHAEL DART ETAL | Owner ID: | 106969 |
| Mailing Address: | 555 12TH ST STE 900 OAKLAND, CA 94607 | % Ownership: | % |
| | | Exemptions: | |
Pay Tax Due
There is currently No Amount Due on this property.
Taxes and Assessment Details
Values
| (+) Improvement Homesite Value: | + | $0 | |
| (+) Improvement Non-Homesite Value: | + | $215,466 | |
| (+) Land Homesite Value: | + | $0 | |
| (+) Land Non-Homesite Value: | + | $33,620 | |
| (+) Curr Use (HS): | + | $0 | $0 |
| (+) Curr Use (NHS): | + | $0 | $0 |
| | | -------------------------- | |
| (=) Market Value: | = | $249,086 | |
| (–) Productivity Loss: | – | $0 | |
| | | -------------------------- | |
| (=) Subtotal: | = | $249,086 | |
| (+) Senior Appraised Value: | + | $0 | |
| (+) Non-Senior Appraised Value: | + | $249,086 | |
| | | -------------------------- | |
| (=) Total Appraised Value: | = | $249,086 | |
| (–) Senior Exemption Loss: | – | $0 | |
| (–) Exemption Loss: | – | $0 | |
| | | -------------------------- | |
| (=) Taxable Value: | = | $249,086 | |
Taxing Jurisdiction
| Owner: | THE ENTRUST GROUP INC FBO MICHAEL DART ETAL | | |
| % Ownership: | 100.0000000000% | | |
| Total Value: | $249,086 | | |
| Tax Area: | 410 - E 127 F8 CD1 |
| 010170 | Chelan County | 1.0308400273 | $249,086 | $249,086 | $256.77 | | |
| 155001 | Veteran's Relief | 0.0112499997 | $249,086 | $249,086 | $2.80 | | |
| 160001 | Mental Health | 0.0250000002 | $249,086 | $249,086 | $6.23 | | |
| 657101 | Cemetery No 1 | 0.0506830187 | $249,086 | $249,086 | $12.62 | | |
| 693021 | Entiat General | 1.3425806553 | $249,086 | $249,086 | $334.42 | | |
| 656801 | Fire No 8 General | 0.8239283691 | $249,086 | $249,086 | $205.23 | | |
| 652003 | State School 2 | 1.0967484031 | $249,086 | $249,086 | $273.18 | | |
| 652005 | State School | 2.0380122406 | $249,086 | $249,086 | $507.64 | | |
| 652025 | State School 2 Refund | 0.0000287381 | $249,086 | $249,086 | $0.01 | | |
| 107001 | Flood Control Zone | 0.0549017061 | $249,086 | $249,086 | $13.68 | | |
| 656810 | Fire No 8 Bond | 0.2806847779 | $249,086 | $249,086 | $69.91 | | |
| 644001 | Regional Library | 0.3693977329 | $249,086 | $249,086 | $92.01 | | |
| 671101 | Port General | 0.2399548335 | $249,086 | $249,086 | $59.77 | | |
| 654081 | Entiat SD 127 General | 1.4178809496 | $249,086 | $249,086 | $353.17 | | |
| 654090 | Entiat SD 127 Bond | 1.3036012619 | $249,086 | $249,086 | $324.71 | | |
| 652001 | State School Refund | 0.0000539242 | $249,086 | $249,086 | $0.01 | | |
| | Total Tax Rate: | 10.0855466382 | | | | | |
| | | | | Taxes w/Current Exemptions: | $2,512.16 | | |
| | | | | Taxes w/o Exemptions: | $2,512.16 | | |
Improvement / Building
| Improvement #1: | RESIDENTIAL | State Code: | 11 | 1440.0 sqft | Value: | $215,466 |
| Exterior Wall: | Plywood or Hrdbrd | Heating/Cooling: | Heat Pump | | Number of Bathrooms: | 2 | Number of Bedrooms: | 3 |
|
| | Type | Description | Class CD | Sub Class CD | Year Built | Area |
| | MA | Main | AVERAGE | 1 STY | 2019 | 1440.0 |
| | GAR-ATT | Attached Garage | AVERAGE | 1 STY | 2019 | 480.0 |
Sketch
Property Image
Land
| 1 | SV 50K | SITE VALUE $50,000 | 0.2700 | 11761.20 | 0.00 | 0.00 | 1.00 | $33,620 | $0 |
Roll Value History
| 2026 | N/A | N/A | N/A | N/A | N/A |
| 2025 | $310,692 | $86,800 | $0 | $397,492 | $397,492 |
| 2024 | $313,897 | $64,000 | $0 | $377,897 | $377,897 |
| 2023 | $330,986 | $64,000 | $0 | $394,986 | $394,986 |
| 2022 | $322,355 | $79,000 | $0 | $401,355 | $401,355 |
| 2021 | $194,057 | $24,800 | $0 | $218,857 | $218,857 |
| 2020 | $194,890 | $29,610 | $0 | $224,500 | $224,500 |
| 2019 | $215,466 | $33,620 | $0 | $249,086 | $249,086 |
| 2018 | $0 | $39,500 | $0 | $39,500 | $39,500 |
| 2017 | $0 | $39,500 | $0 | $39,500 | $39,500 |
| 2016 | $0 | $39,000 | $0 | $39,000 | $39,000 |
| 2015 | $0 | $19,500 | $0 | $19,500 | $19,500 |
| 2014 | $0 | $0 | $0 | $0 | $0 |
Deed and Sales History
| 1 | 04/09/2018 | BARGAIN | Bargain & Sale Deed | MOUNTAIN PACIFIC BANK | THE ENTRUST GROUP INC FBO MICHAEL DART ETAL | | | $42,500.00 | 178275 | 2475745 |
| 2 | 08/30/2013 | F | Foreclosure Deed | ENTIAT HOLDINGS LLC | MOUNTAIN PACIFIC BANK | | | $0.00 | 0 | 2389141 |
| 3 | 08/30/2013 | F | Foreclosure Deed | SASKA DEVELOPMENT LLC | MOUNTAIN PACIFIC BANK | | | $0.00 | 0 | 2389141 |
| 4 | 06/01/2007 | W | Warranty Deed | | SASKA DEVELOPMENT LLC | | | | 0 | 2256986 |
| 5 | 07/06/2007 | REF | Conversion Code Only | BA#2007-05E | | | | | 0 | 2260002 |
| 6 | 06/07/2007 | W | Warranty Deed | | ENTIAT HOLDINGS LLC | | | | 0 | 2215107 |
| 7 | 01/14/1998 | REF | Conversion Code Only | GRIFFITH ALICE | GRIFFITH CARL | | | | 0 | 2020169 |
| 8 | 12/05/2005 | O | Other | | CARL E GRIFFITH ETAL | | | | 0 | 2018439 |
| 9 | 12/16/1997 | REF | Conversion Code Only | GRIFFITH ALICE | GRIFFITH CARL | | | | 0 | 2018438 |
| 10 | 07/06/2007 | REF | Conversion Code Only | HANCOCK MICHAEL | SASKA DEVELOPMENT | | | | 0 | 2263 |
| 11 | 11/17/1992 | REF | Conversion Code Only | GRIFFITH ALICE | GRIFFITH WARREN | 983 | 245 | | 0 | |
| 12 | 08/06/1990 | REF | Conversion Code Only | GRIFFITH WARREN | GRIFFITH ALICE | 934 | 537 | | 0 | |
| 13 | | OT | Conversion Code Only | | WARREN H GRIFFITH | 357 | 55 | | 0 | |
| 14 | 03/30/2005 | REF | Conversion Code Only | SURVEY | | 46 | 103 | | 0 | |
| 15 | 05/29/2007 | W | Warranty Deed | | | | | $5,700,000.00 | 0 | 2256986 |
| 16 | 11/28/2005 | W | Warranty Deed | | | | | $400,000.00 | 0 | 2215107 |
| 17 | 11/16/1992 | Q | Quit Claim Deed | | | 983 | 245 | | 0 | |
Payout Agreement
| No payout information available.. |