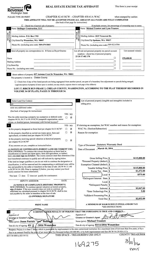
Property
Account |
Property ID: | 65049 | Abbreviated Legal Description: | BIRCH RUN PHASE 2 LOT 17 0.5100 ACRES |
Geographic ID: | 232017482170 | Agent Code: | |
Type: | Real | | |
Tax Area: | 74 - 246 F1 CD3 WVFD | Land Use Code | 11 |
Open Space: | N | DFL | N |
Historic Property: | N | Remodel Property: | N |
Multi-Family Redevelopment: | N | | |
Township: | 23N | Section: | 17 |
Range: | 20EWM | Legal Acres: | 0.5100 |
Location |
Address: | 837 AUTUMN CREST DR WENATCHEE, WA 98801 | Mapsco: | |
Neighborhood: | Cycle 2 Sunnyslope mid div 1 RES | Map ID: | 2SSLM01R01 |
Neighborhood CD: | 2SSLM01R01 |
Owner |
Name: | TRANTOW MICHAEL & LYNN | Owner ID: | 100007 |
Mailing Address: | 837 AUTUMN CREST DR WENATCHEE, WA 98801 | % Ownership: | % |
| | Exemptions: | |
Pay Tax Due
Select the appropriate checkbox next to the year to be paid. Multiple years may be selected.
*Convenience Fee not included
Taxes and Assessment Details
Values
(+) Improvement Homesite Value: | + | $0 | |
(+) Improvement Non-Homesite Value: | + | $1,107,217 | |
(+) Land Homesite Value: | + | $0 | |
(+) Land Non-Homesite Value: | + | $191,835 | |
(+) Curr Use (HS): | + | $0 | $0 |
(+) Curr Use (NHS): | + | $0 | $0 |
| | -------------------------- | |
(=) Market Value: | = | $1,299,052 | |
(–) Productivity Loss: | – | $0 | |
| | -------------------------- | |
(=) Subtotal: | = | $1,299,052 | |
(+) Senior Appraised Value: | + | $0 | |
(+) Non-Senior Appraised Value: | + | $1,299,052 | |
| | -------------------------- | |
(=) Total Appraised Value: | = | $1,299,052 | |
(–) Senior Exemption Loss: | – | $0 | |
(–) Exemption Loss: | – | $0 | |
| | -------------------------- | |
(=) Taxable Value: | = | $1,299,052 | |
Taxing Jurisdiction
Owner: | TRANTOW MICHAEL & LYNN | | |
% Ownership: | 100.0000000000% | | |
Total Value: | N/A | | |
Tax Area: | 74 - 246 F1 CD3 WVFD |
110001 | County Road General | N/A | N/A | N/A | N/A | | |
010170 | Chelan County | N/A | N/A | N/A | N/A | | |
155001 | Veteran's Relief | N/A | N/A | N/A | N/A | | |
160001 | Mental Health | N/A | N/A | N/A | N/A | | |
657301 | Cemetery No 3 | N/A | N/A | N/A | N/A | | |
656101 | Fire No 1 General | N/A | N/A | N/A | N/A | | |
652003 | State School 2 | N/A | N/A | N/A | N/A | | |
652005 | State School | N/A | N/A | N/A | N/A | | |
652025 | State School 2 Refund | N/A | N/A | N/A | N/A | | |
107001 | Flood Control Zone | N/A | N/A | N/A | N/A | | |
656201 | Wenatchee Valley Fire Department | N/A | N/A | N/A | N/A | | |
656110 | Fire No 1 Bond | N/A | N/A | N/A | N/A | | |
644001 | Regional Library | N/A | N/A | N/A | N/A | | |
671101 | Port General | N/A | N/A | N/A | N/A | | |
654201 | Wenatchee SD 246 General | N/A | N/A | N/A | N/A | | |
654210 | Wenatchee SD 246 Bond | N/A | N/A | N/A | N/A | | |
652001 | State School Refund | N/A | N/A | N/A | N/A | | |
| Total Tax Rate: | N/A | | | | | |
| | | | Taxes w/Current Exemptions: | N/A | | |
| | | | Taxes w/o Exemptions: | N/A | | |
Improvement / Building
Improvement #1: | RESIDENTIAL | State Code: | 11 | 2232.0 sqft | Value: | $1,107,217 |
Exterior Wall: | Plywood or Hrdbrd | Fireplace: | Double 2 Story | Heating/Cooling: | Heat Pump | Number of Bathrooms: | 3.5 | Number of Bedrooms: | 4 |   |   |
|
| Type | Description | Class CD | Sub Class CD | Year Built | Area |
| MA | Main | GOOD | 1 STY | 2017 | 2232.0 |
| BS-UFC8 | BSMT AREA 8” CONC | GOOD | 1 STY | 2017 | 2136.0 |
| BSMT-PF | BSMT FINISH - PARTITIONED | GOOD | 1 STY | 2017 | 996.0 |
| GAR-ATT | Attached Garage | GOOD | 1 STY | 2017 | 1148.0 |
| DECK | Open Wood Deck | GOOD | * | 2017 | 328.0 |
| PP-OPEN | Open Concrete Porch | GOOD | * | 2017 | 328.0 |
Sketch
Property Image
Land
1 | SV 105K | SITE VALUE $105,000 | 0.5100 | 22215.60 | 0.00 | 0.00 | 1.00 | $191,835 | $0 |
Roll Value History
2025 | N/A | N/A | N/A | N/A | N/A |
2024 | $804,020 | $201,884 | $0 | $1,005,904 | $1,005,904 |
2023 | $811,751 | $206,451 | $0 | $1,018,202 | $1,018,202 |
2022 | $832,243 | $186,354 | $0 | $1,018,597 | $1,018,597 |
2021 | $693,477 | $157,122 | $0 | $850,599 | $850,599 |
2020 | $656,768 | $93,534 | $0 | $750,302 | $750,302 |
2019 | $585,894 | $101,787 | $0 | $687,681 | $687,681 |
2018 | $521,663 | $116,277 | $0 | $637,940 | $637,940 |
2017 | $476,121 | $88,592 | $0 | $564,713 | $564,713 |
2016 | $0 | $85,456 | $0 | $85,456 | $85,456 |
2015 | $0 | $78,400 | $0 | $78,400 | $78,400 |
2014 | $0 | $78,400 | $0 | $78,400 | $78,400 |
Deed and Sales History
1 | 03/11/2016 | SWD | Statutory Warranty Deed | BOLLINGER CONSTRUCTION LLC | TRANTOW MICHAEL & LYNN | | | $115,000.00 | 169275 | 2433689 |
2 | 10/09/2015 | SWD | Statutory Warranty Deed | | BOLLINGER CONSTRUCTION LLC | | | $185,800.00 | 167687 | 2426667 |
  | |
3 | 08/27/2012 | SWD | Statutory Warranty Deed | WENCO LLC | M & A LAND LLC | | | $1,200,000.00 | 0 | 2367026 |
4 | 07/20/2007 | O | Other | BA#2007-072 | | | | | 0 | 2261165 |
5 | 10/12/2006 | O | Other | BLA 2006-043 | | | | | 0 | 2239764 |
6 | 10/12/2006 | O | Other | BA 2006-043 | | | | | 0 | 2239764 |
7 | 12/29/2004 | SWD | Statutory Warranty Deed | | WENCO LLC | | | | 0 | 2190329 |
8 | 01/17/2006 | O | Other | SURVEY | | 47 | 115 | | 0 | |
Payout Agreement
No payout information available.. |