Property
Account |
| Property ID: | 64820 | Abbreviated Legal Description: | THE COTTAGES AT SADDLE ROCK BLOCK 2 LOT 5 0.0500 ACRES |
| Geographic ID: | 222022835100 | Agent Code: | |
| Type: | Real | | |
| Tax Area: | 802 - W 246 F1 WB WVFD | Land Use Code | 11 |
| Open Space: | N | DFL | N |
| Historic Property: | N | Remodel Property: | N |
| Multi-Family Redevelopment: | N | | |
| Township: | | Section: | |
| Range: | | Legal Acres: | 0.0500 |
Location |
| Address: | 2131 ROPER LN WENATCHEE, WA 98801 | Mapsco: | |
| Neighborhood: | Cycle 1 Wenatchee Div 2 Res | Map ID: | 1WEN102R01 |
| Neighborhood CD: | 1WEN102R01 |
Owner |
| Name: | CAZARES IVAN M & ALBORADA MATA CAZARES | Owner ID: | 115932 |
| Mailing Address: | 1425 184TH ST SW LYNNWOOD, WA 98037 | % Ownership: | % |
| | | Exemptions: | |
Pay Tax Due
Select the appropriate checkbox next to the year to be paid. Multiple years may be selected.
*Convenience Fee not included
Taxes and Assessment Details
Values
| (+) Improvement Homesite Value: | + | N/A | |
| (+) Improvement Non-Homesite Value: | + | N/A | |
| (+) Land Homesite Value: | + | N/A | |
| (+) Land Non-Homesite Value: | + | N/A | Ag / Timber Use Value |
| (+) Curr Use (HS): | + | N/A | N/A |
| (+) Curr Use (NHS): | + | N/A | N/A |
| | | -------------------------- | |
| (=) Market Value: | = | N/A | |
| (–) Productivity Loss: | – | N/A | |
| | | -------------------------- | |
| (=) Subtotal: | = | N/A | |
| (+) Senior Appraised Value: | + | N/A | |
| (+) Non-Senior Appraised Value: | + | N/A | |
| | | -------------------------- | |
| (=) Total Appraised Value: | = | N/A | |
| (–) Senior Exemption Loss: | – | N/A | |
| (–) Exemption Loss: | – | N/A | |
| | | -------------------------- | |
| (=) Taxable Value: | = | N/A | |
Taxing Jurisdiction
| Owner: | CAZARES IVAN M & ALBORADA MATA CAZARES | | |
| % Ownership: | 100.0000000000% | | |
| Total Value: | N/A | | |
| Tax Area: | 802 - W 246 F1 WB WVFD |
| 010170 | Chelan County | N/A | N/A | N/A | N/A | | |
| 155001 | Veteran's Relief | N/A | N/A | N/A | N/A | | |
| 160001 | Mental Health | N/A | N/A | N/A | N/A | | |
| 656101 | Fire No 1 General | N/A | N/A | N/A | N/A | | |
| 656110 | Fire No 1 Bond | N/A | N/A | N/A | N/A | | |
| 644001 | Regional Library | N/A | N/A | N/A | N/A | | |
| 652025 | State School 2 Refund | N/A | N/A | N/A | N/A | | |
| 693041 | Wenatchee General | N/A | N/A | N/A | N/A | | |
| 107001 | Flood Control Zone | N/A | N/A | N/A | N/A | | |
| 656201 | Wenatchee Valley Fire Department | N/A | N/A | N/A | N/A | | |
| 671101 | Port General | N/A | N/A | N/A | N/A | | |
| 654201 | Wenatchee SD 246 General | N/A | N/A | N/A | N/A | | |
| 654210 | Wenatchee SD 246 Bond | N/A | N/A | N/A | N/A | | |
| 652001 | State School Refund | N/A | N/A | N/A | N/A | | |
| 652003 | State School 2 | N/A | N/A | N/A | N/A | | |
| 652005 | State School | N/A | N/A | N/A | N/A | | |
| | Total Tax Rate: | N/A | | | | | |
| | | | | Taxes w/Current Exemptions: | N/A | | |
| | | | | Taxes w/o Exemptions: | N/A | | |
Improvement / Building
| Improvement #1: | RESIDENTIAL | State Code: | 11 | 1014.0 sqft | Value: | N/A |
| Exterior Wall: | Plywood or Hrdbrd | Heating/Cooling: | Heat Pump | | Number of Bathrooms: | 1.5 | Number of Bedrooms: | 2 |
|
| | Type | Description | Class CD | Sub Class CD | Year Built | Area |
| | MA | Main | FAIR | 1 STY | 2013 | 1014.0 |
| | DECK | Open Wood Deck | AVERAGE | * | 2013 | 102.0 |
Sketch
Property Image
Land
| 1 | SV 65K | SITE VALUE $65,000 | 0.0500 | 2178.00 | 0.00 | 0.00 | 1.00 | N/A | N/A |
Roll Value History
| 2026 | N/A | N/A | N/A | N/A | N/A |
| 2025 | $236,638 | $93,600 | $0 | $330,238 | $330,238 |
| 2024 | $200,107 | $69,550 | $0 | $269,657 | $269,657 |
| 2023 | $237,577 | $69,888 | $0 | $307,465 | $307,465 |
| 2022 | $190,036 | $83,200 | $0 | $273,236 | $273,236 |
| 2021 | $182,168 | $54,912 | $0 | $237,080 | $237,080 |
| 2020 | $151,312 | $62,400 | $0 | $213,712 | $213,712 |
| 2019 | $140,085 | $54,600 | $0 | $194,685 | $194,685 |
| 2018 | $126,067 | $54,240 | $0 | $180,307 | $180,307 |
| 2017 | $116,236 | $54,825 | $0 | $171,061 | $171,061 |
| 2016 | $96,128 | $54,825 | $0 | $150,953 | $150,953 |
| 2015 | $102,258 | $42,500 | $0 | $144,758 | $144,758 |
| 2014 | $100,386 | $42,500 | $0 | $142,886 | $142,886 |
Deed and Sales History
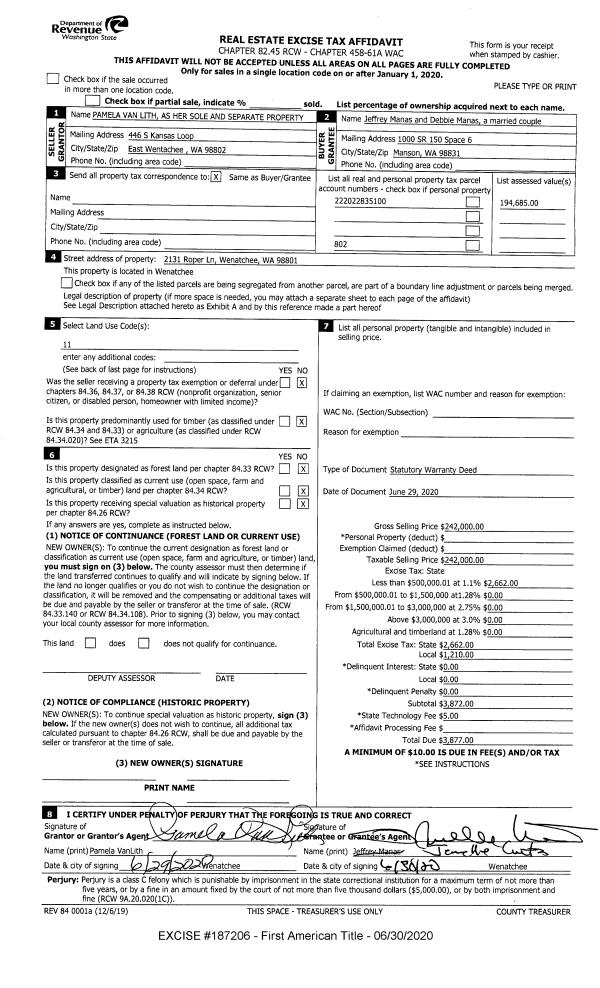
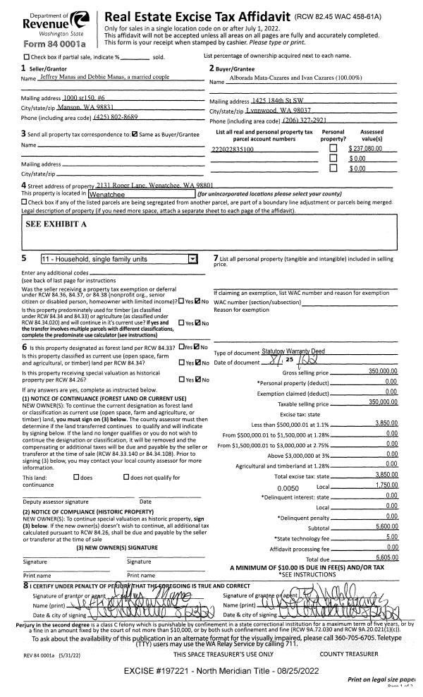
| 1 | 08/25/2022 | SWD | Statutory Warranty Deed | MANAS JEFFREY & DEBBIE | CAZARES IVAN M & ALBORADA MATA CAZARES | | | $350,000.00 | 197221 | 25724444 |
| 2 | 06/30/2020 | SWD | Statutory Warranty Deed | VAN LITH PAMELA | MANAS JEFFREY & DEBBIE | | | $242,000.00 | 187206 | 2518806 |
| 3 | 11/30/2017 | SWD | Statutory Warranty Deed | VZS PROPERTIES LLC | VAN LITH PAMELA | | | $189,900.00 | 176976 | 2469576 |
| 4 | 03/26/2014 | SWD | Statutory Warranty Deed | SADDLE ROCK VIEW LLC | VZS PROPERTIES LLC | | | $275,000.00 | 161696 | 2398173 |
|   | |
| 5 | 04/20/2012 | O | Other | CITY OF WENATCHEE | SADDLE ROCK VIEW LLC | | | | 0 | 2359424 |
| 6 | 06/28/2011 | SWD | Statutory Warranty Deed | GATES CHARLES E | SADDLE ROCK VIEW LLC | | | $15,000.00 | 0 | 2344987 |
| 7 | 10/31/2008 | WD | Warranty Deed | KAISER JOAN T | | | | | 0 | 2292516 |
| 8 | 11/07/2006 | W | Warranty Deed | KAISER JOAN T | SADDLE ROCK VIEW LLC | | | | 0 | 2241910 |
| 9 | 11/01/2006 | W | Warranty Deed | | | | | $1,414,300.00 | 0 | 2241910 |
| 10 | 12/05/2006 | Q | Quit Claim Deed | | JOAN T KAISER | | | | 0 | 2219728 |
| 11 | 01/31/2006 | O | Other | KAISER JOAN | DIEDE JOHN | | | | 0 | 2219727 |
| 12 | 01/31/2006 | O | Other | DIEDE JOHN | KAISER JOAN | | | | 0 | 2219726 |
| 13 | 01/31/2006 | O | Other | DIEDE JOHN | KAISER JOAN | | | | 0 | 2219725 |
| 14 | 12/18/1997 | O | Other | GATES CHARLES | LOVITT MINING | | | | 0 | 2017134 |
| 15 | 08/06/1996 | Q | Quit Claim Deed | | | 0 | 0 | | 0 | |
| 16 | 01/15/1993 | Q | Quit Claim Deed | GATES CHARLES E | DIEDE JOHN JR | 986 | 1552 | | 0 | |
| 17 | 06/20/1991 | O | Other | KISER WILLIAM A | COX HARRIETT E | 950 | 1434 | | 0 | |
| 18 | 07/13/1956 | W | Warranty Deed | | DIEDE JOHN JR | 556 | 198 | | 0 | |
| 19 | 08/06/1985 | REF | Conversion Code Only | SURVEY | BK 18 PG 76 | 0 | 0 | | 0 | |
Payout Agreement
| No payout information available.. |