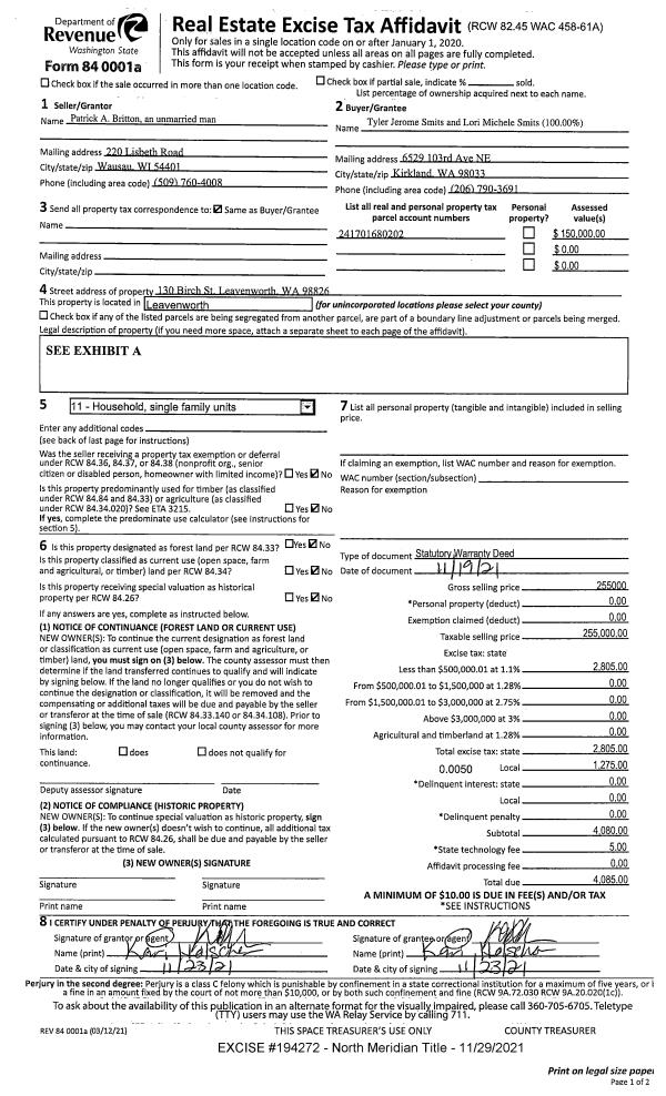
| 1 | 11/29/2021 | SWD | Statutory Warranty Deed | BRITTON PATRICK | SMITS TYLER J & LORI M | | | $255,000.00 | 194272 | 2557587 |
| 2 | 11/30/2021 | DC | Death Certificate | BRITTON PATRICK A & BRENDA J | BRITTON PATRICK | | | | 0 | UNRECORDED |
| 3 | 12/28/2012 | SWD | Statutory Warranty Deed | JAMISON PAMELA M & ROBERT T | BRITTON PATRICK A & BRENDA J | | | $77,000.00 | 157393 | 2374182 |
| 4 | 09/05/2003 | SWD | Statutory Warranty Deed | | JAMISON PAMELA M & ROBERT T | | | $150,000.00 | 11967900 | 2154346 |
|   | |
| 5 | 09/05/2003 | W | Warranty Deed | | JAMISON PAMELA M | | | | 0 | 2154346 |
| 6 | 10/11/2000 | W | Warranty Deed | | LYNDA L PETERSON | | | | 0 | 2082567 |
| 7 | 10/11/2000 | SWD | Statutory Warranty Deed | SHARON RAYFIELD | LYNDA PETERSON | | | | 0 | 2082223 |
| 8 | 10/18/2000 | O | Other | | | | | | 10770800 | 2082567 |
| 9 | 10/11/2000 | PR | Personal Representatives Deed | | PETERSON LYNDA L | | | $110,000.00 | 10763800 | 2082223 |
|   | |
| 10 | | OT | Conversion Code Only | | MYRTLE M MAYFIELD | 0 | 0 | | 0 | |