Property
Account |
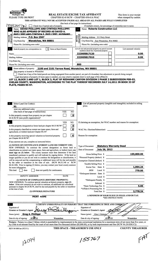
Property ID: | 63979 | Abbreviated Legal Description: | REDHAWK CANYON DIVISION 1 PHASE 2 BLOCK 2 LOT 12 0.2000 ACRES |
Geographic ID: | 222005817120 | Agent Code: | |
Type: | Real | | |
Tax Area: | 802 - W 246 F1 WB WVFD | Land Use Code | 11 |
Open Space: | N | DFL | N |
Historic Property: | N | Remodel Property: | N |
Multi-Family Redevelopment: | N | | |
Township: | 22N | Section: | 05 |
Range: | 20EWM | Legal Acres: | 0.2000 |
Location |
Address: | 2100 YARROW RD WENATCHEE, WA 98801 | Mapsco: | |
Neighborhood: | Cycle 2 Wenatchee mid div 1 RES | Map ID: | 2WENM01R01 |
Neighborhood CD: | 2WENM01R01 |
Owner |
Name: | CINDY GOODFELLOW TRUST | Owner ID: | 111832 |
Mailing Address: | C/O CINDY GOODFELLOW TRUSTEE 2100 YARROW RD WENATCHEE, WA 98801 | % Ownership: | % |
| | Exemptions: | |
Pay Tax Due
There is currently No Amount Due on this property.
Taxes and Assessment Details
Values
(+) Improvement Homesite Value: | + | $0 | |
(+) Improvement Non-Homesite Value: | + | $520,199 | |
(+) Land Homesite Value: | + | $0 | |
(+) Land Non-Homesite Value: | + | $128,000 | |
(+) Curr Use (HS): | + | $0 | $0 |
(+) Curr Use (NHS): | + | $0 | $0 |
| | -------------------------- | |
(=) Market Value: | = | $648,199 | |
(–) Productivity Loss: | – | $0 | |
| | -------------------------- | |
(=) Subtotal: | = | $648,199 | |
(+) Senior Appraised Value: | + | $0 | |
(+) Non-Senior Appraised Value: | + | $648,199 | |
| | -------------------------- | |
(=) Total Appraised Value: | = | $648,199 | |
(–) Senior Exemption Loss: | – | $0 | |
(–) Exemption Loss: | – | $0 | |
| | -------------------------- | |
(=) Taxable Value: | = | $648,199 | |
Taxing Jurisdiction
Owner: | CINDY GOODFELLOW TRUST | | |
% Ownership: | 100.0000000000% | | |
Total Value: | N/A | | |
Tax Area: | 802 - W 246 F1 WB WVFD |
010170 | Chelan County | N/A | N/A | N/A | N/A | | |
155001 | Veteran's Relief | N/A | N/A | N/A | N/A | | |
160001 | Mental Health | N/A | N/A | N/A | N/A | | |
656101 | Fire No 1 General | N/A | N/A | N/A | N/A | | |
656110 | Fire No 1 Bond | N/A | N/A | N/A | N/A | | |
644001 | Regional Library | N/A | N/A | N/A | N/A | | |
652025 | State School 2 Refund | N/A | N/A | N/A | N/A | | |
693041 | Wenatchee General | N/A | N/A | N/A | N/A | | |
107001 | Flood Control Zone | N/A | N/A | N/A | N/A | | |
656201 | Wenatchee Valley Fire Department | N/A | N/A | N/A | N/A | | |
671101 | Port General | N/A | N/A | N/A | N/A | | |
654201 | Wenatchee SD 246 General | N/A | N/A | N/A | N/A | | |
654210 | Wenatchee SD 246 Bond | N/A | N/A | N/A | N/A | | |
652001 | State School Refund | N/A | N/A | N/A | N/A | | |
652003 | State School 2 | N/A | N/A | N/A | N/A | | |
652005 | State School | N/A | N/A | N/A | N/A | | |
| Total Tax Rate: | N/A | | | | | |
| | | | Taxes w/Current Exemptions: | N/A | | |
| | | | Taxes w/o Exemptions: | N/A | | |
Improvement / Building
Improvement #1: | RESIDENTIAL | State Code: | 11 | 2264.0 sqft | Value: | $520,199 |
Exterior Wall: | Plywood or Hrdbrd | Fireplace: | Single 1 Story | Heating/Cooling: | Heat Pump | Number of Bathrooms: | 2 | Number of Bedrooms: | 3 |   |   |
|
| Type | Description | Class CD | Sub Class CD | Year Built | Area |
| MA | Main | AVERAGE | 1.5 ST FIN | 2013 | 2264.0 |
| GAR-BI | Built-In Garage | AVERAGE | 1.5 ST FIN | 2013 | 674.0 |
| PP-OPEN | Open Concrete Porch | GOOD | * | 2013 | 201.0 |
| PP-OPEN | Open Concrete Porch | GOOD | * | 2013 | 224.0 |
| PP-OPEN | Open Concrete Porch | GOOD | * | 2013 | 104.0 |
Sketch
Property Image
Land
1 | SV 100K | SITE VALUE $100,000 | 0.2000 | 8712.00 | 0.00 | 0.00 | 1.00 | $128,000 | $0 |
Roll Value History
2025 | N/A | N/A | N/A | N/A | N/A |
2024 | $486,784 | $121,000 | $0 | $607,784 | $607,784 |
2023 | $711,191 | $90,300 | $0 | $801,491 | $801,491 |
2022 | $491,923 | $99,330 | $0 | $591,253 | $591,253 |
2021 | $377,348 | $77,000 | $0 | $454,348 | $454,348 |
2020 | $381,240 | $77,000 | $0 | $458,240 | $458,240 |
2019 | $335,123 | $77,000 | $0 | $412,123 | $412,123 |
2018 | $346,608 | $70,000 | $0 | $416,608 | $416,608 |
2017 | $311,839 | $74,900 | $0 | $386,739 | $386,739 |
2016 | $305,411 | $70,000 | $0 | $375,411 | $375,411 |
2015 | $252,295 | $87,500 | $0 | $339,795 | $339,795 |
2014 | $223,346 | $87,500 | $0 | $310,846 | $310,846 |
2013 | $190,295 | $70,000 | $0 | $260,295 | $260,295 |
2012 | $0 | $70,000 | $0 | $70,000 | $70,000 |
2011 | $0 | $0 | $0 | $0 | $0 |
Deed and Sales History
1 | 10/07/2019 | SWD | Statutory Warranty Deed | DE MESTRE CAMERON J ETAL | CINDY GOODFELLOW TRUST | | | $473,900.00 | 184549 | 2503862 |
2 | 11/16/2016 | SWD | Statutory Warranty Deed | DUKARIC JOHN I & CHRISTY L | DE MESTRE CAMERON J ETAL | | | $389,000.00 | 172293 | 2447988 |
3 | 01/03/2014 | SWD | Statutory Warranty Deed | STEELE SHARI K | DUKARIC JOHN I & CHRISTY L | | | $349,900.00 | 161097 | 2395076 |
4 | 01/30/2013 | SWD | Statutory Warranty Deed | ROBERTS CONSTRUCTION LLC | STEELE SHARI K | | | $322,500.00 | 157735 | 2376016 |
5 | 07/31/2012 | SWD | Statutory Warranty Deed | PHILLIPPI DAVID ETAL | ROBERTS CONSTRUCTION LLC | | | $155,800.00 | 155767 | 2365123 |
  | |
6 | 05/11/2009 | Q | Quit Claim Deed | PHILLIPPI LAND LLC | PHILLIPPI DAVID ETAL | | | | 0 | 2302820 |
Payout Agreement
No payout information available.. |