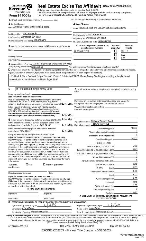
Property
Account |
Property ID: | 63968 | Abbreviated Legal Description: | REDHAWK CANYON DIVISION 1 PHASE 2 BLOCK 3 LOT 1, 0.1800 ACRES |
Geographic ID: | 222005817010 | Agent Code: | |
Type: | Real | | |
Tax Area: | 802 - W 246 F1 WB WVFD | Land Use Code | |
Open Space: | N | DFL | N |
Historic Property: | N | Remodel Property: | N |
Multi-Family Redevelopment: | N | | |
Township: | 22N | Section: | 05 |
Range: | 20EWM | Legal Acres: | 0.1800 |
Location |
Address: | 2101 YARROW RD WENATCHEE, WA 98801 | Mapsco: | |
Neighborhood: | Cycle 2 Wenatchee mid div 1 RES | Map ID: | 2WENM01R01 |
Neighborhood CD: | 2WENM01R01 |
Owner |
Name: | MOTT DOUGLAS S & LEE ANN | Owner ID: | 83704 |
Mailing Address: | 2101 YARROW RD WENATCHEE, WA 98801 | % Ownership: | % |
| | Exemptions: | |
Pay Tax Due
Select the appropriate checkbox next to the year to be paid. Multiple years may be selected.
*Convenience Fee not included
Taxes and Assessment Details
Values
(+) Improvement Homesite Value: | + | $0 | |
(+) Improvement Non-Homesite Value: | + | $482,366 | |
(+) Land Homesite Value: | + | $0 | |
(+) Land Non-Homesite Value: | + | $121,000 | |
(+) Curr Use (HS): | + | $0 | $0 |
(+) Curr Use (NHS): | + | $0 | $0 |
| | -------------------------- | |
(=) Market Value: | = | $603,366 | |
(–) Productivity Loss: | – | $0 | |
| | -------------------------- | |
(=) Subtotal: | = | $603,366 | |
(+) Senior Appraised Value: | + | $0 | |
(+) Non-Senior Appraised Value: | + | $603,366 | |
| | -------------------------- | |
(=) Total Appraised Value: | = | $603,366 | |
(–) Senior Exemption Loss: | – | $0 | |
(–) Exemption Loss: | – | $0 | |
| | -------------------------- | |
(=) Taxable Value: | = | $603,366 | |
Taxing Jurisdiction
Owner: | MOTT DOUGLAS S & LEE ANN | | |
% Ownership: | 100.0000000000% | | |
Total Value: | $603,366 | | |
Tax Area: | 802 - W 246 F1 WB WVFD |
010170 | Chelan County | 0.7131947979 | $603,366 | $603,366 | $430.32 | | |
155001 | Veteran's Relief | 0.0131417976 | $603,366 | $603,366 | $7.93 | | |
160001 | Mental Health | 0.0178579654 | $603,366 | $603,366 | $10.77 | | |
656101 | Fire No 1 General | 0.0000000000 | $603,366 | $603,366 | $0.00 | | |
656110 | Fire No 1 Bond | 0.0000000000 | $603,366 | $603,366 | $0.00 | | |
644001 | Regional Library | 0.2534738555 | $603,366 | $603,366 | $152.94 | | |
652025 | State School 2 Refund | 0.0000512608 | $603,366 | $603,366 | $0.03 | | |
693041 | Wenatchee General | 0.9341346416 | $603,366 | $603,366 | $563.63 | | |
107001 | Flood Control Zone | 0.0399650208 | $603,366 | $603,366 | $24.11 | | |
656201 | Wenatchee Valley Fire Department | 1.0000000000 | $603,366 | $603,366 | $603.37 | | |
671101 | Port of Chelan County | 0.1575963345 | $603,366 | $603,366 | $95.09 | | |
654201 | Wenatchee SD 246 General | 1.6756748662 | $603,366 | $603,366 | $1,011.05 | | |
654210 | Wenatchee SD 246 Bond | 0.7351909486 | $603,366 | $603,366 | $443.59 | | |
652001 | State School Refund | 0.0000948042 | $603,366 | $603,366 | $0.06 | | |
652003 | State School 2 | 0.8859835425 | $603,366 | $603,366 | $534.57 | | |
652005 | State School | 1.6474423412 | $603,366 | $603,366 | $994.01 | | |
| Total Tax Rate: | 8.0738021768 | | | | | |
| | | | Taxes w/Current Exemptions: | $4,871.47 | | |
| | | | Taxes w/o Exemptions: | $4,871.47 | | |
Improvement / Building
Improvement #1: | RESIDENTIAL | State Code: | 11 | 2302.8 sqft | Value: | $482,366 |
Exterior Wall: | Plywood or Hrdbrd | Heating/Cooling: | Heat Pump | Number of Bathrooms: | 2.5 | Number of Bedrooms: | 4 |
|
| Type | Description | Class CD | Sub Class CD | Year Built | Area |
| MA | Main | AVERAGE | 1.5 ST FIN | 2012 | 2302.8 |
| GAR-BI | Built-In Garage | AVERAGE | 1.5 ST FIN | 2012 | 753.0 |
| PP-OPEN | Open Concrete Porch | GOOD | * | 2012 | 400.9 |
| PP-OPEN | Open Concrete Porch | GOOD | * | 2012 | 56.0 |
| CP-G | Carport/Patio Cover Gable Roof | GOOD | 1 STY | 2012 | 192.0 |
Sketch
Property Image
Land
1 | SV 100K | SITE VALUE $100,000 | 0.1800 | 7840.80 | 0.00 | 0.00 | 1.00 | $121,000 | $0 |
Roll Value History
2025 | N/A | N/A | N/A | N/A | N/A |
2024 | $482,366 | $121,000 | $0 | $603,366 | $603,366 |
2023 | $704,812 | $90,300 | $0 | $795,112 | $795,112 |
2022 | $486,874 | $99,330 | $0 | $586,204 | $586,204 |
2021 | $373,381 | $77,000 | $0 | $450,381 | $450,381 |
2020 | $378,385 | $77,000 | $0 | $455,385 | $455,385 |
2019 | $336,042 | $77,000 | $0 | $413,042 | $413,042 |
2018 | $342,908 | $70,000 | $0 | $412,908 | $412,908 |
2017 | $308,637 | $74,900 | $0 | $383,537 | $383,537 |
2016 | $300,497 | $70,000 | $0 | $370,497 | $370,497 |
2015 | $250,770 | $87,500 | $0 | $338,270 | $338,270 |
2014 | $221,587 | $87,500 | $0 | $309,087 | $309,087 |
2013 | $179,364 | $70,000 | $0 | $249,364 | $249,364 |
2012 | $0 | $70,000 | $0 | $70,000 | $70,000 |
2011 | $0 | $0 | $0 | $0 | $0 |
Deed and Sales History
1 | 06/25/2024 | SWD | Statutory Warranty Deed | RISING RICHARD P & JUDITH W | MOTT DOUGLAS S & LEE ANN | | | $700,000.00 | 202753 | 2595789 |
2 | 06/25/2024 | AFF | Affidavit | | | | | | 0 | 2595782 |
3 | 12/03/2012 | SWD | Statutory Warranty Deed | ROBERTS CONSTRUCTION LLC | RISING RICHARD P & JUDITH W | | | $327,500.00 | 157074 | 2372581 |
4 | 07/31/2012 | SWD | Statutory Warranty Deed | PHILLIPPI DAVID ETAL | ROBERTS CONSTRUCTION LLC | | | $155,800.00 | 155767 | 2365123 |
  | |
5 | 05/11/2009 | Q | Quit Claim Deed | PHILLIPPI LAND LLC | PHILLIPPI DAVID ETAL | | | | 0 | 2302820 |
Payout Agreement
No payout information available.. |