Property
Account |
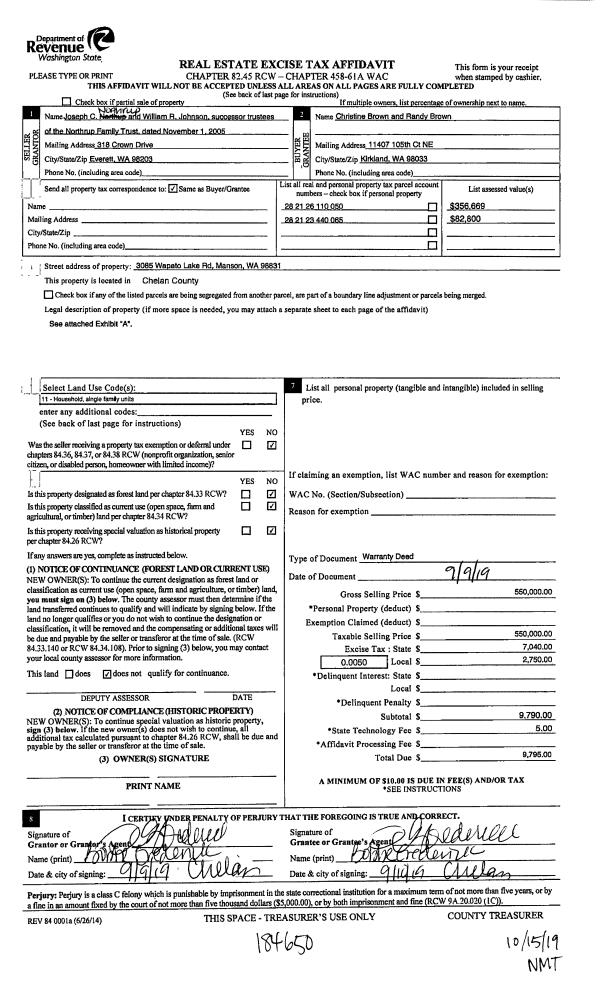
Property ID: | 63920 | Abbreviated Legal Description: | T 28N R 21EWM S 26, PT SESE, W OF RD, 0.5500 ACRES |
Geographic ID: | 282123440065 | Agent Code: | |
Type: | Real | | |
Tax Area: | 4 - 19 F5 CD4 H2 PK1 | Land Use Code | 11 |
Open Space: | N | DFL | N |
Historic Property: | N | Remodel Property: | N |
Multi-Family Redevelopment: | N | | |
Township: | 28N | Section: | 26, |
Range: | 21EWM | Legal Acres: | 0.5500 |
Location |
Address: | 3117 WAPATO LAKE RD MANSON, WA 98831 | Mapsco: | |
Neighborhood: | Cycle 4 Manson div 3 RES | Map ID: | 4MANS03R01 |
Neighborhood CD: | 4MANS03R01 |
Owner |
Name: | BROWN CHRISTINE & RANDY | Owner ID: | 111920 |
Mailing Address: | 3085 WAPATO LAKE RD MANSON, WA 98831 | % Ownership: | % |
| | Exemptions: | |
Pay Tax Due
Select the appropriate checkbox next to the year to be paid. Multiple years may be selected.
*Convenience Fee not included
Taxes and Assessment Details
Values
(+) Improvement Homesite Value: | + | $0 | |
(+) Improvement Non-Homesite Value: | + | $0 | |
(+) Land Homesite Value: | + | $0 | |
(+) Land Non-Homesite Value: | + | $124,200 | |
(+) Curr Use (HS): | + | $0 | $0 |
(+) Curr Use (NHS): | + | $0 | $0 |
| | -------------------------- | |
(=) Market Value: | = | $124,200 | |
(–) Productivity Loss: | – | $0 | |
| | -------------------------- | |
(=) Subtotal: | = | $124,200 | |
(+) Senior Appraised Value: | + | $0 | |
(+) Non-Senior Appraised Value: | + | $124,200 | |
| | -------------------------- | |
(=) Total Appraised Value: | = | $124,200 | |
(–) Senior Exemption Loss: | – | $0 | |
(–) Exemption Loss: | – | $0 | |
| | -------------------------- | |
(=) Taxable Value: | = | $124,200 | |
Taxing Jurisdiction
Owner: | BROWN CHRISTINE & RANDY | | |
% Ownership: | 100.0000000000% | | |
Total Value: | N/A | | |
Tax Area: | 4 - 19 F5 CD4 H2 PK1 |
110001 | County Road General | N/A | N/A | N/A | N/A | | |
010170 | Chelan County | N/A | N/A | N/A | N/A | | |
155001 | Veteran's Relief | N/A | N/A | N/A | N/A | | |
160001 | Mental Health | N/A | N/A | N/A | N/A | | |
657401 | Cemetery No 4 | N/A | N/A | N/A | N/A | | |
656501 | Fire No 5 General | N/A | N/A | N/A | N/A | | |
107001 | Flood Control Zone | N/A | N/A | N/A | N/A | | |
654021 | Manson SD 19 General | N/A | N/A | N/A | N/A | | |
654035 | Manson SD 19 Capital Projects | N/A | N/A | N/A | N/A | | |
652001 | State School Refund | N/A | N/A | N/A | N/A | | |
652003 | State School 2 | N/A | N/A | N/A | N/A | | |
652005 | State School | N/A | N/A | N/A | N/A | | |
652025 | State School 2 Refund | N/A | N/A | N/A | N/A | | |
692201 | Hospital No 2 General | N/A | N/A | N/A | N/A | | |
692210 | Hospital No 2 Bond | N/A | N/A | N/A | N/A | | |
692260 | Hospital No 2 EMS | N/A | N/A | N/A | N/A | | |
644001 | Regional Library | N/A | N/A | N/A | N/A | | |
675101 | Manson Park & Rec | N/A | N/A | N/A | N/A | | |
671101 | Port General | N/A | N/A | N/A | N/A | | |
| Total Tax Rate: | N/A | | | | | |
| | | | Taxes w/Current Exemptions: | N/A | | |
| | | | Taxes w/o Exemptions: | N/A | | |
Improvement / Building
Sketch
No sketches available for this property. |
Property Image
Land
1 | SV 90K | SITE VALUE $90,000 | 0.5500 | 23958.00 | 0.00 | 0.00 | 1.00 | $124,200 | $0 |
Roll Value History
2025 | N/A | N/A | N/A | N/A | N/A |
2024 | $0 | $139,500 | $0 | $139,500 | $139,500 |
2023 | $0 | $139,500 | $0 | $139,500 | $139,500 |
2022 | $0 | $135,000 | $0 | $135,000 | $135,000 |
2021 | $0 | $118,800 | $0 | $118,800 | $118,800 |
2020 | $0 | $95,400 | $0 | $95,400 | $95,400 |
2019 | $0 | $82,800 | $0 | $82,800 | $82,800 |
2018 | $0 | $87,300 | $0 | $87,300 | $87,300 |
2017 | $0 | $58,500 | $0 | $58,500 | $58,500 |
2016 | $0 | $60,300 | $0 | $60,300 | $60,300 |
2015 | $0 | $57,600 | $0 | $57,600 | $57,600 |
2014 | $0 | $57,600 | $0 | $57,600 | $57,600 |
2013 | $0 | $54,000 | $0 | $54,000 | $54,000 |
2012 | $0 | $58,500 | $0 | $58,500 | $58,500 |
2011 | $0 | $63,000 | $0 | $63,000 | $63,000 |
Deed and Sales History
1 | 10/15/2019 | W | Warranty Deed | NORTHRUP FAMILY TRUST | BROWN CHRISTINE & RANDY | | | $550,000.00 | 184650 | 2503687 |
  | |
2 | 06/19/1990 | SWD | Statutory Warranty Deed | OVERBAY JOSEPH C | NORTHRUP FAMILY TRUST | 931 | 574 | | 0 | |
Payout Agreement
No payout information available.. |