Property
Account |
| Property ID: | 62947 | Abbreviated Legal Description: | ISENHARTS ORCHARDS BLOCK 2 LOT 22 LOT 1 BLA 2019-020CH BSP 09-001 BSP08-001 BSP07-3CH-04 3.6400 ACRES |
| Geographic ID: | 272318627014 | Agent Code: | |
| Type: | Real | | |
| Tax Area: | 202 - CHELAN TIF CH 129 CD4 H2 F7 | Land Use Code | 11 |
| Open Space: | N | DFL | N |
| Historic Property: | N | Remodel Property: | N |
| Multi-Family Redevelopment: | N | | |
| Township: | 27N | Section: | 18 |
| Range: | 23EWM | Legal Acres: | 3.6400 |
Location |
| Address: | 106 S APPLE BLOSSOM DR CHELAN, WA 98816 | Mapsco: | |
| Neighborhood: | Cycle 4 Chelan city Div 4 COM | Map ID: | 4CHEC04C01 |
| Neighborhood CD: | 4CHEC04C01 |
Owner |
| Name: | CHELAN COUNTY HOSPITAL DISTRICT NO 2 | Owner ID: | 81089 |
| Mailing Address: | PO BOX 908 CHELAN, WA 98816-0908 | % Ownership: | % |
| | | Exemptions: | EX |
Pay Tax Due
Select the appropriate checkbox next to the year to be paid. Multiple years may be selected.
*Convenience Fee not included
Taxes and Assessment Details
Values
| (+) Improvement Homesite Value: | + | N/A | |
| (+) Improvement Non-Homesite Value: | + | N/A | |
| (+) Land Homesite Value: | + | N/A | |
| (+) Land Non-Homesite Value: | + | N/A | Ag / Timber Use Value |
| (+) Curr Use (HS): | + | N/A | N/A |
| (+) Curr Use (NHS): | + | N/A | N/A |
| | | -------------------------- | |
| (=) Market Value: | = | N/A | |
| (–) Productivity Loss: | – | N/A | |
| | | -------------------------- | |
| (=) Subtotal: | = | N/A | |
| (+) Senior Appraised Value: | + | N/A | |
| (+) Non-Senior Appraised Value: | + | N/A | |
| | | -------------------------- | |
| (=) Total Appraised Value: | = | N/A | |
| (–) Senior Exemption Loss: | – | N/A | |
| (–) Exemption Loss: | – | N/A | |
| | | -------------------------- | |
| (=) Taxable Value: | = | N/A | |
Taxing Jurisdiction
| Owner: | CHELAN COUNTY HOSPITAL DISTRICT NO 2 | | |
| % Ownership: | 100.0000000000% | | |
| Total Value: | N/A | | |
| Tax Area: | 202 - CHELAN TIF CH 129 CD4 H2 F7 |
| 010170 | Chelan County | N/A | N/A | N/A | N/A | | |
| 155001 | Veteran's Relief | N/A | N/A | N/A | N/A | | |
| 160001 | Mental Health | N/A | N/A | N/A | N/A | | |
| CNTYGEN L1 | COUNTY GENERAL LTIF1 | N/A | N/A | N/A | N/A | | |
| CNTYMH L1 | COUNTY MENTAL HEALTH LTIF1 | N/A | N/A | N/A | N/A | | |
| CNTYVET L1 | COUNTY VETERANS LTIF1 | N/A | N/A | N/A | N/A | | |
| 652003 | State School 2 | N/A | N/A | N/A | N/A | | |
| 652005 | State School | N/A | N/A | N/A | N/A | | |
| 652025 | State School 2 Refund | N/A | N/A | N/A | N/A | | |
| 107001 | Flood Control Zone | N/A | N/A | N/A | N/A | | |
| FLOOD L1 | FLOOD CONTROL ZONE LTIF1 | N/A | N/A | N/A | N/A | | |
| LIB L1 | LIBRARY LTIF1 | N/A | N/A | N/A | N/A | | |
| 671101 | Port General | N/A | N/A | N/A | N/A | | |
| PORT L1 | PORT OF CHELAN CNTY LTIF1 | N/A | N/A | N/A | N/A | | |
| 654100 | Lake Chelan SD 129 General | N/A | N/A | N/A | N/A | | |
| 654115 | Lake Chelan SD 129 Capital Projects | N/A | N/A | N/A | N/A | | |
| 652001 | State School Refund | N/A | N/A | N/A | N/A | | |
| 692201 | Hospital No 2 General | N/A | N/A | N/A | N/A | | |
| 692210 | Hospital No 2 Bond | N/A | N/A | N/A | N/A | | |
| 692260 | Hospital No 2 EMS | N/A | N/A | N/A | N/A | | |
| H2EMS L1 | HOSPITAL 2 EMS LTIF1 | N/A | N/A | N/A | N/A | | |
| H2GEN L1 | HOSPITAL 2 GENERAL LTIF1 | N/A | N/A | N/A | N/A | | |
| 644001 | Regional Library | N/A | N/A | N/A | N/A | | |
| 657401 | Cemetery No 4 | N/A | N/A | N/A | N/A | | |
| CD4 L1 | CEMETERY 4 LTIF1 | N/A | N/A | N/A | N/A | | |
| 693011 | Chelan General | N/A | N/A | N/A | N/A | | |
| CHELAN L1 | CITY OF CHELAN LTIF1 | N/A | N/A | N/A | N/A | | |
| 656701 | Fire No 7 General | N/A | N/A | N/A | N/A | | |
| CCFD7 L1 | CHELAN COUNTY FIRE 7 LTIF1 | N/A | N/A | N/A | N/A | | |
| | Total Tax Rate: | N/A | | | | | |
| | | | | Taxes w/Current Exemptions: | N/A | | |
| | | | | Taxes w/o Exemptions: | N/A | | |
Improvement / Building
Sketch
| No sketches available for this property. |
Property Image
Land
| 1 | COM LAND | COMMERCIAL LAND | 3.6400 | 158558.40 | 0.00 | 0.00 | 0.00 | N/A | N/A |
Roll Value History
| 2026 | N/A | N/A | N/A | N/A | N/A |
| 2025 | $0 | $0 | $0 | $0 | $0 |
| 2024 | $0 | $0 | $0 | $0 | $0 |
| 2023 | $0 | $0 | $0 | $0 | $0 |
| 2022 | $0 | $0 | $0 | $0 | $0 |
| 2021 | $0 | $0 | $0 | $0 | $0 |
| 2020 | $0 | $0 | $0 | $0 | $0 |
| 2019 | $0 | $0 | $0 | $0 | $0 |
| 2018 | $0 | $0 | $0 | $0 | $0 |
| 2017 | $0 | $0 | $0 | $0 | $0 |
| 2016 | $0 | $0 | $0 | $0 | $0 |
| 2015 | $0 | $568,458 | $0 | $568,458 | $0 |
| 2014 | $0 | $568,458 | $0 | $568,458 | $0 |
| 2013 | $0 | $568,458 | $0 | $568,458 | $0 |
| 2012 | $0 | $568,458 | $0 | $568,458 | $0 |
| 2011 | $0 | $568,458 | $0 | $568,458 | $0 |
| 2010 | $0 | $568,458 | $0 | $568,458 | $0 |
| 2009 | $0 | $568,458 | $0 | $568,458 | $0 |
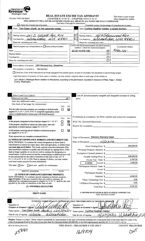
Deed and Sales History
| 1 | 02/25/2016 | CORR DEED | Correction Deed | NAUMES INC | CHELAN COUNTY HOSPITAL DISTRICT NO 2 | | | | 169090 | 2433025 |
| 2 | 10/30/2009 | SWD | Statutory Warranty Deed | NAUMES PROPERTIES LLC | CHELAN COUNTY HOSPITAL DISTRICT NO 2 | | | $4,089,868.00 | 147337 | 2313735 |
|   | |
| 3 | 11/04/1980 | SWD | Statutory Warranty Deed | NAUMES PROPERTIES LLC | NAUMES PROPERTIES LLC | 787 | 987 | | 0 | |
Payout Agreement
| No payout information available.. |