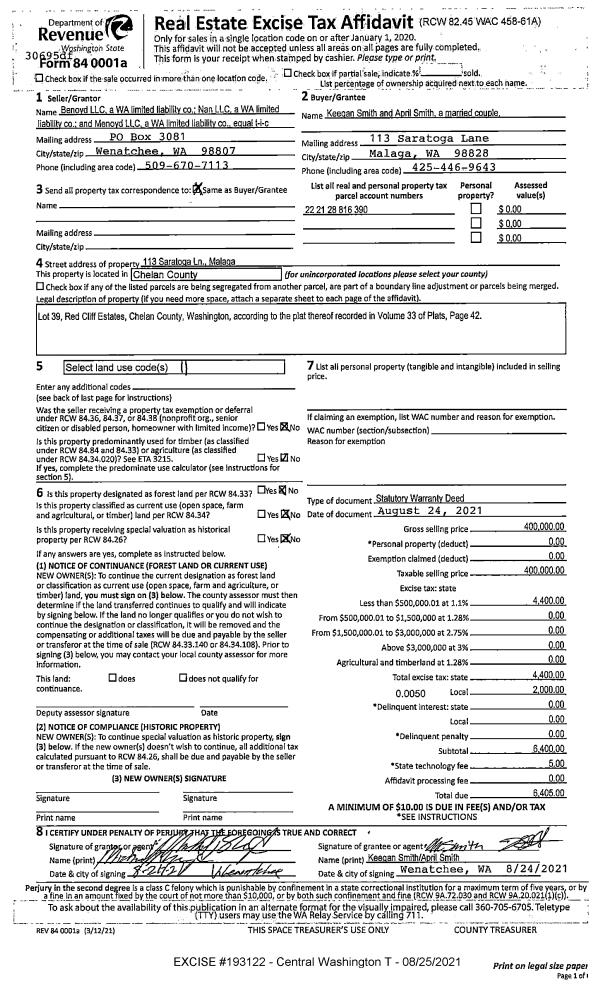
| 1 | 08/25/2021 | SWD | Statutory Warranty Deed | BENOYD LLC ETAL | SMITH KEEGAN J & APRIL R | | | $400,000.00 | 193122 | 2551531 |
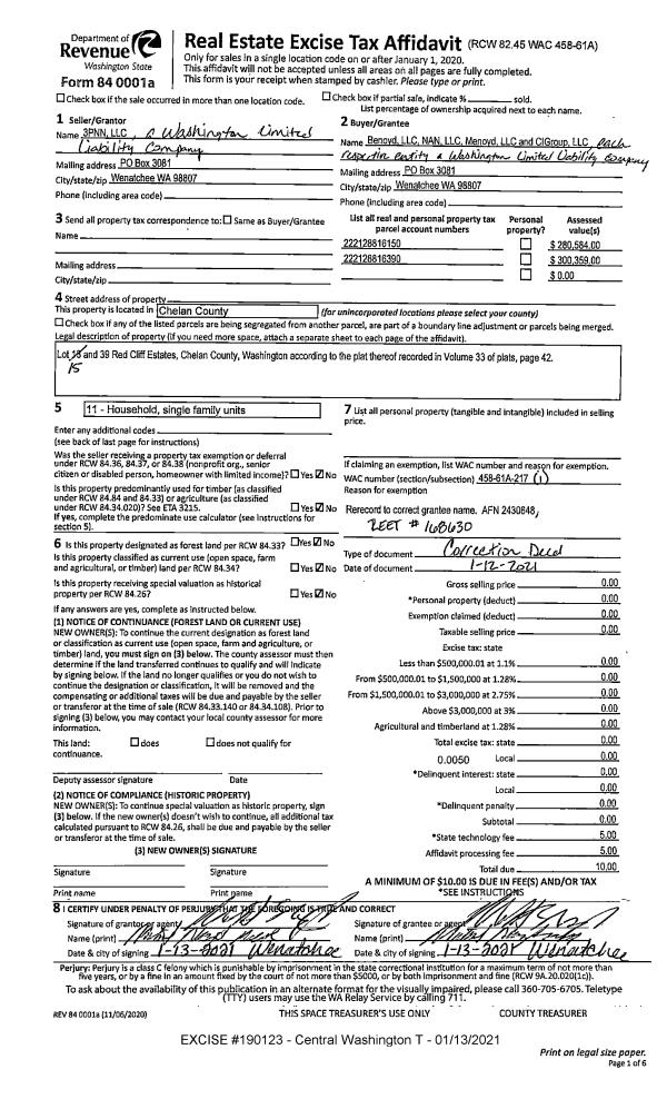
| 2 | 01/13/2021 | CORR DEED | Correction Deed | 3PNN LLC | BENOYD LLC ETAL | | | $0.00 | 190123 | 2534307 |
| 3 | 12/30/2015 | Q | Quit Claim Deed | 3PNN LLC | BENOYD LLC ETAL | | | | 168630 | 2430648 |
| 4 | 12/31/2015 | F | Foreclosure Deed | DOUBLE Z BUILDERS LLC | 3PNN LLC | | | | 168628 | 2430647 |
| 5 | 12/28/2012 | SWD | Statutory Warranty Deed | BNM HOLDINGS LLC | DOUBLE Z BUILDERS LLC | | | $200,000.00 | 157401 | 2374213 |
|   | |
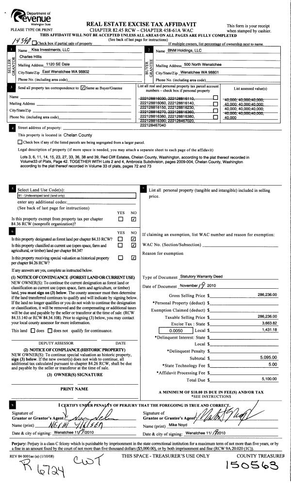
| 6 | 11/22/2010 | SWD | Statutory Warranty Deed | KISA INVESTMENTS LLC ETAL | BNM HOLDINGS LLC | | | $286,236.00 | 150563 | 2333508 |
|   | |
| 7 | 09/10/2007 | WD | Warranty Deed | ZACHER GREGORY &KAREN | KISA INVESTMENTS LLC ETAL | | | $825,000.00 | 145174 | 2265356 |