| 1 | 05/23/2014 | SWD | Statutory Warranty Deed | DOUBLE Z BUILDERS LLC | MILLER RENEA | | | $286,236.00 | 150563 | 2400819 |
| 2 | 12/28/2012 | SWD | Statutory Warranty Deed | BNM HOLDINGS LLC | DOUBLE Z BUILDERS LLC | | | $200,000.00 | 157401 | 2374213 |
|   | |
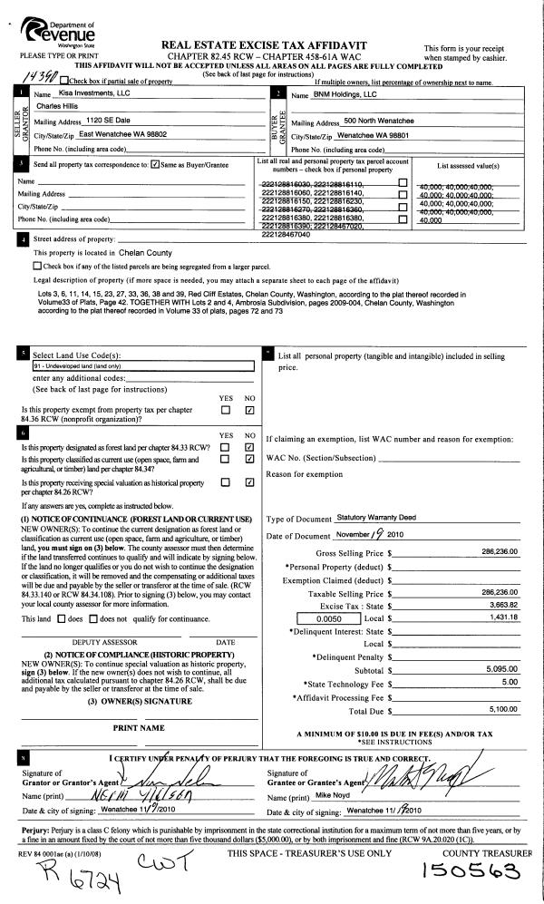
| 3 | 11/22/2010 | SWD | Statutory Warranty Deed | KISA INVESTMENTS LLC ETAL | BNM HOLDINGS LLC | | | $286,236.00 | 150563 | 2333508 |
|   | |
| 4 | 09/10/2007 | WD | Warranty Deed | ZACHER GREGORY &KAREN | KISA INVESTMENTS LLC ETAL | | | $825,000.00 | 145174 | 2265356 |