Property
Account |
| Property ID: | 62736 | Abbreviated Legal Description: | RED CLIFF ESTATES LOT 23 0.2900 ACRES |
| Geographic ID: | 222128816230 | Agent Code: | |
| Type: | Real | | |
| Tax Area: | 85 - 246 F1 WD2 WVFD | Land Use Code | 11 |
| Open Space: | N | DFL | N |
| Historic Property: | N | Remodel Property: | N |
| Multi-Family Redevelopment: | N | | |
| Township: | 22N | Section: | 28 |
| Range: | 21EWM | Legal Acres: | 0.2900 |
Location |
| Address: | 98 SARATOGA LN MALAGA, WA 98828 | Mapsco: | |
| Neighborhood: | Cycle 1 Malaga_riverside Div 2 Res | Map ID: | 1MALR02R01 |
| Neighborhood CD: | 1MALR02R01 |
Owner |
| Name: | GARIANO ERIN ETAL | Owner ID: | 120477 |
| Mailing Address: | 110 1ST ST WENATCHEE, WA 98801 | % Ownership: | % |
| | | Exemptions: | |
Pay Tax Due
Select the appropriate checkbox next to the year to be paid. Multiple years may be selected.
*Convenience Fee not included
Taxes and Assessment Details
Values
| (+) Improvement Homesite Value: | + | N/A | |
| (+) Improvement Non-Homesite Value: | + | N/A | |
| (+) Land Homesite Value: | + | N/A | |
| (+) Land Non-Homesite Value: | + | N/A | Ag / Timber Use Value |
| (+) Curr Use (HS): | + | N/A | N/A |
| (+) Curr Use (NHS): | + | N/A | N/A |
| | | -------------------------- | |
| (=) Market Value: | = | N/A | |
| (–) Productivity Loss: | – | N/A | |
| | | -------------------------- | |
| (=) Subtotal: | = | N/A | |
| (+) Senior Appraised Value: | + | N/A | |
| (+) Non-Senior Appraised Value: | + | N/A | |
| | | -------------------------- | |
| (=) Total Appraised Value: | = | N/A | |
| (–) Senior Exemption Loss: | – | N/A | |
| (–) Exemption Loss: | – | N/A | |
| | | -------------------------- | |
| (=) Taxable Value: | = | N/A | |
Taxing Jurisdiction
| Owner: | GARIANO ERIN ETAL | | |
| % Ownership: | 100.0000000000% | | |
| Total Value: | N/A | | |
| Tax Area: | 85 - 246 F1 WD2 WVFD |
| 110001 | County Road General | N/A | N/A | N/A | N/A | | |
| 010170 | Chelan County | N/A | N/A | N/A | N/A | | |
| 155001 | Veteran's Relief | N/A | N/A | N/A | N/A | | |
| 160001 | Mental Health | N/A | N/A | N/A | N/A | | |
| 656101 | Fire No 1 General | N/A | N/A | N/A | N/A | | |
| 656110 | Fire No 1 Bond | N/A | N/A | N/A | N/A | | |
| 652005 | State School | N/A | N/A | N/A | N/A | | |
| 652025 | State School 2 Refund | N/A | N/A | N/A | N/A | | |
| 107001 | Flood Control Zone | N/A | N/A | N/A | N/A | | |
| 656201 | Wenatchee Valley Fire Department | N/A | N/A | N/A | N/A | | |
| 644001 | Regional Library | N/A | N/A | N/A | N/A | | |
| 671101 | Port General | N/A | N/A | N/A | N/A | | |
| 654201 | Wenatchee SD 246 General | N/A | N/A | N/A | N/A | | |
| 654210 | Wenatchee SD 246 Bond | N/A | N/A | N/A | N/A | | |
| 652001 | State School Refund | N/A | N/A | N/A | N/A | | |
| 652003 | State School 2 | N/A | N/A | N/A | N/A | | |
| | Total Tax Rate: | N/A | | | | | |
| | | | | Taxes w/Current Exemptions: | N/A | | |
| | | | | Taxes w/o Exemptions: | N/A | | |
Improvement / Building
| Improvement #1: | RESIDENTIAL | State Code: | 11 | 1505.0 sqft | Value: | N/A |
| Exterior Wall: | Plywood or Hrdbrd | Heating/Cooling: | Heat Pump | | Number of Bathrooms: | 2 | Number of Bedrooms: | 3 |
|
| | Type | Description | Class CD | Sub Class CD | Year Built | Area |
| | BS-UFC8 | BSMT AREA 8” CONC | AVERAGE | 1 STY | 2016 | 952.0 |
| | BSMT-MF | BSMT FINISH - MINIMAL | AVERAGE | 1 STY | 2016 | 420.0 |
| | MA | Main | AVERAGE | 1.5 ST FIN | 2016 | 1505.0 |
| | DECK | Open Wood Deck | AVERAGE | * | 2016 | 78.0 |
| | DECK | Open Wood Deck | AVERAGE | * | 2016 | 168.0 |
| | PP-OPEN | Open Concrete Porch | AVERAGE | * | 2016 | 168.0 |
Sketch
Property Image
Land
| 1 | SV 90K | SITE VALUE $90,000 | 0.2900 | 12632.40 | 0.00 | 0.00 | 1.00 | N/A | N/A |
Roll Value History
| 2026 | N/A | N/A | N/A | N/A | N/A |
| 2025 | $278,558 | $75,168 | $0 | $353,726 | $353,726 |
| 2024 | $444,869 | $69,120 | $0 | $513,989 | $513,989 |
| 2023 | $449,455 | $69,120 | $0 | $518,575 | $518,575 |
| 2022 | $377,261 | $69,120 | $0 | $446,381 | $446,381 |
| 2021 | $360,642 | $44,064 | $0 | $404,706 | $404,706 |
| 2020 | $313,461 | $41,208 | $0 | $354,669 | $354,669 |
| 2019 | $304,596 | $38,380 | $0 | $342,976 | $342,976 |
| 2018 | $293,011 | $38,400 | $0 | $331,411 | $331,411 |
| 2017 | $239,134 | $38,400 | $0 | $277,534 | $277,534 |
| 2016 | $149,395 | $38,000 | $0 | $187,395 | $187,395 |
| 2015 | $0 | $41,760 | $0 | $41,760 | $41,760 |
| 2014 | $0 | $41,760 | $0 | $41,760 | $41,760 |
| 2013 | $0 | $36,000 | $0 | $36,000 | $36,000 |
| 2012 | $0 | $36,000 | $0 | $36,000 | $36,000 |
| 2011 | $0 | $36,000 | $0 | $36,000 | $36,000 |
| 2010 | $0 | $40,000 | $0 | $40,000 | $40,000 |
| 2009 | $0 | $40,000 | $0 | $40,000 | $40,000 |
Deed and Sales History
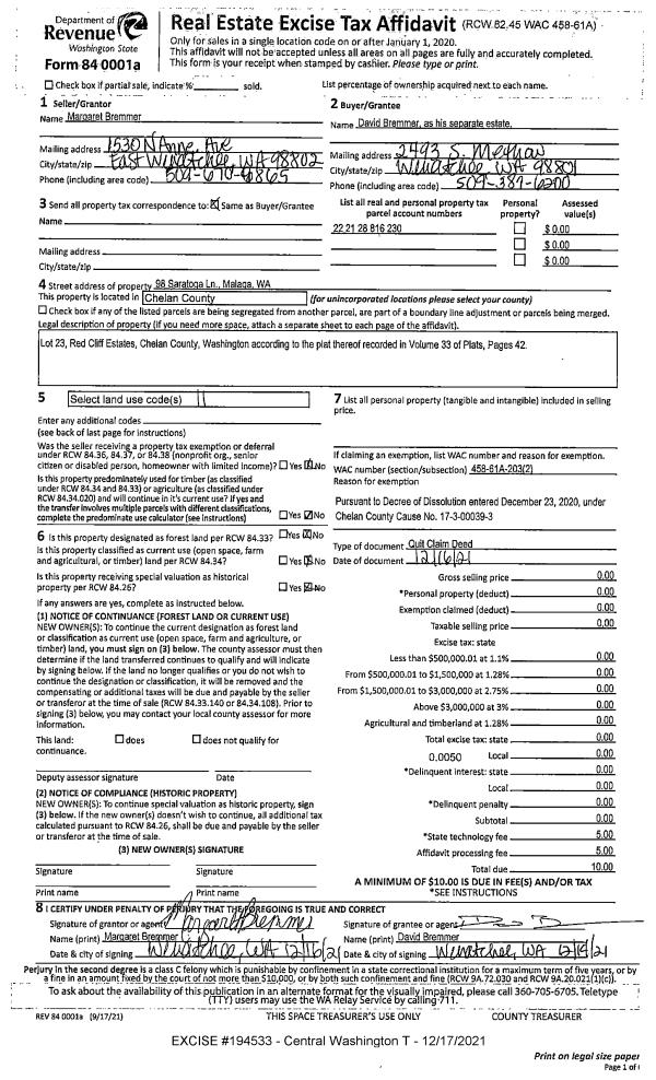
| 1 | 12/17/2021 | SWD | Statutory Warranty Deed | BREMMER DAVID F | GARIANO ERIN ETAL | | | $449,900.00 | 194534 | 2558892 |
| 2 | 12/17/2021 | Q | Quit Claim Deed | BREMMER MARGARET A | BREMMER DAVID F | | | $0.00 | 194533 | 2558891 |
| 3 | 01/22/2016 | SWD | Statutory Warranty Deed | BNM HOLDINGS LLC | BREMMER DAVID & MARGARET | | | $40,000.00 | 168808 | 2431562 |
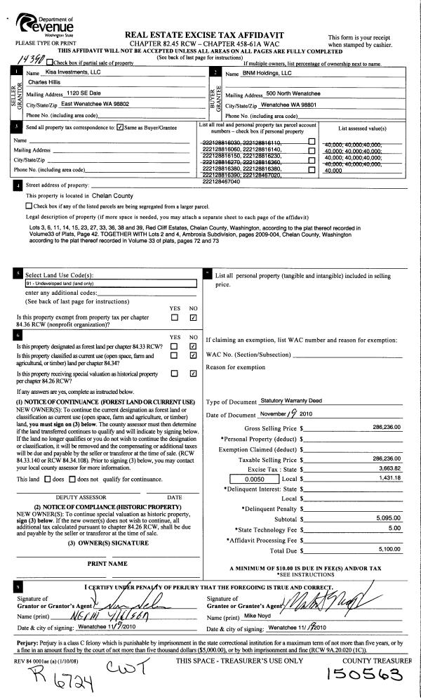
| 4 | 11/22/2010 | SWD | Statutory Warranty Deed | KISA INVESTMENTS LLC ETAL | BNM HOLDINGS LLC | | | $286,236.00 | 150563 | 2333508 |
|   | |
| 5 | 09/10/2007 | WD | Warranty Deed | ZACHER GREGORY &KAREN | KISA INVESTMENTS LLC ETAL | | | $825,000.00 | 145174 | 2265356 |
Payout Agreement
| No payout information available.. |