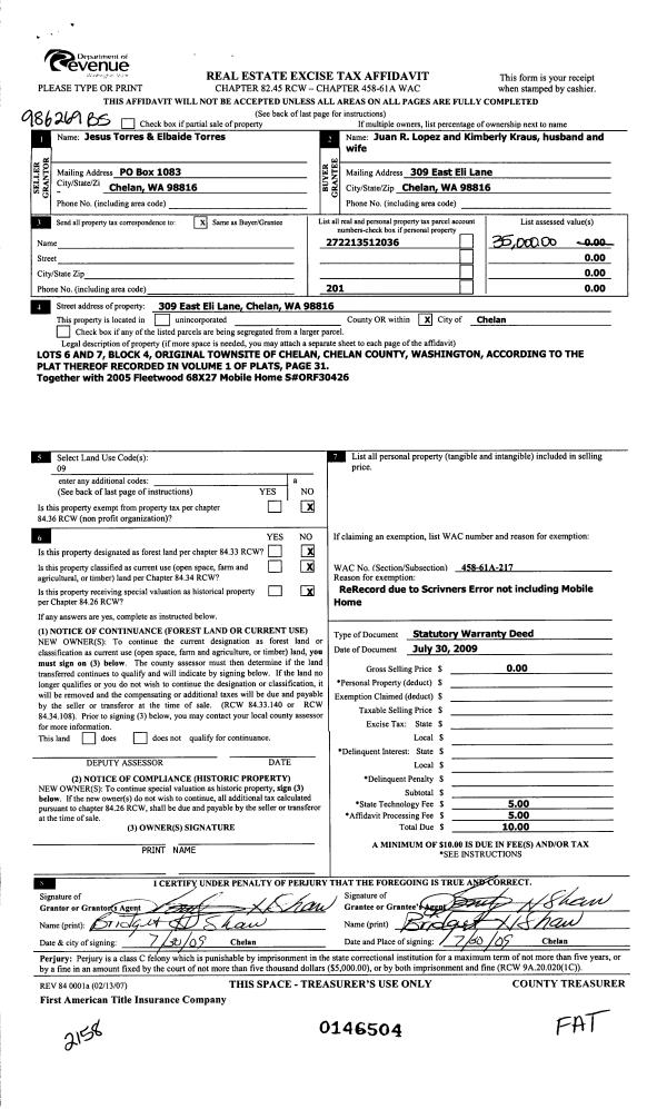
Property
Account |
| Property ID: | 62727 | Abbreviated Legal Description: | RED CLIFF ESTATES LOT 14, 0.2900 ACRES |
| Geographic ID: | 222128816140 | Agent Code: | |
| Type: | Real | | |
| Tax Area: | 85 - 246 F1 WD2 WVFD | Land Use Code | 11 |
| Open Space: | N | DFL | N |
| Historic Property: | N | Remodel Property: | N |
| Multi-Family Redevelopment: | N | | |
| Township: | 22N | Section: | 28 |
| Range: | 21EWM | Legal Acres: | 0.2900 |
Location |
| Address: | 143 AMBROSIA LN MALAGA, WA 98828 | Mapsco: | |
| Neighborhood: | Cycle 1 Malaga_riverside Div 2 Res | Map ID: | 1MALR02R01 |
| Neighborhood CD: | 1MALR02R01 |
Owner |
| Name: | MACIAS NEFTALI JR & ALYSSA | Owner ID: | 96045 |
| Mailing Address: | 143 AMBROSIA LN MALAGA, WA 98828 | % Ownership: | % |
| | | Exemptions: | |
Pay Tax Due
Select the appropriate checkbox next to the year to be paid. Multiple years may be selected.
*Convenience Fee not included
Taxes and Assessment Details
Values
| (+) Improvement Homesite Value: | + | N/A | |
| (+) Improvement Non-Homesite Value: | + | N/A | |
| (+) Land Homesite Value: | + | N/A | |
| (+) Land Non-Homesite Value: | + | N/A | Ag / Timber Use Value |
| (+) Curr Use (HS): | + | N/A | N/A |
| (+) Curr Use (NHS): | + | N/A | N/A |
| | | -------------------------- | |
| (=) Market Value: | = | N/A | |
| (–) Productivity Loss: | – | N/A | |
| | | -------------------------- | |
| (=) Subtotal: | = | N/A | |
| (+) Senior Appraised Value: | + | N/A | |
| (+) Non-Senior Appraised Value: | + | N/A | |
| | | -------------------------- | |
| (=) Total Appraised Value: | = | N/A | |
| (–) Senior Exemption Loss: | – | N/A | |
| (–) Exemption Loss: | – | N/A | |
| | | -------------------------- | |
| (=) Taxable Value: | = | N/A | |
Taxing Jurisdiction
| Owner: | MACIAS NEFTALI JR & ALYSSA | | |
| % Ownership: | 100.0000000000% | | |
| Total Value: | N/A | | |
| Tax Area: | 85 - 246 F1 WD2 WVFD |
| 110001 | County Road General | N/A | N/A | N/A | N/A | | |
| 010170 | Chelan County | N/A | N/A | N/A | N/A | | |
| 155001 | Veteran's Relief | N/A | N/A | N/A | N/A | | |
| 160001 | Mental Health | N/A | N/A | N/A | N/A | | |
| 656101 | Fire No 1 General | N/A | N/A | N/A | N/A | | |
| 656110 | Fire No 1 Bond | N/A | N/A | N/A | N/A | | |
| 652005 | State School | N/A | N/A | N/A | N/A | | |
| 652025 | State School 2 Refund | N/A | N/A | N/A | N/A | | |
| 107001 | Flood Control Zone | N/A | N/A | N/A | N/A | | |
| 656201 | Wenatchee Valley Fire Department | N/A | N/A | N/A | N/A | | |
| 644001 | Regional Library | N/A | N/A | N/A | N/A | | |
| 671101 | Port General | N/A | N/A | N/A | N/A | | |
| 654201 | Wenatchee SD 246 General | N/A | N/A | N/A | N/A | | |
| 654210 | Wenatchee SD 246 Bond | N/A | N/A | N/A | N/A | | |
| 652001 | State School Refund | N/A | N/A | N/A | N/A | | |
| 652003 | State School 2 | N/A | N/A | N/A | N/A | | |
| | Total Tax Rate: | N/A | | | | | |
| | | | | Taxes w/Current Exemptions: | N/A | | |
| | | | | Taxes w/o Exemptions: | N/A | | |
Improvement / Building
| Improvement #1: | RESIDENTIAL | State Code: | 11 | 1240.0 sqft | Value: | N/A |
| Exterior Wall: | Metal or Vinyl | Heating/Cooling: | Heat Pump | | Number of Bathrooms: | 2 | Number of Bedrooms: | 3 |
|
| | Type | Description | Class CD | Sub Class CD | Year Built | Area |
| | MA | Main | FAIR | 1 STY | 2014 | 1240.0 |
| | GAR-ATT | Attached Garage | FAIR | 1 STY | 2014 | 420.0 |
| | PP-OPEN | Open Concrete Porch | AVERAGE | * | 2014 | 50.0 |
| | PP-OPEN | Open Concrete Porch | GOOD | * | 2014 | 372.0 |
| Improvement #2: | RESIDENTIAL | State Code: | 11 | 0.0 sqft | Value: | N/A |
Sketch
Property Image
Land
| 1 | SV 90K | SITE VALUE $90,000 | 0.2900 | 12632.40 | 0.00 | 0.00 | 1.00 | N/A | N/A |
Roll Value History
| 2026 | N/A | N/A | N/A | N/A | N/A |
| 2025 | $201,152 | $75,168 | $0 | $276,320 | $276,320 |
| 2024 | $302,716 | $69,120 | $0 | $371,836 | $371,836 |
| 2023 | $305,902 | $69,120 | $0 | $375,022 | $375,022 |
| 2022 | $257,415 | $69,120 | $0 | $326,535 | $326,535 |
| 2021 | $243,394 | $44,064 | $0 | $287,458 | $287,458 |
| 2020 | $216,684 | $41,208 | $0 | $257,892 | $257,892 |
| 2019 | $209,180 | $38,380 | $0 | $247,560 | $247,560 |
| 2018 | $181,928 | $38,400 | $0 | $220,328 | $220,328 |
| 2017 | $154,176 | $38,400 | $0 | $192,576 | $192,576 |
| 2016 | $137,647 | $38,000 | $0 | $175,647 | $175,647 |
| 2015 | $126,158 | $41,760 | $0 | $167,918 | $167,918 |
| 2014 | $124,332 | $41,760 | $0 | $166,092 | $166,092 |
| 2013 | $0 | $36,000 | $0 | $36,000 | $36,000 |
| 2012 | $0 | $36,000 | $0 | $36,000 | $36,000 |
| 2011 | $0 | $36,000 | $0 | $36,000 | $36,000 |
| 2010 | $0 | $40,000 | $0 | $40,000 | $40,000 |
| 2009 | $0 | $40,000 | $0 | $40,000 | $40,000 |
Deed and Sales History
| 1 | 12/05/2014 | SWD | Statutory Warranty Deed | CAP INVESTMENTS LLC | MACIAS NEFTALI JR & ALYSSA | | | $205,000.00 | 164266 | 2410220 |
| 2 | 07/30/2012 | SWD | Statutory Warranty Deed | BNM HOLDINGS LLC | CAP INVESTMENTS LLC | | | $36,000.00 | 155749 | 2365061 |
| 3 | 11/22/2010 | SWD | Statutory Warranty Deed | KISA INVESTMENTS LLC ETAL | BNM HOLDINGS LLC | | | $286,236.00 | 150563 | 2333508 |
|   | |
| 4 | 09/10/2007 | WD | Warranty Deed | ZACHER GREGORY &KAREN | KISA INVESTMENTS LLC ETAL | | | $825,000.00 | 140174 | 2265356 |
Payout Agreement
| No payout information available.. |