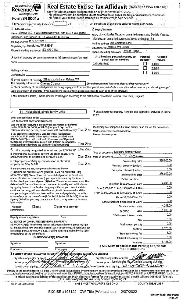
| 1 | 12/07/2022 | SWD | Statutory Warranty Deed | MENOYD LLC NAN LLC & BENOYD LLC | MORALES MEZA JOSE & VAZQUEZ VIDRIALES DANIELA | | | $386,000.00 | 198122 | 2576552 |
| 2 | 03/02/2011 | Q | Quit Claim Deed | BNM HOLDINGS LLC | MENOYD LLC NAN LLC & BENOYD LLC | | | $0.00 | 151294 | 2339318 |
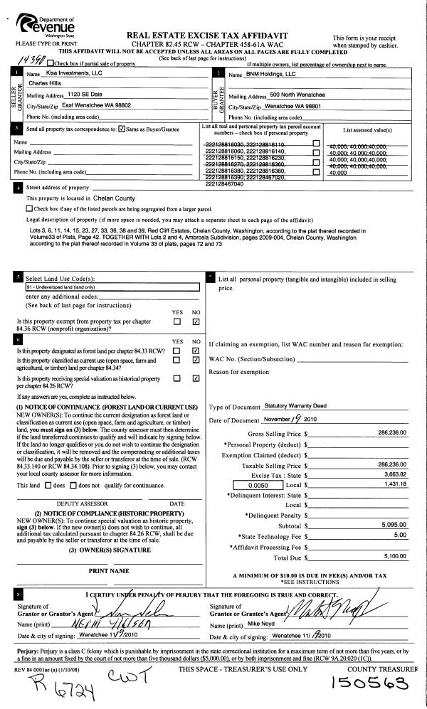
| 3 | 11/22/2010 | SWD | Statutory Warranty Deed | KISA INVESTMENTS LLC ETAL | BNM HOLDINGS LLC | | | $286,236.00 | 150563 | 2333508 |
|   | |
| 4 | 06/09/2009 | WD | Warranty Deed | ZACHER GREGORY &KAREN | KISA INVESTMENTS LLC ETAL | | | $825,000.00 | 140174 | 2265356 |