Property
Account |
Property ID: | 62586 | Abbreviated Legal Description: | CONDO THE LAKE HOUSE AT CHELAN CONDOMINIUM UNIT 402C 0 |
Geographic ID: | 272213665640 | Agent Code: | |
Type: | Real | | |
Tax Area: | 201 - CH 129 CD4 H2 F7 | Land Use Code | 14 |
Open Space: | N | DFL | N |
Historic Property: | N | Remodel Property: | N |
Multi-Family Redevelopment: | N | | |
Township: | 27N | Section: | 13 |
Range: | 22EWM | Legal Acres: | |
Location |
Address: | 402 W MANSON RD 402C CHELAN, WA 98816 | Mapsco: | |
Neighborhood: | CYCLE 4 RESIDENTIAL CONDOS | Map ID: | 4CHEC04R02 |
Neighborhood CD: | 4CHEC04R02 |
Owner |
Name: | WORLDMARK THE CLUB | Owner ID: | 103944 |
Mailing Address: | ATTN TAX DEPARTMENT 6277 SEA HARBOR DR ORLANDO, FL 32821 | % Ownership: | % |
| | Exemptions: | |
Pay Tax Due
Select the appropriate checkbox next to the year to be paid. Multiple years may be selected.
*Convenience Fee not included
Taxes and Assessment Details
Values
(+) Improvement Homesite Value: | + | $0 | |
(+) Improvement Non-Homesite Value: | + | $221,320 | |
(+) Land Homesite Value: | + | $0 | |
(+) Land Non-Homesite Value: | + | $0 | |
(+) Curr Use (HS): | + | $0 | $0 |
(+) Curr Use (NHS): | + | $0 | $0 |
| | -------------------------- | |
(=) Market Value: | = | $221,320 | |
(–) Productivity Loss: | – | $0 | |
| | -------------------------- | |
(=) Subtotal: | = | $221,320 | |
(+) Senior Appraised Value: | + | $0 | |
(+) Non-Senior Appraised Value: | + | $221,320 | |
| | -------------------------- | |
(=) Total Appraised Value: | = | $221,320 | |
(–) Senior Exemption Loss: | – | $0 | |
(–) Exemption Loss: | – | $0 | |
| | -------------------------- | |
(=) Taxable Value: | = | $221,320 | |
Taxing Jurisdiction
Owner: | WORLDMARK THE CLUB | | |
% Ownership: | 100.0000000000% | | |
Total Value: | N/A | | |
Tax Area: | 201 - CH 129 CD4 H2 F7 |
010170 | Chelan County | N/A | N/A | N/A | N/A | | |
155001 | Veteran's Relief | N/A | N/A | N/A | N/A | | |
160001 | Mental Health | N/A | N/A | N/A | N/A | | |
657401 | Cemetery No 4 | N/A | N/A | N/A | N/A | | |
693011 | Chelan General | N/A | N/A | N/A | N/A | | |
656701 | Fire No 7 General | N/A | N/A | N/A | N/A | | |
654115 | Lake Chelan SD 129 Capital Projects | N/A | N/A | N/A | N/A | | |
652001 | State School Refund | N/A | N/A | N/A | N/A | | |
652003 | State School 2 | N/A | N/A | N/A | N/A | | |
652005 | State School | N/A | N/A | N/A | N/A | | |
652025 | State School 2 Refund | N/A | N/A | N/A | N/A | | |
107001 | Flood Control Zone | N/A | N/A | N/A | N/A | | |
692201 | Hospital No 2 General | N/A | N/A | N/A | N/A | | |
692210 | Hospital No 2 Bond | N/A | N/A | N/A | N/A | | |
692260 | Hospital No 2 EMS | N/A | N/A | N/A | N/A | | |
644001 | Regional Library | N/A | N/A | N/A | N/A | | |
671101 | Port General | N/A | N/A | N/A | N/A | | |
654100 | Lake Chelan SD 129 General | N/A | N/A | N/A | N/A | | |
| Total Tax Rate: | N/A | | | | | |
| | | | Taxes w/Current Exemptions: | N/A | | |
| | | | Taxes w/o Exemptions: | N/A | | |
Improvement / Building
Improvement #1: | RESIDENTIAL | State Code: | 14 | 1359.0 sqft | Value: | $221,320 |
Sketch
No sketches available for this property. |
Property Image
Land
No land segments exist for this property.
Roll Value History
2025 | N/A | N/A | N/A | N/A | N/A |
2024 | $221,320 | $0 | $0 | $221,320 | $221,320 |
2023 | $221,320 | $0 | $0 | $221,320 | $221,320 |
2022 | $202,484 | $0 | $0 | $202,484 | $202,484 |
2021 | $129,954 | $0 | $0 | $129,954 | $129,954 |
2020 | $129,954 | $0 | $0 | $129,954 | $129,954 |
2019 | $129,954 | $0 | $0 | $129,954 | $129,954 |
2018 | $129,954 | $0 | $0 | $129,954 | $129,954 |
2017 | $129,954 | $0 | $0 | $129,954 | $129,954 |
2016 | $152,888 | $0 | $0 | $152,888 | $152,888 |
2015 | $152,888 | $0 | $0 | $152,888 | $152,888 |
2014 | $151,665 | $0 | $0 | $151,665 | $151,665 |
2013 | $151,665 | $0 | $0 | $151,665 | $151,665 |
2012 | $142,186 | $0 | $0 | $142,186 | $142,186 |
2011 | $189,581 | $0 | $0 | $189,581 | $189,581 |
2010 | $203,850 | $67,950 | $0 | $271,800 | $271,800 |
2009 | $203,850 | $67,950 | $0 | $271,800 | $271,800 |
Deed and Sales History
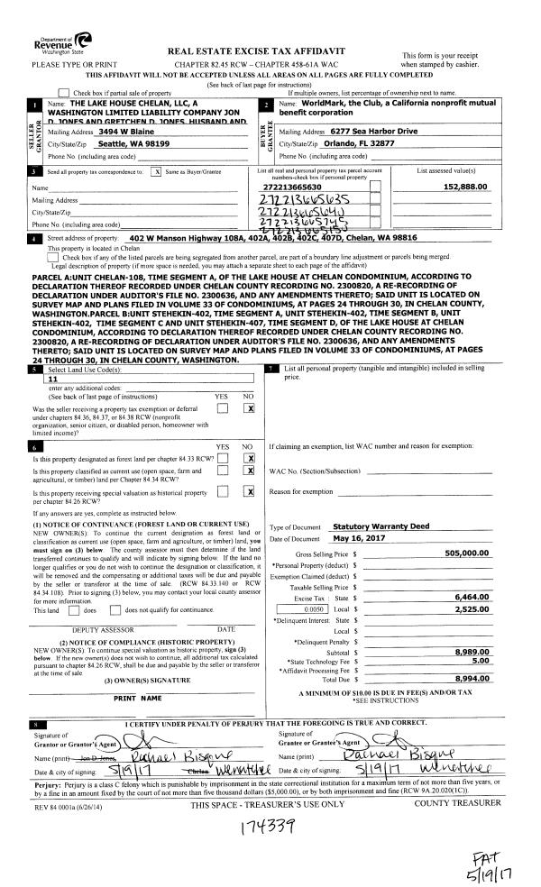
1 | 05/19/2017 | SWD | Statutory Warranty Deed | JONES JON D ETAL | WORLDMARK THE CLUB | | | $505,000.00 | 174339 | 2457720 |
  | |
2 | 09/25/2009 | WD | Warranty Deed | THE LAKE HOUSE CHELAN LLC | JONES JON D ETAL | | | $299,900.00 | 147058 | 2312170 |
3 | 10/23/2007 | W | Warranty Deed | | LAKE CHELAN HOUSE LLC | | | | 0 | 2268457 |
4 | 10/23/2007 | SWD | Statutory Warranty Deed | | THE LAKE HOUSE CHELAN LLC | | | | 0 | 2268457 |
5 | 10/25/2007 | W | Warranty Deed | | THE LAKE HOUSE CHELAN LLC | | | | 0 | 2219120 |
6 | 02/01/2006 | W | Warranty Deed | | BARRY DE PAOLI | | | | 0 | 2107742 |
7 | 03/11/1993 | W | Warranty Deed | | J WESLEY CROSSLEY | 989 | 1738 | | 0 | |
8 | 01/20/1993 | S | Sellers Assignment of Contract and Deed | | JO ANN L WATSON | 986 | 2075 | | 0 | |
9 | 10/23/2007 | W | Warranty Deed | | | | | $8,000,000.00 | 0 | 2268457 |
10 | 01/23/2006 | W | Warranty Deed | | | | | $2,244,000.00 | 0 | 2219120 |
11 | 01/02/2002 | W | Warranty Deed | | | | | $367,400.00 | 0 | 2107742 |
Payout Agreement
No payout information available.. |