Property
Account |
| Property ID: | 62488 | Abbreviated Legal Description: | CONDO THE LAKE HOUSE AT CHELAN CONDOMINIUM UNIT 108A, 0 |
| Geographic ID: | 272213665150 | Agent Code: | |
| Type: | Real | | |
| Tax Area: | 201 - CH 129 CD4 H2 F7 | Land Use Code | 14 |
| Open Space: | N | DFL | N |
| Historic Property: | N | Remodel Property: | N |
| Multi-Family Redevelopment: | N | | |
| Township: | 27N | Section: | 13 |
| Range: | 22EWM | Legal Acres: | |
Location |
| Address: | 402 W MANSON RD 108A CHELAN, WA 98816 | Mapsco: | |
| Neighborhood: | CYCLE 4 RESIDENTIAL CONDOS | Map ID: | 4CHEC04R02 |
| Neighborhood CD: | 4CHEC04R02 |
Owner |
| Name: | WORLDMARK THE CLUB | Owner ID: | 103944 |
| Mailing Address: | C/O TAX & LEISURE TAX DEPARTMENT 501 W CHURCH ST ORLANDO, FL 32805 | % Ownership: | % |
| | | Exemptions: | |
Pay Tax Due
Select the appropriate checkbox next to the year to be paid. Multiple years may be selected.
*Convenience Fee not included
Taxes and Assessment Details
Values
| (+) Improvement Homesite Value: | + | N/A | |
| (+) Improvement Non-Homesite Value: | + | N/A | |
| (+) Land Homesite Value: | + | N/A | |
| (+) Land Non-Homesite Value: | + | N/A | Ag / Timber Use Value |
| (+) Curr Use (HS): | + | N/A | N/A |
| (+) Curr Use (NHS): | + | N/A | N/A |
| | | -------------------------- | |
| (=) Market Value: | = | N/A | |
| (–) Productivity Loss: | – | N/A | |
| | | -------------------------- | |
| (=) Subtotal: | = | N/A | |
| (+) Senior Appraised Value: | + | N/A | |
| (+) Non-Senior Appraised Value: | + | N/A | |
| | | -------------------------- | |
| (=) Total Appraised Value: | = | N/A | |
| (–) Senior Exemption Loss: | – | N/A | |
| (–) Exemption Loss: | – | N/A | |
| | | -------------------------- | |
| (=) Taxable Value: | = | N/A | |
Taxing Jurisdiction
| Owner: | WORLDMARK THE CLUB | | |
| % Ownership: | 100.0000000000% | | |
| Total Value: | N/A | | |
| Tax Area: | 201 - CH 129 CD4 H2 F7 |
| 010170 | Chelan County | N/A | N/A | N/A | N/A | | |
| 155001 | Veteran's Relief | N/A | N/A | N/A | N/A | | |
| 160001 | Mental Health | N/A | N/A | N/A | N/A | | |
| 657401 | Cemetery No 4 | N/A | N/A | N/A | N/A | | |
| 693011 | Chelan General | N/A | N/A | N/A | N/A | | |
| 656701 | Fire No 7 General | N/A | N/A | N/A | N/A | | |
| 654115 | Lake Chelan SD 129 Capital Projects | N/A | N/A | N/A | N/A | | |
| 652001 | State School Refund | N/A | N/A | N/A | N/A | | |
| 652003 | State School 2 | N/A | N/A | N/A | N/A | | |
| 652005 | State School | N/A | N/A | N/A | N/A | | |
| 652025 | State School 2 Refund | N/A | N/A | N/A | N/A | | |
| 107001 | Flood Control Zone | N/A | N/A | N/A | N/A | | |
| 692201 | Hospital No 2 General | N/A | N/A | N/A | N/A | | |
| 692210 | Hospital No 2 Bond | N/A | N/A | N/A | N/A | | |
| 692260 | Hospital No 2 EMS | N/A | N/A | N/A | N/A | | |
| 644001 | Regional Library | N/A | N/A | N/A | N/A | | |
| 671101 | Port General | N/A | N/A | N/A | N/A | | |
| 654100 | Lake Chelan SD 129 General | N/A | N/A | N/A | N/A | | |
| | Total Tax Rate: | N/A | | | | | |
| | | | | Taxes w/Current Exemptions: | N/A | | |
| | | | | Taxes w/o Exemptions: | N/A | | |
Improvement / Building
| Improvement #1: | RESIDENTIAL | State Code: | 14 | 1137.0 sqft | Value: | N/A |
Sketch
| No sketches available for this property. |
Property Image
Land
No land segments exist for this property.
Roll Value History
| 2026 | N/A | N/A | N/A | N/A | N/A |
| 2025 | $134,246 | $0 | $0 | $134,246 | $134,246 |
| 2024 | $134,246 | $0 | $0 | $134,246 | $134,246 |
| 2023 | $134,246 | $0 | $0 | $134,246 | $134,246 |
| 2022 | $122,821 | $0 | $0 | $122,821 | $122,821 |
| 2021 | $78,826 | $0 | $0 | $78,826 | $78,826 |
| 2020 | $78,826 | $0 | $0 | $78,826 | $78,826 |
| 2019 | $78,826 | $0 | $0 | $78,826 | $78,826 |
| 2018 | $78,826 | $0 | $0 | $78,826 | $78,826 |
| 2017 | $78,826 | $0 | $0 | $78,826 | $78,826 |
| 2016 | $92,737 | $0 | $0 | $92,737 | $92,737 |
| 2015 | $92,737 | $0 | $0 | $92,737 | $92,737 |
| 2014 | $91,995 | $0 | $0 | $91,995 | $91,995 |
| 2013 | $91,995 | $0 | $0 | $91,995 | $91,995 |
| 2012 | $86,246 | $0 | $0 | $86,246 | $86,246 |
| 2011 | $114,994 | $0 | $0 | $114,994 | $114,994 |
| 2010 | $123,649 | $41,216 | $0 | $164,865 | $164,865 |
| 2009 | $123,649 | $41,216 | $0 | $164,865 | $164,865 |
Deed and Sales History
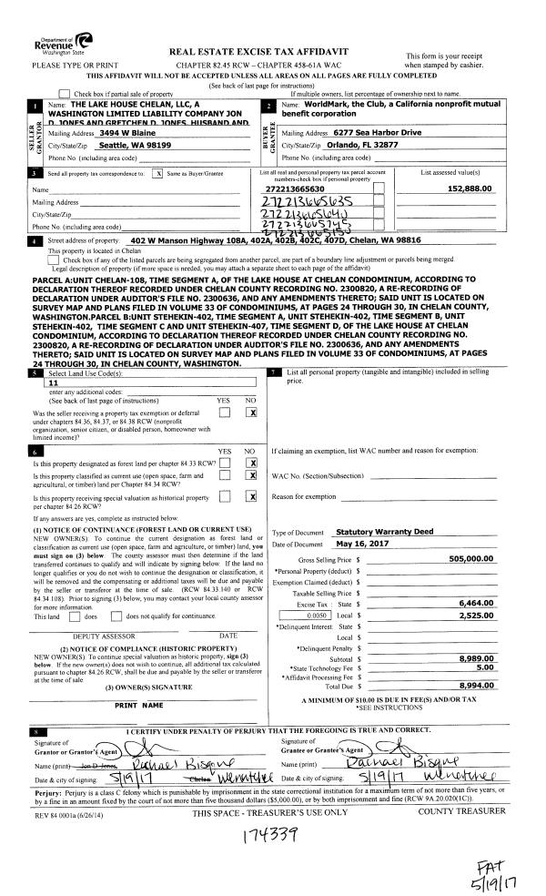
| 1 | 05/19/2017 | SWD | Statutory Warranty Deed | THE LAKE HOUSE CHELAN LLC | WORLDMARK THE CLUB | | | $505,000.00 | 174339 | 2457720 |
|   | |
| 2 | 10/23/2007 | SWD | Statutory Warranty Deed | | THE LAKE HOUSE CHELAN LLC | | | | 0 | 2268457 |
| 3 | 01/23/2006 | SWD | Statutory Warranty Deed | | PARKWAY LAKE CHELAN LLC | | | | 0 | 2219120 |
| 4 | 01/02/2002 | SWD | Statutory Warranty Deed | | BARRY DE PAOLI | | | | 0 | 2107742 |
| 5 | 03/11/1993 | W | Warranty Deed | | J WESLEY CROSSLEY | 989 | 1738 | | 0 | |
| 6 | 01/20/1993 | S | Sellers Assignment of Contract and Deed | | JO ANN L WATSON | 986 | 2075 | | 0 | |
| 7 | 10/23/2007 | W | Warranty Deed | | | | | $8,000,000.00 | 0 | 2268457 |
| 8 | 01/23/2006 | W | Warranty Deed | | | | | $2,244,000.00 | 0 | 2219120 |
| 9 | 01/02/2002 | W | Warranty Deed | | | | | $367,400.00 | 0 | 2107742 |
Payout Agreement
| No payout information available.. |