Property
Account |
Property ID: | 62119 | Abbreviated Legal Description: | MOUNTAIN PARK BLOCK 13 LOT 2, 0.1100 ACRES |
Geographic ID: | 271614700282 | Agent Code: | |
Type: | Real | | |
Tax Area: | 33 - 228 F9 H1 WD5 | Land Use Code | 19 |
Open Space: | N | DFL | N |
Historic Property: | N | Remodel Property: | N |
Multi-Family Redevelopment: | N | | |
Township: | 27N | Section: | 14 |
Range: | 16EWM | Legal Acres: | 0.1100 |
Location |
Address: | UNASSIGNED LAKE WENATCHEE, WA 98826 | Mapsco: | |
Neighborhood: | Cycle 3 Lake Wen/Plain div 6 RES | Map ID: | 3LAKP06R01 |
Neighborhood CD: | 3LAKP06R01 |
Owner |
Name: | HAWKINS WYNDEN S & JARED | Owner ID: | 122139 |
Mailing Address: | 7724 EARL AVE NW SEATTLE, WA 98117 | % Ownership: | % |
| | Exemptions: | |
Pay Tax Due
Select the appropriate checkbox next to the year to be paid. Multiple years may be selected.
*Convenience Fee not included
Taxes and Assessment Details
Values
(+) Improvement Homesite Value: | + | $0 | |
(+) Improvement Non-Homesite Value: | + | $0 | |
(+) Land Homesite Value: | + | $62,832 | |
(+) Land Non-Homesite Value: | + | $0 | |
(+) Curr Use (HS): | + | $0 | $0 |
(+) Curr Use (NHS): | + | $0 | $0 |
| | -------------------------- | |
(=) Market Value: | = | $62,832 | |
(–) Productivity Loss: | – | $0 | |
| | -------------------------- | |
(=) Subtotal: | = | $62,832 | |
(+) Senior Appraised Value: | + | $0 | |
(+) Non-Senior Appraised Value: | + | $62,832 | |
| | -------------------------- | |
(=) Total Appraised Value: | = | $62,832 | |
(–) Senior Exemption Loss: | – | $0 | |
(–) Exemption Loss: | – | $0 | |
| | -------------------------- | |
(=) Taxable Value: | = | $62,832 | |
Taxing Jurisdiction
Owner: | HAWKINS WYNDEN S & JARED | | |
% Ownership: | 100.0000000000% | | |
Total Value: | N/A | | |
Tax Area: | 33 - 228 F9 H1 WD5 |
110001 | County Road General | N/A | N/A | N/A | N/A | | |
010170 | Chelan County | N/A | N/A | N/A | N/A | | |
155001 | Veteran's Relief | N/A | N/A | N/A | N/A | | |
160001 | Mental Health | N/A | N/A | N/A | N/A | | |
656901 | Fire No 9 General | N/A | N/A | N/A | N/A | | |
692101 | Hospital No 1 General | N/A | N/A | N/A | N/A | | |
654175 | Cascade SD 228 Cap Projects | N/A | N/A | N/A | N/A | | |
652001 | State School Refund | N/A | N/A | N/A | N/A | | |
652003 | State School 2 | N/A | N/A | N/A | N/A | | |
652005 | State School | N/A | N/A | N/A | N/A | | |
652025 | State School 2 Refund | N/A | N/A | N/A | N/A | | |
107001 | Flood Control Zone | N/A | N/A | N/A | N/A | | |
692110 | Hospital No 1 Bond | N/A | N/A | N/A | N/A | | |
692150 | Hospital No 1 EMS | N/A | N/A | N/A | N/A | | |
644001 | Regional Library | N/A | N/A | N/A | N/A | | |
671101 | Port General | N/A | N/A | N/A | N/A | | |
654161 | Cascade SD 228 General | N/A | N/A | N/A | N/A | | |
654170 | Cascade SD 228 Bond | N/A | N/A | N/A | N/A | | |
| Total Tax Rate: | N/A | | | | | |
| | | | Taxes w/Current Exemptions: | N/A | | |
| | | | Taxes w/o Exemptions: | N/A | | |
Improvement / Building
Sketch
No sketches available for this property. |
Property Image
Land
1 | SV 35K | SITE VALUE $35,000 | 0.1100 | 4791.60 | 0.00 | 0.00 | 1.00 | $62,832 | $0 |
Roll Value History
2025 | N/A | N/A | N/A | N/A | N/A |
2024 | $0 | $37,485 | $0 | $37,485 | $37,485 |
2023 | $0 | $55,738 | $0 | $55,738 | $55,738 |
2022 | $0 | $43,778 | $0 | $43,778 | $43,778 |
2021 | $0 | $37,100 | $0 | $37,100 | $37,100 |
2020 | $0 | $27,930 | $0 | $27,930 | $27,930 |
2019 | $0 | $34,048 | $0 | $34,048 | $34,048 |
2018 | $0 | $30,317 | $0 | $30,317 | $30,317 |
2017 | $0 | $17,147 | $0 | $17,147 | $17,147 |
2016 | $0 | $15,939 | $0 | $15,939 | $15,939 |
2015 | $0 | $16,520 | $0 | $16,520 | $16,520 |
2014 | $0 | $18,900 | $0 | $18,900 | $18,900 |
2013 | $0 | $22,750 | $0 | $22,750 | $22,750 |
2012 | $0 | $33,250 | $0 | $33,250 | $33,250 |
2011 | $0 | $29,750 | $0 | $29,750 | $29,750 |
2010 | $0 | $31,500 | $0 | $31,500 | $31,500 |
2009 | $0 | $35,000 | $0 | $35,000 | $35,000 |
2008 | $0 | $35,000 | $0 | $35,000 | $35,000 |
Deed and Sales History
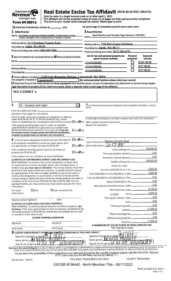
1 | 06/17/2022 | SWD | Statutory Warranty Deed | PILLOW TROY & RENAIT STEPHENS | HAWKINS WYNDEN S & JARED | | | $705,000.00 | 196442 | 2568971 |
  | |
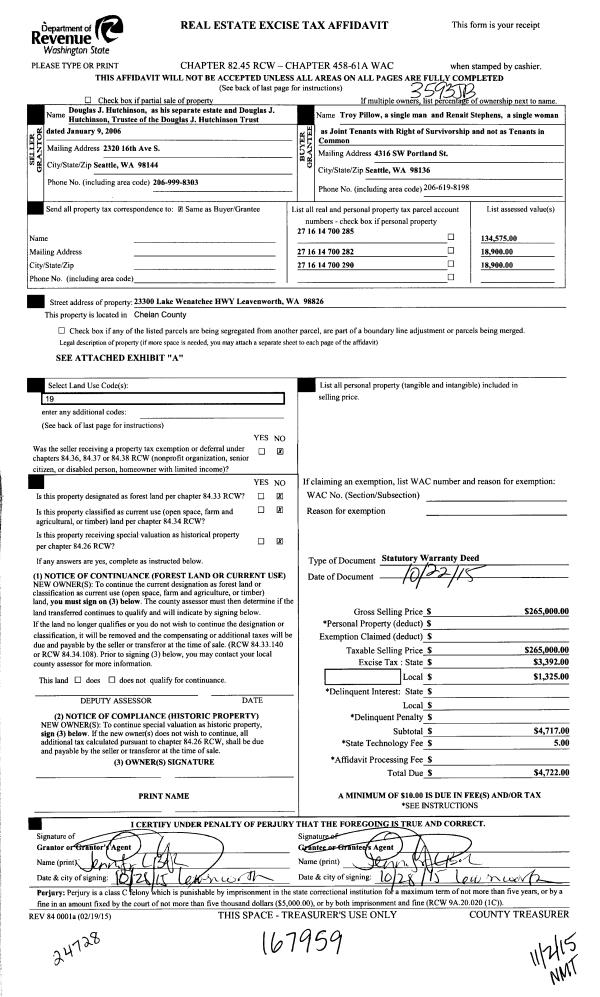
2 | 11/02/2015 | SWD | Statutory Warranty Deed | HUTCHINSON DOUGLAS J | PILLOW TROY & RENAIT STEPHENS | | | $265,000.00 | 167959 | 2427716 |
  | |
3 | 01/31/2008 | SWD | Statutory Warranty Deed | GEORGE TRUSTEE SHAREN & JIM | HUTCHINSON DOUGLAS J | | | | 0 | 2274374 |
4 | 07/17/1995 | Q | Quit Claim Deed | | | 1047 | 1 | | 0 | |
Payout Agreement
No payout information available.. |