Property
Account |
| Property ID: | 61970 | Abbreviated Legal Description: | T 21N R 20EWM S 09 LOT K BLA 2011-087 LOT 11 CE 2008-026 PT SE 117.1000 ACRES |
| Geographic ID: | 212009130050 | Agent Code: | |
| Type: | Real | | |
| Tax Area: | 62 - 246 | Land Use Code | 92 |
| Open Space: | N | DFL | N |
| Historic Property: | N | Remodel Property: | N |
| Multi-Family Redevelopment: | N | | |
| Township: | 21N | Section: | 09 |
| Range: | 20EWM | Legal Acres: | 117.1000 |
Location |
| Address: | UNASSIGNED WENATCHEE, WA 98801 | Mapsco: | |
| Neighborhood: | Cycle 1 Squilchuck_upper Mission Creek Div 1 Ag | Map ID: | 1SQKM01A01 |
| Neighborhood CD: | 1SQKM01A01 |
Owner |
| Name: | WHEELER RIDGE LLC | Owner ID: | 94293 |
| Mailing Address: | 4597 STEMILT HILL RD WENATCHEE, WA 98801 | % Ownership: | % |
| | | Exemptions: | |
Pay Tax Due
Select the appropriate checkbox next to the year to be paid. Multiple years may be selected.
*Convenience Fee not included
Taxes and Assessment Details
Values
| (+) Improvement Homesite Value: | + | N/A | |
| (+) Improvement Non-Homesite Value: | + | N/A | |
| (+) Land Homesite Value: | + | N/A | |
| (+) Land Non-Homesite Value: | + | N/A | Ag / Timber Use Value |
| (+) Curr Use (HS): | + | N/A | N/A |
| (+) Curr Use (NHS): | + | N/A | N/A |
| | | -------------------------- | |
| (=) Market Value: | = | N/A | |
| (–) Productivity Loss: | – | N/A | |
| | | -------------------------- | |
| (=) Subtotal: | = | N/A | |
| (+) Senior Appraised Value: | + | N/A | |
| (+) Non-Senior Appraised Value: | + | N/A | |
| | | -------------------------- | |
| (=) Total Appraised Value: | = | N/A | |
| (–) Senior Exemption Loss: | – | N/A | |
| (–) Exemption Loss: | – | N/A | |
| | | -------------------------- | |
| (=) Taxable Value: | = | N/A | |
Taxing Jurisdiction
| Owner: | WHEELER RIDGE LLC | | |
| % Ownership: | 100.0000000000% | | |
| Total Value: | N/A | | |
| Tax Area: | 62 - 246 |
| 110001 | County Road General | N/A | N/A | N/A | N/A | | |
| 010170 | Chelan County | N/A | N/A | N/A | N/A | | |
| 155001 | Veteran's Relief | N/A | N/A | N/A | N/A | | |
| 160001 | Mental Health | N/A | N/A | N/A | N/A | | |
| 644001 | Regional Library | N/A | N/A | N/A | N/A | | |
| 671101 | Port General | N/A | N/A | N/A | N/A | | |
| 107001 | Flood Control Zone | N/A | N/A | N/A | N/A | | |
| 654201 | Wenatchee SD 246 General | N/A | N/A | N/A | N/A | | |
| 654210 | Wenatchee SD 246 Bond | N/A | N/A | N/A | N/A | | |
| 652001 | State School Refund | N/A | N/A | N/A | N/A | | |
| 652003 | State School 2 | N/A | N/A | N/A | N/A | | |
| 652005 | State School | N/A | N/A | N/A | N/A | | |
| 652025 | State School 2 Refund | N/A | N/A | N/A | N/A | | |
| | Total Tax Rate: | N/A | | | | | |
| | | | | Taxes w/Current Exemptions: | N/A | | |
| | | | | Taxes w/o Exemptions: | N/A | | |
Improvement / Building
| Improvement #1: | AG IMPROVEMENT | State Code: | 81 | 0.0 sqft | Value: | N/A |
| Improvement #2: | AG IMPROVEMENT | State Code: | 81 | 0.0 sqft | Value: | N/A |
Sketch
| No sketches available for this property. |
Property Image
Land
| 1 | SV 30K | SITE VALUE $30,000 | 1.0000 | 43560.00 | 0.00 | 0.00 | 1.00 | N/A | N/A |
| 2 | RES 2K | RESIDUAL $2000/A | 20.0000 | 871200.00 | 0.00 | 0.00 | 0.00 | N/A | N/A |
| 3 | RES 500 | RESIDUAL $500/A | 30.0000 | 1306800.00 | 0.00 | 0.00 | 0.00 | N/A | N/A |
| 4 | RES 1000 | RESIDUAL $1000/A | 62.1000 | 2705076.00 | 0.00 | 0.00 | 0.00 | N/A | N/A |
| 5 | RES 5K | RESIDUAL $5000/A | 4.0000 | 174240.00 | 0.00 | 0.00 | 0.00 | N/A | N/A |
Roll Value History
| 2026 | N/A | N/A | N/A | N/A | N/A |
| 2025 | $28,120 | $167,100 | $0 | $195,220 | $195,220 |
| 2024 | $0 | $167,100 | $0 | $167,100 | $167,100 |
| 2023 | $0 | $167,100 | $0 | $167,100 | $167,100 |
| 2022 | $0 | $167,100 | $0 | $167,100 | $167,100 |
| 2021 | $0 | $167,100 | $0 | $167,100 | $167,100 |
| 2020 | $0 | $167,100 | $0 | $167,100 | $167,100 |
| 2019 | $0 | $167,100 | $0 | $167,100 | $167,100 |
| 2018 | $0 | $167,100 | $0 | $167,100 | $167,100 |
| 2017 | $0 | $167,100 | $0 | $167,100 | $167,100 |
| 2016 | $0 | $135,351 | $0 | $135,351 | $135,351 |
| 2015 | $0 | $135,351 | $0 | $135,351 | $135,351 |
| 2014 | $0 | $142,035 | $0 | $142,035 | $142,035 |
| 2013 | $0 | $109,890 | $0 | $109,890 | $109,890 |
| 2012 | $0 | $158,730 | $0 | $158,730 | $158,730 |
| 2011 | $0 | $195,360 | $0 | $195,360 | $195,360 |
| 2010 | $0 | $26,070 | $0 | $26,070 | $26,070 |
| 2009 | $0 | $26,070 | $0 | $26,070 | $26,070 |
| 2008 | $0 | $26,070 | $0 | $26,070 | $26,070 |
Deed and Sales History
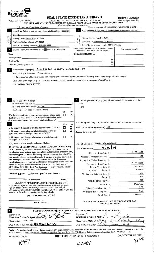
| 1 | 05/23/2014 | SWD | Statutory Warranty Deed | GATES KEVIN | WHEELER RIDGE LLC | | | $1,180,000.00 | 162284 | 2400788 |
|   | |
| 2 | 05/23/2014 | Q | Quit Claim Deed | GATES DEBBIE | GATES KEVIN | | | $0.00 | 162283 | 2400787 |
| 3 | 07/13/2005 | O | Other | FOWLER J B | GATES KEVIN | | | | 128932 | 2204101 |
Payout Agreement
| No payout information available.. |