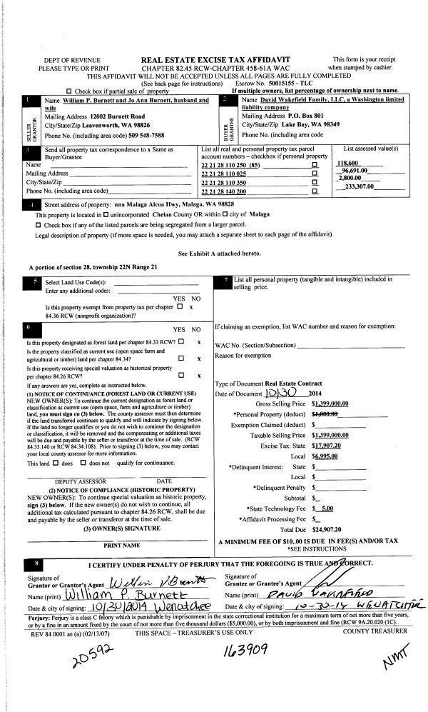
| 1 | 10/30/2014 | C | Real Estate Contract | BURNETT WILLIAM P | DAVID WAKEFIELD FAMILY LLC | | | $1,399,000.00 | 163909 | 2408438 |
|   | |
| 2 | 08/05/2004 | Q | Quit Claim Deed | BURLINGTON NORTHERN AND SANTA FE RAILWAY COMPANY | BURNETT WILLIAM P | | | $150,000.00 | 0 | 2180238 |
|   | |
| 3 | 08/05/2004 | Q | Quit Claim Deed | BURNETT WILLIAM P | BURNETT WILLIAM P | | | $150,000.00 | 12403101 | 2180238 |
|   | |
| 4 | 10/23/2006 | O | Other | SURVEY | BK 49 PG 3 | | | | 0 | 2240671 |
| 5 | | OT | Conversion Code Only | | BURLINGTON NORTHERN AND SANTA | 0 | 0 | | 0 | |