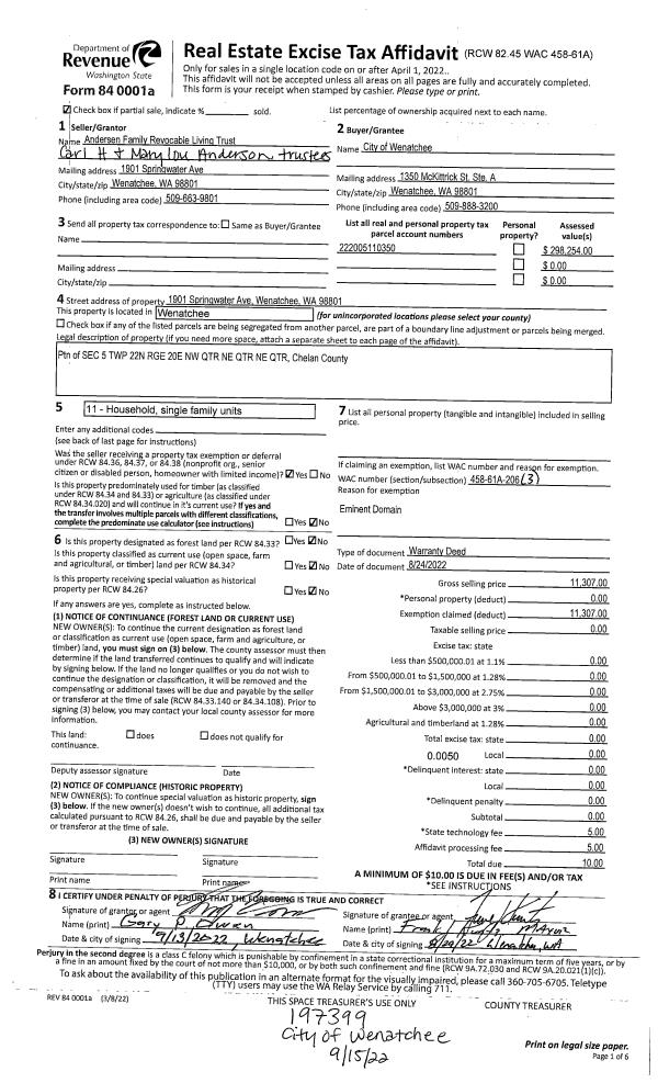
Property
Account |
| Property ID: | 57503 | Abbreviated Legal Description: | MILLERDALE BLOCK 44 LOT A BLA 2019-015WE LESS 1' TO ROW 1.4200 ACRES |
| Geographic ID: | 222016705090 | Agent Code: | |
| Type: | Real | | |
| Tax Area: | 802 - W 246 F1 WB WVFD | Land Use Code | 13 |
| Open Space: | N | DFL | N |
| Historic Property: | N | Remodel Property: | N |
| Multi-Family Redevelopment: | N | | |
| Township: | 22N | Section: | 16 |
| Range: | 20EWM | Legal Acres: | 1.4200 |
Location |
| Address: | 1101 RED APPLE RD WENATCHEE, WA 98801 | Mapsco: | |
| Neighborhood: | Cycle 1 Wenatchee Div 1 Com | Map ID: | 1WEN101C01 |
| Neighborhood CD: | 1WEN101C01 |
Owner |
| Name: | GCP ELEVEN01 LLC ETAL | Owner ID: | 127218 |
| Mailing Address: | 5304 W STATE ST BOISE, ID 83703 | % Ownership: | % |
| | | Exemptions: | |
Pay Tax Due
Select the appropriate checkbox next to the year to be paid. Multiple years may be selected.
*Convenience Fee not included
Taxes and Assessment Details
Values
| (+) Improvement Homesite Value: | + | N/A | |
| (+) Improvement Non-Homesite Value: | + | N/A | |
| (+) Land Homesite Value: | + | N/A | |
| (+) Land Non-Homesite Value: | + | N/A | Ag / Timber Use Value |
| (+) Curr Use (HS): | + | N/A | N/A |
| (+) Curr Use (NHS): | + | N/A | N/A |
| | | -------------------------- | |
| (=) Market Value: | = | N/A | |
| (–) Productivity Loss: | – | N/A | |
| | | -------------------------- | |
| (=) Subtotal: | = | N/A | |
| (+) Senior Appraised Value: | + | N/A | |
| (+) Non-Senior Appraised Value: | + | N/A | |
| | | -------------------------- | |
| (=) Total Appraised Value: | = | N/A | |
| (–) Senior Exemption Loss: | – | N/A | |
| (–) Exemption Loss: | – | N/A | |
| | | -------------------------- | |
| (=) Taxable Value: | = | N/A | |
Taxing Jurisdiction
| Owner: | GCP ELEVEN01 LLC ETAL | | |
| % Ownership: | 100.0000000000% | | |
| Total Value: | N/A | | |
| Tax Area: | 802 - W 246 F1 WB WVFD |
| 010170 | Chelan County | N/A | N/A | N/A | N/A | | |
| 155001 | Veteran's Relief | N/A | N/A | N/A | N/A | | |
| 160001 | Mental Health | N/A | N/A | N/A | N/A | | |
| 656101 | Fire No 1 General | N/A | N/A | N/A | N/A | | |
| 656110 | Fire No 1 Bond | N/A | N/A | N/A | N/A | | |
| 644001 | Regional Library | N/A | N/A | N/A | N/A | | |
| 652025 | State School 2 Refund | N/A | N/A | N/A | N/A | | |
| 693041 | Wenatchee General | N/A | N/A | N/A | N/A | | |
| 107001 | Flood Control Zone | N/A | N/A | N/A | N/A | | |
| 656201 | Wenatchee Valley Fire Department | N/A | N/A | N/A | N/A | | |
| 671101 | Port General | N/A | N/A | N/A | N/A | | |
| 654201 | Wenatchee SD 246 General | N/A | N/A | N/A | N/A | | |
| 654210 | Wenatchee SD 246 Bond | N/A | N/A | N/A | N/A | | |
| 652001 | State School Refund | N/A | N/A | N/A | N/A | | |
| 652003 | State School 2 | N/A | N/A | N/A | N/A | | |
| 652005 | State School | N/A | N/A | N/A | N/A | | |
| | Total Tax Rate: | N/A | | | | | |
| | | | | Taxes w/Current Exemptions: | N/A | | |
| | | | | Taxes w/o Exemptions: | N/A | | |
Improvement / Building
| Improvement #1: | COMMERCIAL | State Code: | 13 | 11807.0 sqft | Value: | N/A |
| Improvement #2: | COMMERCIAL | State Code: | 13 | 11807.0 sqft | Value: | N/A |
| Improvement #3: | COMMERCIAL | State Code: | 13 | 680.0 sqft | Value: | N/A |
Sketch
Property Image
Land
| 1 | COM LAND | COMMERCIAL LAND | 1.4200 | 61855.20 | 0.00 | 0.00 | 1.00 | N/A | N/A |
Roll Value History
| 2026 | N/A | N/A | N/A | N/A | N/A |
| 2025 | $141,912 | $618,552 | $0 | $760,464 | $760,464 |
| 2024 | $118,848 | $432,986 | $0 | $551,834 | $551,834 |
| 2023 | $2,756,408 | $432,986 | $0 | $3,189,394 | $3,189,394 |
| 2022 | $1,981,704 | $247,421 | $0 | $2,229,125 | $2,229,125 |
| 2021 | $0 | $247,421 | $0 | $247,421 | $247,421 |
| 2020 | $0 | $146,880 | $0 | $146,880 | $146,880 |
| 2019 | $0 | $128,520 | $0 | $128,520 | $128,520 |
| 2018 | $0 | $60,000 | $0 | $60,000 | $60,000 |
| 2017 | $7,757 | $42,500 | $0 | $50,257 | $50,257 |
| 2016 | $6,065 | $42,500 | $0 | $48,565 | $48,565 |
| 2015 | $6,329 | $42,500 | $0 | $48,829 | $48,829 |
| 2014 | $6,199 | $42,500 | $0 | $48,699 | $48,699 |
| 2013 | $6,694 | $42,500 | $0 | $49,194 | $49,194 |
| 2012 | $9,284 | $42,500 | $0 | $51,784 | $51,784 |
| 2011 | $9,800 | $43,350 | $0 | $53,150 | $53,150 |
| 2010 | $10,316 | $51,000 | $0 | $61,316 | $61,316 |
| 2009 | $10,316 | $51,000 | $0 | $61,316 | $61,316 |
| 2008 | $4,650 | $35,000 | $0 | $39,650 | $39,650 |
| 2007 | $4,650 | $35,000 | $0 | $39,650 | $39,650 |
Deed and Sales History
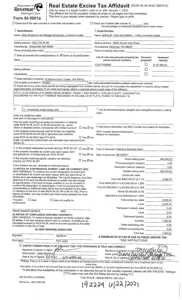
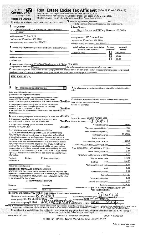
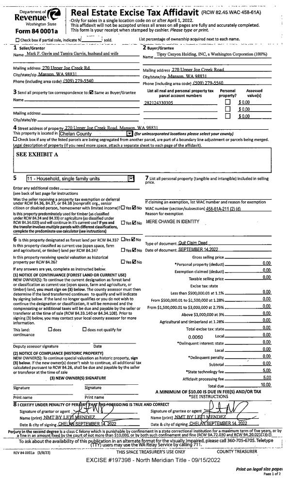
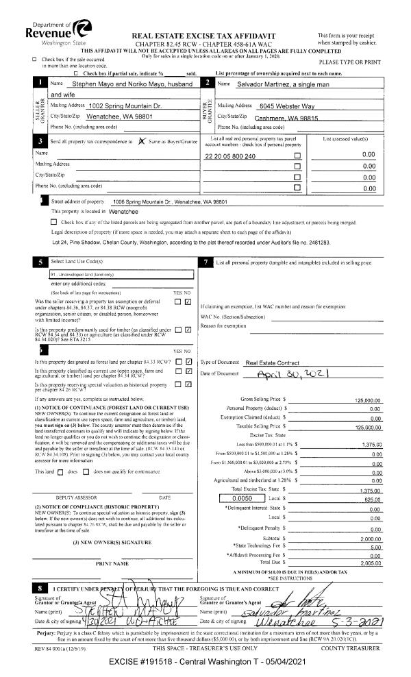
| 1 | 05/28/2024 | SP WD | Special Warranty Deed | 1101 RED APPLE LLC | GCP ELEVEN01 LLC ETAL | | | $25,980,000.00 | 202524 | 2594592 |
|   | |
| 2 | 11/20/2023 | SWD | Statutory Warranty Deed | 1101 RED APPLE LLC | CITY OF WENATCHEE | | | $0.00 | 201116 | 2588690 ROW |
| 3 | 03/22/2021 | SWD | Statutory Warranty Deed | REYNOLDS RICHARD & REYNOLDS NANCY C | 1101 RED APPLE LLC | | | $0.00 | 190916 | 2539512 |
| 4 | 03/05/2021 | SWD | Statutory Warranty Deed | CONFLUENCE AT HARVEST HILLS LLC | REYNOLDS RICHARD & REYNOLDS NANCY C | | | $1,695,000.00 | 190744 | 2538327 |
|   | |
| 5 | 04/19/2018 | Q | Quit Claim Deed | JACOBY EDWARD F III & JULIE C | CONFLUENCE AT HARVEST HILLS LLC | | | $0.00 | 178404 | 2476360 |
| 6 | 09/15/2016 | Q | Quit Claim Deed | PARKS NEWTON A | JACOBY EDWARD F III & JULIE C | | | $0.00 | 171521 | 2444067 |
| 7 | 06/16/2014 | PR | Personal Representatives Deed | PARKS NEWTON A | PARKS NEWTON A | | | $0.00 | 162510 | 2401830 |
| 8 | 02/13/2014 | DC | Death Certificate | PARKS CAROLYN E | PUBLIC DEATH_CERT | | | | 0 | 2396601 |
| 9 | 12/30/1996 | Q | Quit Claim Deed | PARKS NEWTON A | JACOBY JULIE CH | 1080 | 421 | | 0 | |
| 10 | 10/15/1965 | WD | Warranty Deed | | PARKS NEWTON A | 673 | 1890 | | 0 | |
| 11 | 03/21/1995 | Q | Quit Claim Deed | | | 1041 | 1085 | $500.00 | 8530900 | |
Payout Agreement
| No payout information available.. |