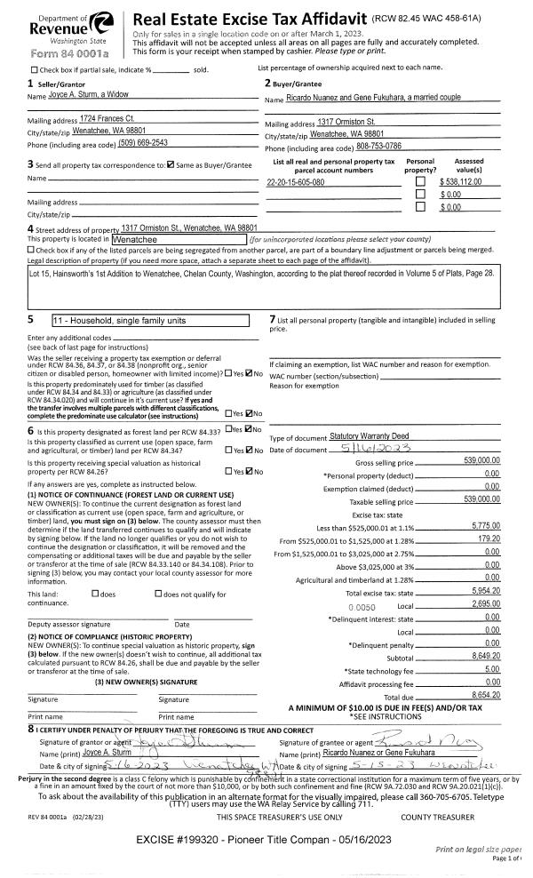
Property
Account |
| Property ID: | 56677 | Abbreviated Legal Description: | HAINSWORTH LOT 15 0.3600 ACRES |
| Geographic ID: | 222015605080 | Agent Code: | |
| Type: | Real | | |
| Tax Area: | 802 - W 246 F1 WB WVFD | Land Use Code | 11 |
| Open Space: | N | DFL | N |
| Historic Property: | N | Remodel Property: | N |
| Multi-Family Redevelopment: | N | | |
| Township: | 22N | Section: | 15 |
| Range: | 20EWM | Legal Acres: | 0.3600 |
Location |
| Address: | 1317 ORMISTON ST WENATCHEE, WA 98801 | Mapsco: | |
| Neighborhood: | Cycle 1 Wenatchee Div 2 Res | Map ID: | 1WEN102R01 |
| Neighborhood CD: | 1WEN102R01 |
Owner |
| Name: | NUANEZ RICARDO & FUKUHARA GENE | Owner ID: | 124530 |
| Mailing Address: | 1317 ORMISTON ST WENATCHEE, WA 98801 | % Ownership: | % |
| | | Exemptions: | |
Pay Tax Due
Select the appropriate checkbox next to the year to be paid. Multiple years may be selected.
*Convenience Fee not included
Taxes and Assessment Details
Values
| (+) Improvement Homesite Value: | + | $0 | |
| (+) Improvement Non-Homesite Value: | + | $418,112 | |
| (+) Land Homesite Value: | + | $0 | |
| (+) Land Non-Homesite Value: | + | $120,000 | |
| (+) Curr Use (HS): | + | $0 | $0 |
| (+) Curr Use (NHS): | + | $0 | $0 |
| | | -------------------------- | |
| (=) Market Value: | = | $538,112 | |
| (–) Productivity Loss: | – | $0 | |
| | | -------------------------- | |
| (=) Subtotal: | = | $538,112 | |
| (+) Senior Appraised Value: | + | $0 | |
| (+) Non-Senior Appraised Value: | + | $538,112 | |
| | | -------------------------- | |
| (=) Total Appraised Value: | = | $538,112 | |
| (–) Senior Exemption Loss: | – | $0 | |
| (–) Exemption Loss: | – | $0 | |
| | | -------------------------- | |
| (=) Taxable Value: | = | $538,112 | |
Taxing Jurisdiction
| Owner: | NUANEZ RICARDO & FUKUHARA GENE | | |
| % Ownership: | 100.0000000000% | | |
| Total Value: | $538,112 | | |
| Tax Area: | 802 - W 246 F1 WB WVFD |
| 010170 | Chelan County | 0.7334053198 | $538,112 | $538,112 | $394.65 | | |
| 155001 | Veteran's Relief | 0.0086008201 | $538,112 | $538,112 | $4.63 | | |
| 160001 | Mental Health | 0.0189723974 | $538,112 | $538,112 | $10.21 | | |
| 656101 | Fire No 1 General | 0.0000000000 | $538,112 | $538,112 | $0.00 | | |
| 656110 | Fire No 1 Bond | 0.0000000000 | $538,112 | $538,112 | $0.00 | | |
| 644001 | Regional Library | 0.2864488554 | $538,112 | $538,112 | $154.14 | | |
| 652025 | State School 2 Refund | 0.0000148770 | $538,112 | $538,112 | $0.01 | | |
| 693041 | Wenatchee General | 0.9471465208 | $538,112 | $538,112 | $509.67 | | |
| 107001 | Flood Control Zone | 0.0408306198 | $538,112 | $538,112 | $21.97 | | |
| 656201 | Wenatchee Valley Fire Department | 1.5000000000 | $538,112 | $538,112 | $807.17 | | |
| 671101 | Port General | 0.1756188309 | $538,112 | $538,112 | $94.50 | | |
| 654201 | Wenatchee SD 246 General | 1.7001724839 | $538,112 | $538,112 | $914.88 | | |
| 654210 | Wenatchee SD 246 Bond | 0.8546844869 | $538,112 | $538,112 | $459.92 | | |
| 652001 | State School Refund | 0.0000273969 | $538,112 | $538,112 | $0.01 | | |
| 652003 | State School 2 | 0.8917891157 | $538,112 | $538,112 | $479.88 | | |
| 652005 | State School | 1.6674243773 | $538,112 | $538,112 | $897.26 | | |
| | Total Tax Rate: | 8.8251361019 | | | | | |
| | | | | Taxes w/Current Exemptions: | $4,748.90 | | |
| | | | | Taxes w/o Exemptions: | $4,748.90 | | |
Improvement / Building
| Improvement #1: | RESIDENTIAL | State Code: | 11 | 2444.0 sqft | Value: | $415,536 |
| Exterior Wall: | Plywood or Hrdbrd | Fireplace: | Single 2 Story | | Fireplace: | Free Standing | Fireplace: | Single 1 Story | | Heating/Cooling: | Forced Air | Number of Bathrooms: | 2.5 | | Number of Bedrooms: | 4 |   |   |
|
| | Type | Description | Class CD | Sub Class CD | Year Built | Area |
| | MA | Main | AVERAGE | SPLT LEV | 1966 | 2444.0 |
| | GAR-ATT | Attached Garage | AVERAGE | 1 STY | 1966 | 700.0 |
| | PP-OPEN | Open Concrete Porch | AVERAGE | * | 1986 | 360.0 |
| | PP-OPEN | Open Concrete Porch | AVERAGE | | 1966 | 300.0 |
| Improvement #2: | RESIDENTIAL | State Code: | 11 | 0.0 sqft | Value: | $2,576 |
Sketch
| No sketches available for this property. |
Property Image
Land
| 1 | SV 60K | SITE VALUE $60,000 | 0.3600 | 15770.00 | 0.00 | 0.00 | 1.00 | $120,000 | $0 |
Roll Value History
| 2026 | N/A | N/A | N/A | N/A | N/A |
| 2025 | $368,057 | $144,000 | $0 | $512,057 | $512,057 |
| 2024 | $431,148 | $107,000 | $0 | $538,148 | $538,148 |
| 2023 | $408,260 | $100,800 | $0 | $509,060 | $509,060 |
| 2022 | $418,112 | $120,000 | $0 | $538,112 | $538,112 |
| 2021 | $339,735 | $79,200 | $0 | $418,935 | $418,935 |
| 2020 | $367,043 | $72,000 | $0 | $439,043 | $439,043 |
| 2019 | $271,717 | $73,500 | $0 | $345,217 | $345,217 |
| 2018 | $271,928 | $78,624 | $0 | $350,552 | $350,552 |
| 2017 | $219,911 | $69,615 | $0 | $289,526 | $289,526 |
| 2016 | $216,127 | $69,615 | $0 | $285,742 | $285,742 |
| 2015 | $178,010 | $59,500 | $0 | $237,510 | $237,510 |
| 2014 | $161,366 | $59,500 | $0 | $220,866 | $220,866 |
| 2013 | $165,725 | $59,500 | $0 | $225,225 | $225,225 |
| 2012 | $123,567 | $59,500 | $0 | $183,067 | $183,067 |
| 2011 | $140,318 | $59,500 | $0 | $199,818 | $199,818 |
| 2010 | $149,441 | $70,000 | $0 | $219,441 | $219,441 |
| 2009 | $149,441 | $70,000 | $0 | $219,441 | $219,441 |
| 2008 | $115,004 | $40,000 | $0 | $155,004 | $155,004 |
| 2007 | $115,004 | $40,000 | $0 | $155,004 | $155,004 |
Deed and Sales History
| 1 | 05/16/2023 | SWD | Statutory Warranty Deed | STURM DAVID J & JOYCE A | NUANEZ RICARDO & FUKUHARA GENE | | | $539,000.00 | 199320 | 2581477 |
| 2 | 05/17/2023 | AFF | Affidavit | STURM DAVID J & JOYCE A | | | | | 0 | 2581471 |
| 3 | 12/07/2017 | SWD | Statutory Warranty Deed | SAGER ROSEMARY | STURM DAVID J & JOYCE A | | | $347,500.00 | 177099 | 2470193 |
| 4 | 09/15/2000 | WFD | Warranty Fulfillment Deed | | SAGER ROSEMARY | | | | 0 | 2080933 |
| 5 | 06/06/1991 | AMND REC | Amended Real Estate Contract | HANEY JIM D | SAGER ROSEMARY | 949 | 1506 | | 0 | |
| 6 | 06/26/1990 | AMND REC | Amended Real Estate Contract | HANEY JIM D | SAGER ROSEMARY | 931 | 1191 | | 0 | |
| 7 | 04/10/1989 | C | Real Estate Contract | HANLEY JIM D | SAGER ROSEMARY | 908 | 1851 | | 0 | |
| 8 | 10/12/1977 | SWD | Statutory Warranty Deed | | JIM D HANEY | 747 | 1940 | | 0 | |
Payout Agreement
| No payout information available.. |