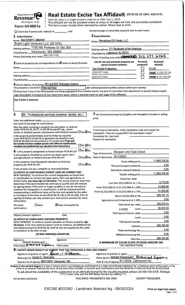
| 1 | 08/30/2024 | BARGAIN | Bargain & Sale Deed | BRIGHT LIGHT VENTURES LLC ETAL | WENATCHEE 625 REALTY LLC | | | $11,864,705.00 | 203362 | 2598457 |
|   | |
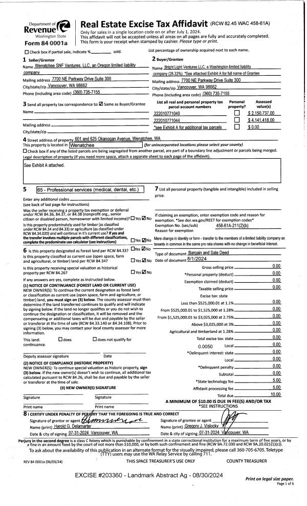
| 2 | 08/30/2024 | BARGAIN | Bargain & Sale Deed | WENATCHEE SNF VENTURES LLC | BRIGHT LIGHT VENTURES LLC ETAL | | | $0.00 | 203360 | 2598456 |
| 3 | 06/01/2017 | SP WD | Special Warranty Deed | CAMPBELL HEALTHCARE INVESTMENTS LP | WENATCHEE SNF VENTURES LLC | | | $11,675,352.00 | 174485 | 2458455 |
|   | |
| 4 | 08/30/2016 | WFD | Warranty Fulfillment Deed | MILOT MILLS FLORIST | CAMPBELL HEALTHCARE INVESTMENTS LP | | | | 0 | 2443087 |
| 5 | 03/12/1997 | Q | Quit Claim Deed | CAMPBELL CARL W | CAMPBELL HEALTH | | | | 0 | 2002182 |
| 6 | 01/01/1997 | Q | Quit Claim Deed | | CAMPBELL HEALTHCARE INV LP | | | | 9311700 | 2002182 |
| 7 | 01/23/1989 | O | Other | CAMPBELL CARL W | MILOT MARTIN W | 905 | 1036 | | 0 | |
| 8 | 05/11/1988 | AMND REC | Amended Real Estate Contract | MILOT-MILLS CO | DE CAMP LONNIE | 893 | 197 | | 0 | |
| 9 | 05/11/1988 | SWD | Statutory Warranty Deed | MILOT-MILLS CO | CAMPBELL CARL W | 893 | 190 | | 0 | |
| 10 | 11/26/1985 | C | Real Estate Contract | MILOT-MILLS | DE CAMP LONNIE D | 851 | 710 | | 0 | |
| 11 | 05/10/1923 | WD | Warranty Deed | BONNER LOUIS | MILOT MILLS FLORIST | 174 | 596 | | 0 | |
| 12 | 12/02/1988 | REF | Conversion Code Only | CARL W CAMPBELL | | 0 | 0 | | 0 | |
| 13 | 12/01/1988 | REF | Conversion Code Only | MARTIN W MILOT | ETAL | 0 | 0 | | 0 | |