Property
Account |
| Property ID: | 54443 | Abbreviated Legal Description: | MILLERS PARK BLOCK 2 LOT 12 0.1500 ACRES |
| Geographic ID: | 222010700150 | Agent Code: | |
| Type: | Real | | |
| Tax Area: | 802 - W 246 F1 WB WVFD | Land Use Code | 11 |
| Open Space: | N | DFL | N |
| Historic Property: | N | Remodel Property: | N |
| Multi-Family Redevelopment: | N | | |
| Township: | 22N | Section: | 10 |
| Range: | 20EWM | Legal Acres: | 0.1500 |
Location |
| Address: | 217 FULLER ST WENATCHEE, WA 98801 | Mapsco: | |
| Neighborhood: | Cycle 1 Wenatchee Div 3 Res | Map ID: | 1WEN103R01 |
| Neighborhood CD: | 1WEN103R01 |
Owner |
| Name: | ENNIS KAREN E ETAL | Owner ID: | 128588 |
| Mailing Address: | 217 FULLER ST WENATCHEE, WA 98801 | % Ownership: | % |
| | | Exemptions: | |
Pay Tax Due
There is currently No Amount Due on this property.
Taxes and Assessment Details
Values
| (+) Improvement Homesite Value: | + | $157,280 | |
| (+) Improvement Non-Homesite Value: | + | $0 | |
| (+) Land Homesite Value: | + | $81,000 | |
| (+) Land Non-Homesite Value: | + | $0 | |
| (+) Curr Use (HS): | + | $0 | $0 |
| (+) Curr Use (NHS): | + | $0 | $0 |
| | | -------------------------- | |
| (=) Market Value: | = | $238,280 | |
| (–) Productivity Loss: | – | $0 | |
| | | -------------------------- | |
| (=) Subtotal: | = | $238,280 | |
| (+) Senior Appraised Value: | + | $0 | |
| (+) Non-Senior Appraised Value: | + | $238,280 | |
| | | -------------------------- | |
| (=) Total Appraised Value: | = | $238,280 | |
| (–) Senior Exemption Loss: | – | $0 | |
| (–) Exemption Loss: | – | $0 | |
| | | -------------------------- | |
| (=) Taxable Value: | = | $238,280 | |
Taxing Jurisdiction
| Owner: | ENNIS KAREN E ETAL | | |
| % Ownership: | 100.0000000000% | | |
| Total Value: | $238,280 | | |
| Tax Area: | 802 - W 246 F1 WB WVFD |
| 010170 | Chelan County | 0.7334053198 | $238,280 | $238,280 | $174.76 | | |
| 155001 | Veteran's Relief | 0.0086008201 | $238,280 | $238,280 | $2.05 | | |
| 160001 | Mental Health | 0.0189723974 | $238,280 | $238,280 | $4.52 | | |
| 656101 | Fire No 1 General | 0.0000000000 | $238,280 | $238,280 | $0.00 | | |
| 656110 | Fire No 1 Bond | 0.0000000000 | $238,280 | $238,280 | $0.00 | | |
| 644001 | Regional Library | 0.2864488554 | $238,280 | $238,280 | $68.26 | | |
| 652025 | State School 2 Refund | 0.0000148770 | $238,280 | $238,280 | $0.00 | | |
| 693041 | Wenatchee General | 0.9471465208 | $238,280 | $238,280 | $225.69 | | |
| 107001 | Flood Control Zone | 0.0408306198 | $238,280 | $238,280 | $9.73 | | |
| 656201 | Wenatchee Valley Fire Department | 1.5000000000 | $238,280 | $238,280 | $357.42 | | |
| 671101 | Port General | 0.1756188309 | $238,280 | $238,280 | $41.85 | | |
| 654201 | Wenatchee SD 246 General | 1.7001724839 | $238,280 | $238,280 | $405.12 | | |
| 654210 | Wenatchee SD 246 Bond | 0.8546844869 | $238,280 | $238,280 | $203.65 | | |
| 652001 | State School Refund | 0.0000273969 | $238,280 | $238,280 | $0.01 | | |
| 652003 | State School 2 | 0.8917891157 | $238,280 | $238,280 | $212.50 | | |
| 652005 | State School | 1.6674243773 | $238,280 | $238,280 | $397.31 | | |
| | Total Tax Rate: | 8.8251361019 | | | | | |
| | | | | Taxes w/Current Exemptions: | $2,102.87 | | |
| | | | | Taxes w/o Exemptions: | $2,102.87 | | |
Improvement / Building
| Improvement #1: | RESIDENTIAL | State Code: | 11 | 936.0 sqft | Value: | $156,650 |
| Exterior Wall: | Metal or Vinyl | Heating/Cooling: | Baseboard Panel | | Number of Bathrooms: | 1.5 | Number of Bedrooms: | 3 |
|
| | Type | Description | Class CD | Sub Class CD | Year Built | Area |
| | MA | Main | FAIR | 1 STY | 1956 | 936.0 |
| | CP | Carport/Patio | FAIR | 1 STY | 1956 | 80.0 |
| | BS-UFC6 | BSMT AREA 6” CONC (Pre-1989) | FAIR | 1 STY | 1956 | 936.0 |
| Improvement #2: | RESIDENTIAL | State Code: | 11 | 0.0 sqft | Value: | $630 |
Sketch
| No sketches available for this property. |
Property Image
Land
| 1 | SV 60K | SITE VALUE $60,000 | 0.1500 | 6530.00 | 0.00 | 0.00 | 1.00 | $81,000 | $0 |
Roll Value History
| 2026 | N/A | N/A | N/A | N/A | N/A |
| 2025 | $218,663 | $107,000 | $0 | $325,663 | $325,663 |
| 2024 | $209,251 | $107,000 | $0 | $316,251 | $316,251 |
| 2023 | $203,043 | $100,800 | $0 | $303,843 | $303,843 |
| 2022 | $157,280 | $81,000 | $0 | $238,280 | $238,280 |
| 2021 | $135,057 | $69,600 | $0 | $204,657 | $204,657 |
| 2020 | $133,860 | $49,500 | $0 | $183,360 | $183,360 |
| 2019 | $112,472 | $51,300 | $0 | $163,772 | $163,772 |
| 2018 | $104,749 | $49,950 | $0 | $154,699 | $154,699 |
| 2017 | $88,507 | $45,000 | $0 | $133,507 | $133,507 |
| 2016 | $86,428 | $45,000 | $0 | $131,428 | $131,428 |
| 2015 | $62,797 | $38,250 | $0 | $101,047 | $101,047 |
| 2014 | $71,358 | $45,000 | $0 | $116,358 | $116,358 |
| 2013 | $63,263 | $30,000 | $0 | $93,263 | $93,263 |
| 2012 | $61,638 | $30,000 | $0 | $91,638 | $91,638 |
| 2011 | $69,820 | $39,900 | $0 | $109,720 | $109,720 |
| 2010 | $73,495 | $42,000 | $0 | $115,495 | $115,495 |
| 2009 | $93,092 | $42,000 | $0 | $135,092 | $31,247 |
| 2008 | $51,247 | $35,000 | $0 | $86,247 | $31,247 |
| 2007 | $51,247 | $30,000 | $0 | $81,247 | $31,247 |
Deed and Sales History
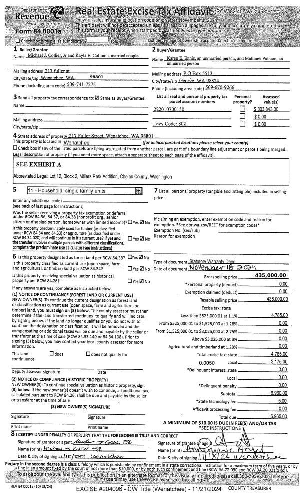
| 1 | 11/21/2024 | SWD | Statutory Warranty Deed | COLLIER MICHAEL J & KAYLA E | ENNIS KAREN E ETAL | | | $435,000.00 | 204096 | 2601546 |
| 2 | 04/13/2023 | SWD | Statutory Warranty Deed | LONGUSKIE ORVILLE A & NAFTEL JEFFREY W | COLLIER MICHAEL J & KAYLA E | | | $375,000.00 | 199032 | 2580326 |
| 3 | 05/10/2021 | Q | Quit Claim Deed | LONGUSKIE ORVILLE A | LONGUSKIE ORVILLE A & NAFTEL JEFFREY W | | | $0.00 | 191597 | 2543464 |
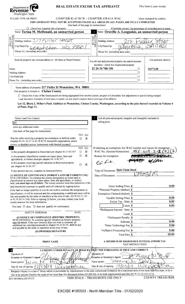
| 4 | 01/02/2020 | Q | Quit Claim Deed | LONGUSKIE ORVILLE ETAL | LONGUSKIE ORVILLE A | | | $0.00 | 185503 | 2508829 |
| 5 | 01/02/2020 | AFF | Affidavit | LONGUSKIE ORVILLE ETAL | LONGUSKIE ORVILLE A | | | | 0 | 2508827 |
| 6 | 01/02/2020 | AFF | Affidavit | LONGUSKIE ORVILLE A | LONGUSKIE ORVILLE A | | | | 0 | 2508828 |
| 7 | 08/11/2014 | Q | Quit Claim Deed | LONGUSKIE ORVILLE A | LONGUSKIE ORVILLE A & TED E LONGUSKIE & TERINA M MC DONALD JTRS | | | $0.00 | 163106 | 2404566 |
| 8 | 05/28/2003 | Q | Quit Claim Deed | | LONGUSKIE ORVILLE ETAL | | | | 0 | 2117722 |
| 9 | 05/28/2002 | Q | Quit Claim Deed | | | | | | 11397400 | 2117722 |
| 10 | 06/01/1998 | Q | Quit Claim Deed | | DEANNA LONGUSKIE | | | | 0 | 2029334 |
| 11 | 05/27/1998 | Q | Quit Claim Deed | | | | | $28,338.00 | 9797200 | 2029334 |
| 12 | 12/13/1988 | W | Warranty Deed | | VERA M LONGUSKIE | 903 | 1799 | | 0 | |
| 13 | 03/20/1956 | WD | Warranty Deed | | EVERETT P TIMBOE | 548 | 690 | | 0 | |
Payout Agreement
| No payout information available.. |