Property
Account |
Property ID: | 54285 | Abbreviated Legal Description: | HIGHLAND PARK BLOCK 1 LOT 18 0.1600 ACRES |
Geographic ID: | 222010606095 | Agent Code: | |
Type: | Real | | |
Tax Area: | 802 - W 246 F1 WB WVFD | Land Use Code | 11 |
Open Space: | N | DFL | N |
Historic Property: | N | Remodel Property: | N |
Multi-Family Redevelopment: | N | | |
Township: | 22N | Section: | 10 |
Range: | 20EWM | Legal Acres: | 0.1600 |
Location |
Address: | 1025 MONROE ST WENATCHEE, WA 98801 | Mapsco: | |
Neighborhood: | Cycle 1 Wenatchee Div 2 Res | Map ID: | 1WEN102R01 |
Neighborhood CD: | 1WEN102R01 |
Owner |
Name: | DORSHIMER AUDREY R ETAL | Owner ID: | 115546 |
Mailing Address: | 1025 MONROE ST WENATCHEE, WA 98801 | % Ownership: | % |
| | Exemptions: | |
Pay Tax Due
Select the appropriate checkbox next to the year to be paid. Multiple years may be selected.
*Convenience Fee not included
Taxes and Assessment Details
Values
(+) Improvement Homesite Value: | + | $0 | |
(+) Improvement Non-Homesite Value: | + | $143,610 | |
(+) Land Homesite Value: | + | $0 | |
(+) Land Non-Homesite Value: | + | $63,000 | |
(+) Curr Use (HS): | + | $0 | $0 |
(+) Curr Use (NHS): | + | $0 | $0 |
| | -------------------------- | |
(=) Market Value: | = | $206,610 | |
(–) Productivity Loss: | – | $0 | |
| | -------------------------- | |
(=) Subtotal: | = | $206,610 | |
(+) Senior Appraised Value: | + | $0 | |
(+) Non-Senior Appraised Value: | + | $206,610 | |
| | -------------------------- | |
(=) Total Appraised Value: | = | $206,610 | |
(–) Senior Exemption Loss: | – | $0 | |
(–) Exemption Loss: | – | $0 | |
| | -------------------------- | |
(=) Taxable Value: | = | $206,610 | |
Taxing Jurisdiction
Owner: | DORSHIMER AUDREY R ETAL | | |
% Ownership: | 100.0000000000% | | |
Total Value: | $206,610 | | |
Tax Area: | 802 - W 246 F1 WB WVFD |
010170 | Chelan County | 1.0308400273 | $206,610 | $206,610 | $212.98 | | |
155001 | Veteran's Relief | 0.0112499997 | $206,610 | $206,610 | $2.32 | | |
160001 | Mental Health | 0.0250000002 | $206,610 | $206,610 | $5.17 | | |
656101 | Fire No 1 General | 1.3513325218 | $206,610 | $206,610 | $279.20 | | |
656110 | Fire No 1 Bond | 0.0000000000 | $206,610 | $206,610 | $0.00 | | |
644001 | Regional Library | 0.3693977329 | $206,610 | $206,610 | $76.32 | | |
671101 | Port General | 0.2399548335 | $206,610 | $206,610 | $49.58 | | |
654201 | Wenatchee SD 246 General | 1.7331499701 | $206,610 | $206,610 | $358.09 | | |
654210 | Wenatchee SD 246 Bond | 1.1169215545 | $206,610 | $206,610 | $230.77 | | |
652001 | State School Refund | 0.0000539242 | $206,610 | $206,610 | $0.01 | | |
652003 | State School 2 | 1.0967484031 | $206,610 | $206,610 | $226.60 | | |
652005 | State School | 2.0380122406 | $206,610 | $206,610 | $421.07 | | |
652025 | State School 2 Refund | 0.0000287381 | $206,610 | $206,610 | $0.01 | | |
693041 | Wenatchee General | 1.1111074145 | $206,610 | $206,610 | $229.57 | | |
693050 | Wenatchee Bond | 0.0989089453 | $206,610 | $206,610 | $20.44 | | |
107001 | Flood Control Zone | 0.0549017061 | $206,610 | $206,610 | $11.34 | | |
| Total Tax Rate: | 10.2776080119 | | | | | |
| | | | Taxes w/Current Exemptions: | $2,123.47 | | |
| | | | Taxes w/o Exemptions: | $2,123.47 | | |
Improvement / Building
Improvement #1: | RESIDENTIAL | State Code: | 11 | 924.0 sqft | Value: | $136,346 |
Exterior Wall: | Wood Siding | Fireplace: | Single 1 Story | Heating/Cooling: | Forced Air | Number of Bathrooms: | 2 | Number of Bedrooms: | 3 |   |   |
|
| Type | Description | Class CD | Sub Class CD | Year Built | Area |
| MA | Main | FAIR | 1 STY | 1949 | 924.0 |
| BSMT-PF | BSMT FINISH - PARTITIONED | FAIR | 1 STY | 1949 | 924.0 |
| BS-UFC6 | BSMT AREA 6” CONC (Pre-1989) | FAIR | 1 STY | 1949 | 924.0 |
Improvement #2: | RESIDENTIAL | State Code: | 11 | 0.0 sqft | Value: | $7,264 |
Sketch
No sketches available for this property. |
Property Image
Land
1 | SV 60K | SITE VALUE $60,000 | 0.1600 | 6785.00 | 0.00 | 0.00 | 1.00 | $63,000 | $0 |
Roll Value History
2025 | N/A | N/A | N/A | N/A | N/A |
2024 | $235,728 | $107,000 | $0 | $342,728 | $342,728 |
2023 | $254,168 | $100,800 | $0 | $354,968 | $354,968 |
2022 | $173,280 | $120,000 | $0 | $293,280 | $293,280 |
2021 | $199,160 | $79,200 | $0 | $278,360 | $278,360 |
2020 | $151,906 | $72,000 | $0 | $223,906 | $223,906 |
2019 | $143,610 | $63,000 | $0 | $206,610 | $206,610 |
2018 | $120,825 | $67,392 | $0 | $188,217 | $188,217 |
2017 | $96,802 | $59,670 | $0 | $156,472 | $156,472 |
2016 | $103,699 | $59,670 | $0 | $163,369 | $163,369 |
2015 | $103,555 | $51,000 | $0 | $154,555 | $154,555 |
2014 | $94,709 | $51,000 | $0 | $145,709 | $145,709 |
2013 | $83,256 | $51,000 | $0 | $134,256 | $134,256 |
2012 | $89,564 | $51,000 | $0 | $140,564 | $140,564 |
2011 | $97,202 | $51,000 | $0 | $148,202 | $148,202 |
2010 | $103,720 | $60,000 | $0 | $163,720 | $163,720 |
2009 | $103,720 | $60,000 | $0 | $163,720 | $163,720 |
2008 | $75,821 | $35,000 | $0 | $110,821 | $110,821 |
2007 | $75,821 | $35,000 | $0 | $110,821 | $110,821 |
2006 | $75,821 | $35,000 | $0 | $110,821 | $110,821 |
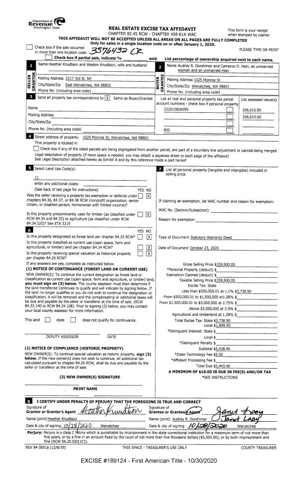
Deed and Sales History
1 | 10/30/2020 | SWD | Statutory Warranty Deed | KNUDTSON WESTON & HEATHER | DORSHIMER AUDREY R ETAL | | | $339,900.00 | 189124 | 2528502 |
2 | 11/20/2017 | SWD | Statutory Warranty Deed | MC INTOSH NANCY | KNUDTSON WESTON & HEATHER | | | $233,000.00 | 176874 | 2469046 |
3 | 03/12/1998 | REF | Conversion Code Only | MC INTOSH NANCY | DOUG NANCY | | | | 0 | 2021745 |
4 | 06/16/1992 | Q | Quit Claim Deed | | MC INTOSH NANCY | 971 | 577 | | 0 | |
5 | | OT | Conversion Code Only | | GARY D SPENCE | 716 | 1132 | | 0 | |
6 | 02/09/1998 | Q | Quit Claim Deed | | | | | | 9680400 | 2021745 |
7 | 06/04/1992 | Q | Quit Claim Deed | | | 971 | 577 | | 7281500 | |
Payout Agreement
No payout information available.. |