Property
Account |
Property ID: | 52458 | Abbreviated Legal Description: | HIGHLINE NO 4 LOT 156 LOT B BLA 2009-034 ,LOT 2 CE 2008-016 4.3100 ACRES |
Geographic ID: | 282126609340 | Agent Code: | |
Type: | Real | | |
Tax Area: | 4 - 19 F5 CD4 H2 PK1 | Land Use Code | 11 |
Open Space: | N | DFL | N |
Historic Property: | N | Remodel Property: | N |
Multi-Family Redevelopment: | N | | |
Township: | 28N | Section: | 26 |
Range: | 21EWM | Legal Acres: | 4.3100 |
Location |
Address: | 2700 TOTEM POLE RD MANSON, WA 98831 | Mapsco: | |
Neighborhood: | Cycle 4 Manson div 3 AG | Map ID: | 4MANS03A01 |
Neighborhood CD: | 4MANS03A01 |
Owner |
Name: | CHAMPION ORCHARDS LLC | Owner ID: | 104324 |
Mailing Address: | PO BOX 307 MANSON, WA 98831 | % Ownership: | % |
| | Exemptions: | |
Pay Tax Due
Select the appropriate checkbox next to the year to be paid. Multiple years may be selected.
*Convenience Fee not included
Taxes and Assessment Details
Values
(+) Improvement Homesite Value: | + | $0 | |
(+) Improvement Non-Homesite Value: | + | $364,180 | |
(+) Land Homesite Value: | + | $0 | |
(+) Land Non-Homesite Value: | + | $149,650 | |
(+) Curr Use (HS): | + | $0 | $0 |
(+) Curr Use (NHS): | + | $0 | $0 |
| | -------------------------- | |
(=) Market Value: | = | $513,830 | |
(–) Productivity Loss: | – | $0 | |
| | -------------------------- | |
(=) Subtotal: | = | $513,830 | |
(+) Senior Appraised Value: | + | $0 | |
(+) Non-Senior Appraised Value: | + | $513,830 | |
| | -------------------------- | |
(=) Total Appraised Value: | = | $513,830 | |
(–) Senior Exemption Loss: | – | $0 | |
(–) Exemption Loss: | – | $0 | |
| | -------------------------- | |
(=) Taxable Value: | = | $513,830 | |
Taxing Jurisdiction
Owner: | CHAMPION ORCHARDS LLC | | |
% Ownership: | 100.0000000000% | | |
Total Value: | N/A | | |
Tax Area: | 4 - 19 F5 CD4 H2 PK1 |
110001 | County Road General | N/A | N/A | N/A | N/A | | |
010170 | Chelan County | N/A | N/A | N/A | N/A | | |
155001 | Veteran's Relief | N/A | N/A | N/A | N/A | | |
160001 | Mental Health | N/A | N/A | N/A | N/A | | |
657401 | Cemetery No 4 | N/A | N/A | N/A | N/A | | |
656501 | Fire No 5 General | N/A | N/A | N/A | N/A | | |
107001 | Flood Control Zone | N/A | N/A | N/A | N/A | | |
654021 | Manson SD 19 General | N/A | N/A | N/A | N/A | | |
654035 | Manson SD 19 Capital Projects | N/A | N/A | N/A | N/A | | |
652001 | State School Refund | N/A | N/A | N/A | N/A | | |
652003 | State School 2 | N/A | N/A | N/A | N/A | | |
652005 | State School | N/A | N/A | N/A | N/A | | |
652025 | State School 2 Refund | N/A | N/A | N/A | N/A | | |
692201 | Hospital No 2 General | N/A | N/A | N/A | N/A | | |
692210 | Hospital No 2 Bond | N/A | N/A | N/A | N/A | | |
692260 | Hospital No 2 EMS | N/A | N/A | N/A | N/A | | |
644001 | Regional Library | N/A | N/A | N/A | N/A | | |
675101 | Manson Park & Rec | N/A | N/A | N/A | N/A | | |
671101 | Port General | N/A | N/A | N/A | N/A | | |
| Total Tax Rate: | N/A | | | | | |
| | | | Taxes w/Current Exemptions: | N/A | | |
| | | | Taxes w/o Exemptions: | N/A | | |
Improvement / Building
Improvement #1: | RESIDENTIAL | State Code: | 11 | 2544.0 sqft | Value: | $354,940 |
Exterior Wall: | Wood Shngl Shke | Heating/Cooling: | Heat Pump | Number of Bathrooms: | 3.5 | Number of Bedrooms: | 3 |
|
| Type | Description | Class CD | Sub Class CD | Year Built | Area |
| MA | Main | AVERAGE | 2 STY | 2019 | 2544.0 |
| GAR-BI | Built-In Garage | AVERAGE | 1 STY | 2019 | 2224.0 |
| CP-S | Carport/Patio Cover Shed Roof | GOOD | 1 STY | 2019 | 672.0 |
| CP-S | Carport/Patio Cover Shed Roof | GOOD | 1 STY | 2019 | 480.0 |
| DECK | Open Wood Deck | AVERAGE | 2 STY | 2019 | 48.0 |
Improvement #2: | AG IMPROVEMENT | State Code: | 81 | 0.0 sqft | Value: | $6,600 |
Improvement #3: | AG IMPROVEMENT | State Code: | 81 | 0.0 sqft | Value: | $2,640 |
Sketch
Property Image
Land
1 | SV 100K | SITE VALUE $100,000 | 1.0000 | 43560.00 | 0.00 | 0.00 | 1.00 | $100,000 | $0 |
2 | RES 15K | RESIDUAL $15,000/A | 3.3100 | 144183.60 | 0.00 | 0.00 | 1.00 | $49,650 | $0 |
Roll Value History
2025 | N/A | N/A | N/A | N/A | N/A |
2024 | $367,804 | $149,650 | $0 | $517,454 | $517,454 |
2023 | $361,940 | $182,573 | $0 | $544,513 | $544,513 |
2022 | $314,437 | $149,650 | $0 | $464,087 | $464,087 |
2021 | $314,437 | $149,650 | $0 | $464,087 | $464,087 |
2020 | $314,437 | $149,650 | $0 | $464,087 | $464,087 |
2019 | $236,726 | $149,650 | $0 | $386,376 | $386,376 |
2018 | $0 | $149,650 | $0 | $149,650 | $149,650 |
2017 | $0 | $97,273 | $0 | $97,273 | $97,273 |
2016 | $0 | $100,266 | $0 | $100,266 | $100,266 |
2015 | $0 | $95,776 | $0 | $95,776 | $95,776 |
2014 | $0 | $95,776 | $0 | $95,776 | $95,776 |
2013 | $0 | $89,790 | $0 | $89,790 | $89,790 |
2012 | $0 | $97,273 | $0 | $97,273 | $97,273 |
2011 | $0 | $104,755 | $0 | $104,755 | $104,755 |
2010 | $0 | $104,755 | $0 | $104,755 | $104,755 |
2009 | $0 | $149,650 | $0 | $149,650 | $149,650 |
2008 | $0 | $122,500 | $0 | $122,500 | $122,500 |
Deed and Sales History
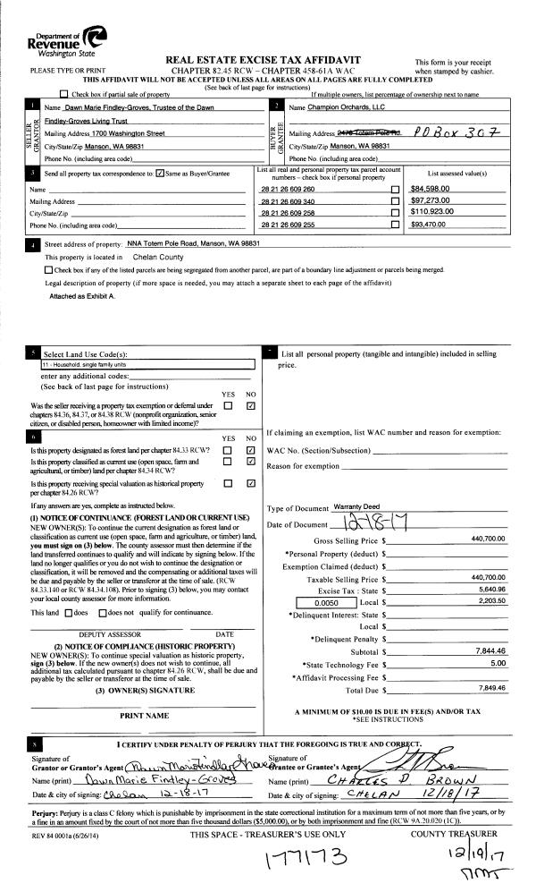
1 | 12/19/2017 | WD | Warranty Deed | FINDLEY-GROVES DAWN MARIE TRT | CHAMPION ORCHARDS LLC | | | $440,700.00 | 177173 | 2470577 |
  | |
2 | 01/07/2008 | Q | Quit Claim Deed | | FINDLEY-GROVES DAWN MARIE TRT | | | | 0 | 2273045 |
Payout Agreement
No payout information available.. |