Property
Account |
| Property ID: | 51627 | Abbreviated Legal Description: | T 29N R 20EWM S 24 LOT 1 BLA 2012-165; LOT 1 BLA 2009-136; 20.0000 ACRES |
| Geographic ID: | 292024130100 | Agent Code: | |
| Type: | Real | | |
| Tax Area: | 32 - 129 CD4 H2 | Land Use Code | 18 |
| Open Space: | N | DFL | N |
| Historic Property: | N | Remodel Property: | N |
| Multi-Family Redevelopment: | N | | |
| Township: | 29N | Section: | 24 |
| Range: | 20EWM | Legal Acres: | 20.0000 |
Location |
| Address: | 379 ROBISON LN CHELAN, WA 98816 | Mapsco: | |
| Neighborhood: | Cycle 4 Chelan water south div 3 RES | Map ID: | 4CWSO03R01 |
| Neighborhood CD: | 4CWSO03R01 |
Owner |
| Name: | MARK CLIFFORD H & BEATRICE | Owner ID: | 115179 |
| Mailing Address: | 4521 SW WALKER ST SEATLE, WA 98116 | % Ownership: | % |
| | | Exemptions: | |
Pay Tax Due
Select the appropriate checkbox next to the year to be paid. Multiple years may be selected.
*Convenience Fee not included
Taxes and Assessment Details
Values
| (+) Improvement Homesite Value: | + | $0 | |
| (+) Improvement Non-Homesite Value: | + | $26,011 | |
| (+) Land Homesite Value: | + | $0 | |
| (+) Land Non-Homesite Value: | + | $561,600 | |
| (+) Curr Use (HS): | + | $0 | $0 |
| (+) Curr Use (NHS): | + | $0 | $0 |
| | | -------------------------- | |
| (=) Market Value: | = | $587,611 | |
| (–) Productivity Loss: | – | $0 | |
| | | -------------------------- | |
| (=) Subtotal: | = | $587,611 | |
| (+) Senior Appraised Value: | + | $0 | |
| (+) Non-Senior Appraised Value: | + | $587,611 | |
| | | -------------------------- | |
| (=) Total Appraised Value: | = | $587,611 | |
| (–) Senior Exemption Loss: | – | $0 | |
| (–) Exemption Loss: | – | $0 | |
| | | -------------------------- | |
| (=) Taxable Value: | = | $587,611 | |
Taxing Jurisdiction
| Owner: | MARK CLIFFORD H & BEATRICE | | |
| % Ownership: | 100.0000000000% | | |
| Total Value: | $587,611 | | |
| Tax Area: | 32 - 129 CD4 H2 |
| 110001 | County Road General | 0.7994434437 | $587,611 | $587,611 | $469.76 | | |
| 010170 | Chelan County | 0.7334053198 | $587,611 | $587,611 | $430.96 | | |
| 155001 | Veteran's Relief | 0.0086008201 | $587,611 | $587,611 | $5.05 | | |
| 160001 | Mental Health | 0.0189723974 | $587,611 | $587,611 | $11.15 | | |
| 657401 | Cemetery No 4 | 0.0351540838 | $587,611 | $587,611 | $20.66 | | |
| 692201 | Hospital No 2 General | 0.1547141610 | $587,611 | $587,611 | $90.91 | | |
| 652001 | State School Refund | 0.0000273969 | $587,611 | $587,611 | $0.02 | | |
| 652003 | State School 2 | 0.8917891157 | $587,611 | $587,611 | $524.03 | | |
| 652005 | State School | 1.6674243773 | $587,611 | $587,611 | $979.80 | | |
| 652025 | State School 2 Refund | 0.0000148770 | $587,611 | $587,611 | $0.01 | | |
| 107001 | Flood Control Zone | 0.0408306198 | $587,611 | $587,611 | $23.99 | | |
| 692210 | Hospital No 2 Bond | 0.2119022248 | $587,611 | $587,611 | $124.52 | | |
| 692260 | Hospital No 2 EMS | 0.2840218151 | $587,611 | $587,611 | $166.89 | | |
| 644001 | Regional Library | 0.2864488554 | $587,611 | $587,611 | $168.32 | | |
| 671101 | Port General | 0.1756188309 | $587,611 | $587,611 | $103.20 | | |
| 654100 | Lake Chelan SD 129 General | 0.8700014346 | $587,611 | $587,611 | $511.22 | | |
| 654115 | Lake Chelan SD 129 Capital Projects | 0.0565057625 | $587,611 | $587,611 | $33.20 | | |
| | Total Tax Rate: | 6.2348755358 | | | | | |
| | | | | Taxes w/Current Exemptions: | $3,663.69 | | |
| | | | | Taxes w/o Exemptions: | $3,663.69 | | |
Improvement / Building
| Improvement #1: | RESIDENTIAL | State Code: | 11 | 0.0 sqft | Value: | $14,786 |
| Improvement #2: | RESIDENTIAL | State Code: | 11 | 0.0 sqft | Value: | $11,225 |
Sketch
| No sketches available for this property. |
Property Image
Land
| 1 | WFF 1200 | WATERFRONT $1200/FF | 20.0000 | 871200.00 | 468.00 | 120.00 | 1.00 | $561,600 | $0 |
Roll Value History
| 2026 | N/A | N/A | N/A | N/A | N/A |
| 2025 | $33,541 | $578,448 | $0 | $611,989 | $611,989 |
| 2024 | $22,071 | $578,448 | $0 | $600,519 | $600,519 |
| 2023 | $22,071 | $578,448 | $0 | $600,519 | $600,519 |
| 2022 | $26,011 | $561,600 | $0 | $587,611 | $587,611 |
| 2021 | $11,594 | $561,600 | $0 | $573,194 | $573,194 |
| 2020 | $14,507 | $216,675 | $0 | $231,182 | $231,182 |
| 2019 | $0 | $195,275 | $0 | $195,275 | $195,275 |
| 2018 | $0 | $179,225 | $0 | $179,225 | $179,225 |
| 2017 | $0 | $173,875 | $0 | $173,875 | $173,875 |
| 2016 | $0 | $133,750 | $0 | $133,750 | $133,750 |
| 2015 | $0 | $128,400 | $0 | $128,400 | $128,400 |
| 2014 | $0 | $133,750 | $0 | $133,750 | $133,750 |
| 2013 | $0 | $147,125 | $0 | $147,125 | $147,125 |
| 2012 | $0 | $160,500 | $0 | $160,500 | $160,500 |
| 2011 | $0 | $160,500 | $0 | $160,500 | $160,500 |
| 2010 | $0 | $211,750 | $0 | $211,750 | $211,750 |
| 2009 | $0 | $322,500 | $0 | $322,500 | $322,500 |
| 2008 | $0 | $322,500 | $0 | $322,500 | $322,500 |
| 2007 | $0 | $122,010 | $0 | $122,010 | $122,010 |
Deed and Sales History
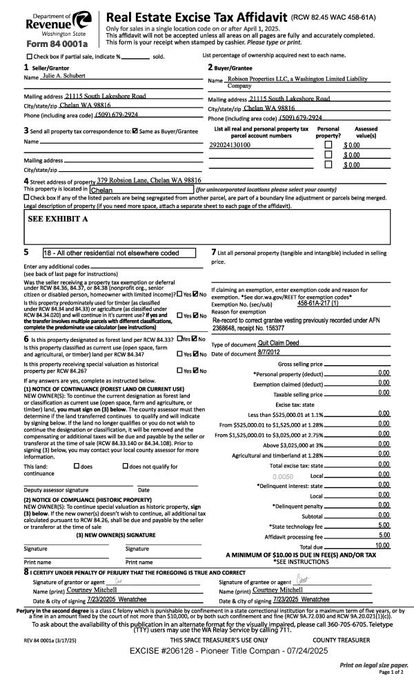
| 1 | 07/24/2025 | CORR DEED | Correction Deed | SCHUBERT JULIE A | ROBISON PROPERTIES LLC | | | $0.00 | 206128 | 2610599 BLA |
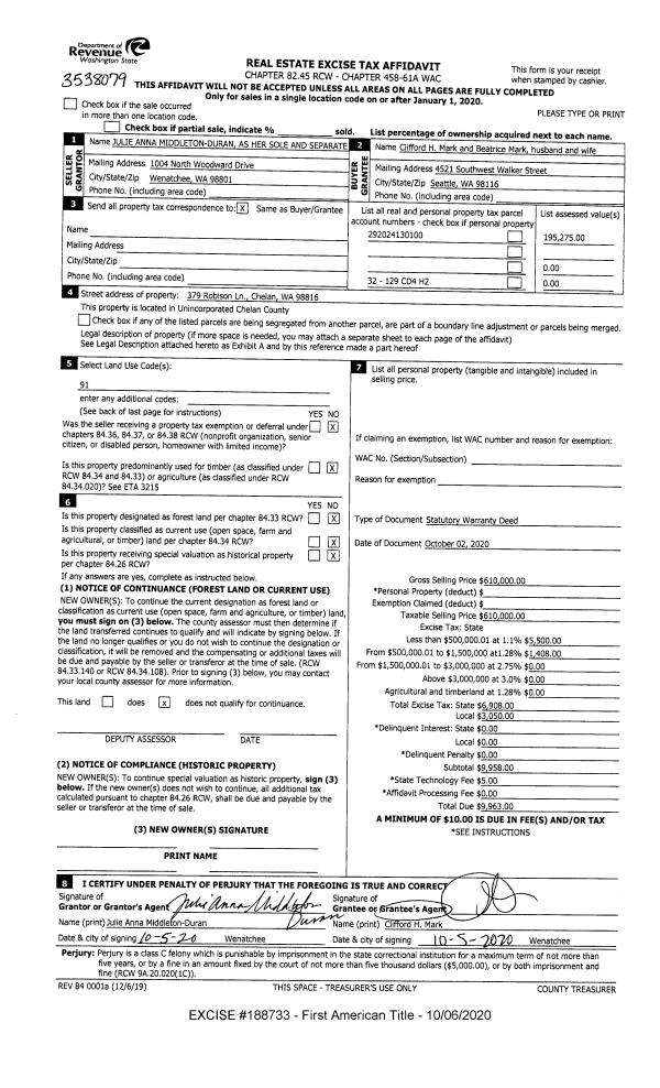
| 2 | 10/06/2020 | SWD | Statutory Warranty Deed | MIDDLETON-DURAN JULIE A | MARK CLIFFORD H & BEATRICE | | | $610,000.00 | 188733 | 2526489 |
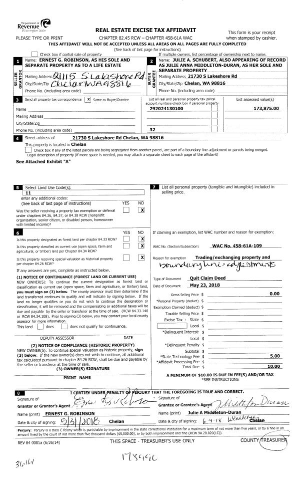
| 3 | 05/23/2018 | Q | Quit Claim Deed | ROBINSON ERNEST G | MIDDLETON-DURAN JULIE A | | | $0.00 | 178990 | 2478886 |
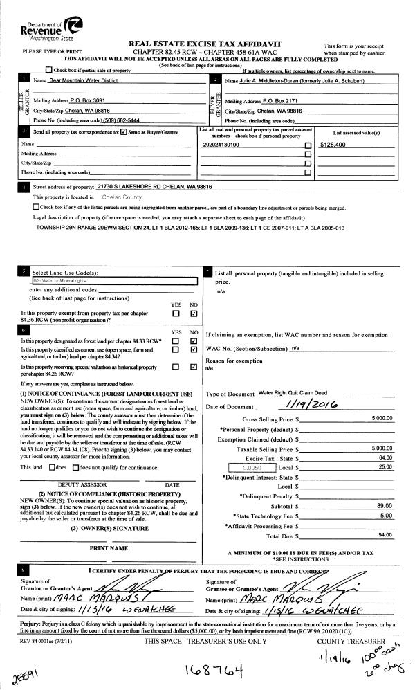
| 4 | 01/19/2016 | Q | Quit Claim Deed | BEAR MOUNTAIN WATER DISTRICT | MIDDLETON-DURAN JULIE A | | | $5,000.00 | 168764 | 2431314 |
| 5 | 07/10/2015 | Q | Quit Claim Deed | SCHUBERT JULIE A | MIDDLETON-DURAN JULIE A | | | $0.00 | 166592 | 2421336 |
| 6 | 09/24/2012 | Q | Quit Claim Deed | MIDDLETON-DURAN JULIE A | ROBISON DAVID B & KARLA J | | | | 156377 | 2368648 |
| 7 | 09/24/2012 | Q | Quit Claim Deed | ROBISON DAVID B & KARLA J | MIDDLETON-DURAN JULIE A | | | | 156376 | 2368647 |
| 8 | 03/05/2010 | WD | Warranty Deed | LEWIS JEFFREY P | MIDDLETON-DURAN JULIE A | | | $250,000.00 | 148381 | 2320039 |
| 9 | 09/13/2007 | O | Other | CE 2007-011 | | | | | 0 | 2265605 |
| 10 | 04/01/2005 | SWD | Statutory Warranty Deed | | LEWIS JEFFREY | | | $370,000.00 | 12736100 | 2196449 |
| 11 | 03/08/2005 | O | Other | BLA 2005-013 | | | | | 0 | 2194702 |
| 12 | 01/31/2001 | SWD | Statutory Warranty Deed | | MATTHEWS WILLIAM C JR | | | | 10872803 | 2087403 |
| 13 | 01/31/2001 | SWD | Statutory Warranty Deed | | MATTHEWS WILLIAM C JR | | | $112,156.00 | 10872703 | 2087402 |
| 14 | 10/06/1995 | SWD | Statutory Warranty Deed | | WIECKS REED ETAL | 1052 | 1086 | $250,000.00 | 8753401 | |
| 15 | 04/23/1991 | SWD | Statutory Warranty Deed | | JOSEPH R GOOCH ETAL | 947 | 307 | | 0 | |
| 16 | 06/18/1987 | SWD | Statutory Warranty Deed | | EQUITY LOANS & INVESTMENTS IN | 877 | 1992 | | 0 | |
| 17 | 02/12/1987 | Q | Quit Claim Deed | | HALE ENTERPRISES INC | 871 | 1821 | | 0 | |
| 18 | 12/22/1982 | Q | Quit Claim Deed | | MARCIA M KELSEY | 802 | 1457 | | 0 | |
Payout Agreement
| No payout information available.. |