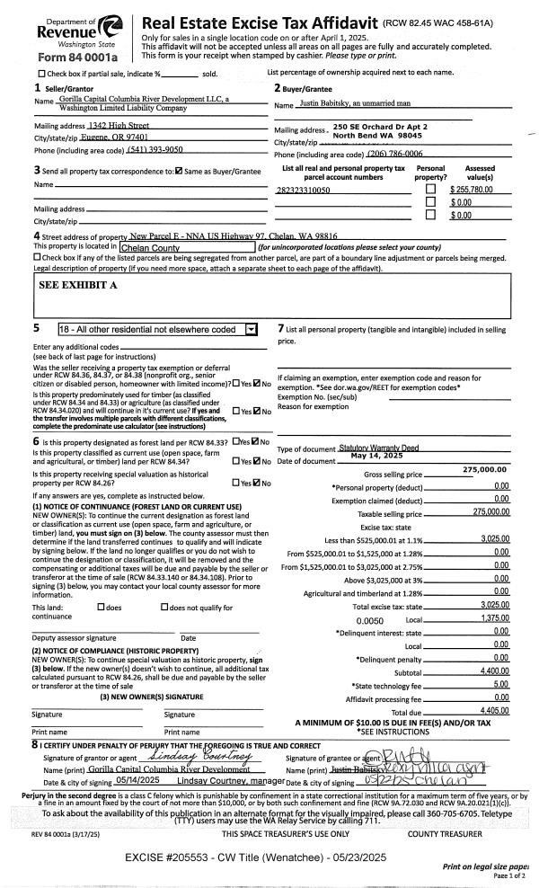
| 1 | 05/23/2025 | SWD | Statutory Warranty Deed | GORILLA CAPITAL COLUMBIA RIVER DEVELOPMENT LLC | BABITSKY JUSTIN | | | $275,000.00 | 205553 | 2608057 |
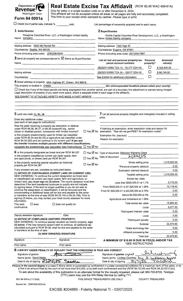
| 2 | 03/07/2025 | SWD | Statutory Warranty Deed | PEREGRINE COLUMBIA RIVER LLC | GORILLA CAPITAL COLUMBIA RIVER DEVELOPMENT LLC | | | $1,315,500.00 | 204889 | 2605168 |
|   | |
| 3 | 11/17/2016 | SWD | Statutory Warranty Deed | CHELAN PROPERTY HOLDINGS LLC | PEREGRINE COLUMBIA RIVER LLC | | | $405,000.00 | 172301 | 2448030 |
|   | |
| 4 | 06/12/2008 | Q | Quit Claim Deed | GOODFELLOW NANCY B | CHELAN PROPERTYHOLDINGS LLC | | | | 0 | 2283957 |
| 5 | 06/12/2008 | Q | Quit Claim Deed | | CHELAN PROPERTY HOLDINGS LLC | | | | 14290602 | 2283957 |
| 6 | 09/27/1991 | Q | Quit Claim Deed | GOODFELLOW JAME | GOODFELLOW LIVI | 956 | 213 | | 0 | |
| 7 | 08/29/1972 | C | Real Estate Contract | BETTENCOURT WILLIAM | J B GOODFELLOW JR | 710 | 553 | | 0 | |