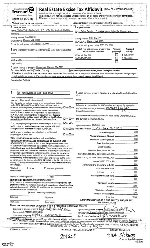
Property
Account |
| Property ID: | 50374 | Abbreviated Legal Description: | T 28N R 22EWM S 20 NWNE 40.0000 ACRES |
| Geographic ID: | 282220120000 | Agent Code: | |
| Type: | Real | | |
| Tax Area: | 2 - 19 CD4 H2 PK1 | Land Use Code | 91 |
| Open Space: | N | DFL | N |
| Historic Property: | N | Remodel Property: | N |
| Multi-Family Redevelopment: | N | | |
| Township: | 28N | Section: | 20 |
| Range: | 22EWM | Legal Acres: | 40.0000 |
Location |
| Address: | UNASSIGNED MANSON, WA 98831 | Mapsco: | |
| Neighborhood: | Cycle 4 Manson div 4 RES | Map ID: | 4MANS04R01 |
| Neighborhood CD: | 4MANS04R01 |
Owner |
| Name: | SATHER FAMILY LLC | Owner ID: | 99347 |
| Mailing Address: | PO BOX 427 MANSON, WA 98831 | % Ownership: | % |
| | | Exemptions: | |
Pay Tax Due
Select the appropriate checkbox next to the year to be paid. Multiple years may be selected.
*Convenience Fee not included
Taxes and Assessment Details
Values
| (+) Improvement Homesite Value: | + | N/A | |
| (+) Improvement Non-Homesite Value: | + | N/A | |
| (+) Land Homesite Value: | + | N/A | |
| (+) Land Non-Homesite Value: | + | N/A | Ag / Timber Use Value |
| (+) Curr Use (HS): | + | N/A | N/A |
| (+) Curr Use (NHS): | + | N/A | N/A |
| | | -------------------------- | |
| (=) Market Value: | = | N/A | |
| (–) Productivity Loss: | – | N/A | |
| | | -------------------------- | |
| (=) Subtotal: | = | N/A | |
| (+) Senior Appraised Value: | + | N/A | |
| (+) Non-Senior Appraised Value: | + | N/A | |
| | | -------------------------- | |
| (=) Total Appraised Value: | = | N/A | |
| (–) Senior Exemption Loss: | – | N/A | |
| (–) Exemption Loss: | – | N/A | |
| | | -------------------------- | |
| (=) Taxable Value: | = | N/A | |
Taxing Jurisdiction
| Owner: | SATHER FAMILY LLC | | |
| % Ownership: | 100.0000000000% | | |
| Total Value: | N/A | | |
| Tax Area: | 2 - 19 CD4 H2 PK1 |
| 110001 | County Road General | N/A | N/A | N/A | N/A | | |
| 010170 | Chelan County | N/A | N/A | N/A | N/A | | |
| 155001 | Veteran's Relief | N/A | N/A | N/A | N/A | | |
| 160001 | Mental Health | N/A | N/A | N/A | N/A | | |
| 657401 | Cemetery No 4 | N/A | N/A | N/A | N/A | | |
| 692201 | Hospital No 2 General | N/A | N/A | N/A | N/A | | |
| 654035 | Manson SD 19 Capital Projects | N/A | N/A | N/A | N/A | | |
| 652001 | State School Refund | N/A | N/A | N/A | N/A | | |
| 652003 | State School 2 | N/A | N/A | N/A | N/A | | |
| 652005 | State School | N/A | N/A | N/A | N/A | | |
| 652025 | State School 2 Refund | N/A | N/A | N/A | N/A | | |
| 107001 | Flood Control Zone | N/A | N/A | N/A | N/A | | |
| 692210 | Hospital No 2 Bond | N/A | N/A | N/A | N/A | | |
| 692260 | Hospital No 2 EMS | N/A | N/A | N/A | N/A | | |
| 644001 | Regional Library | N/A | N/A | N/A | N/A | | |
| 675101 | Manson Park & Rec | N/A | N/A | N/A | N/A | | |
| 671101 | Port General | N/A | N/A | N/A | N/A | | |
| 654021 | Manson SD 19 General | N/A | N/A | N/A | N/A | | |
| | Total Tax Rate: | N/A | | | | | |
| | | | | Taxes w/Current Exemptions: | N/A | | |
| | | | | Taxes w/o Exemptions: | N/A | | |
Improvement / Building
Sketch
| No sketches available for this property. |
Property Image
Land
| 1 | RES 1500 | RESIDUAL $1500/A | 40.0000 | 1742400.00 | 0.00 | 0.00 | 1.00 | N/A | N/A |
Roll Value History
| 2026 | N/A | N/A | N/A | N/A | N/A |
| 2025 | $0 | $82,800 | $0 | $82,800 | $82,800 |
| 2024 | $0 | $74,400 | $0 | $74,400 | $74,400 |
| 2023 | $0 | $74,400 | $0 | $74,400 | $74,400 |
| 2022 | $0 | $74,400 | $0 | $74,400 | $74,400 |
| 2021 | $0 | $37,200 | $0 | $37,200 | $37,200 |
| 2020 | $0 | $39,600 | $0 | $39,600 | $39,600 |
| 2019 | $0 | $38,400 | $0 | $38,400 | $38,400 |
| 2018 | $0 | $38,400 | $0 | $38,400 | $38,400 |
| 2017 | $0 | $38,400 | $0 | $38,400 | $38,400 |
| 2016 | $0 | $38,400 | $0 | $38,400 | $38,400 |
| 2015 | $0 | $36,000 | $0 | $36,000 | $36,000 |
| 2014 | $0 | $36,000 | $0 | $36,000 | $36,000 |
| 2013 | $0 | $36,000 | $0 | $36,000 | $36,000 |
| 2012 | $0 | $39,000 | $0 | $39,000 | $39,000 |
| 2011 | $0 | $56,000 | $0 | $56,000 | $56,000 |
| 2010 | $0 | $56,000 | $0 | $56,000 | $56,000 |
| 2009 | $0 | $69,500 | $0 | $69,500 | $69,500 |
| 2008 | $0 | $69,500 | $0 | $69,500 | $69,500 |
| 2007 | $0 | $40,000 | $0 | $40,000 | $40,000 |
Deed and Sales History
| 1 | 12/11/2023 | Q | Quit Claim Deed | CHELAN VALLEY ORCHARDS II LLC | SATHER FAMILY LLC | | | $0.00 | 201258 | 2589328 |
| 2 | 12/15/2015 | SWD | Statutory Warranty Deed | GREEN'S LANDING LLC | CHELAN VALLEY ORCHARDS II LLC | | | $1,090,500.00 | 168417 | 2429823 |
|   | |
| 3 | 12/15/2015 | Q | Quit Claim Deed | SATHER FAMILY LLC | CHELAN VALLEY ORCHARDS II LLC | | | $0.00 | 168416 | 2429822 |
| 4 | 12/15/2015 | Q | Quit Claim Deed | CHELAN VALLEY ORCHARDS LLC | SATHER FAMILY LLC ETAL | | | $0.00 | 168415 | 2429821 |
| 5 | 03/27/2006 | Q | Quit Claim Deed | | CHELAN VALLEY ORCHARDS LLC | | | | 0 | 2223496 |
| 6 | 03/29/2006 | W | Warranty Deed | | SATHER & ECKBERG | | | | 0 | 2119286 |
| 7 | 12/28/2004 | Q | Quit Claim Deed | | | | | | 13267602 | 2223496 |
| 8 | 01/01/1980 | REF | Conversion Code Only | EDMUND PALMER | REAUGH RANCHARD | 737 | 1333 | | 0 | |
| 9 | | OT | Conversion Code Only | | PALMER D EDMUNDS | 0 | 0 | | 0 | |
Payout Agreement
| No payout information available.. |